Ruimte, comfort én energiezuinig wonen in het groene hart van Lisse!
Welkom aan de Clusiusstraat 3: een verrassend ruime tussenwoning met vijf slaapkamers, een royale uitgebouwde woonkamer met vloerverwarming, moderne badkamer en zonnige tuin. De woning is uitstekend onderhouden én toekomstbestendig dankzij energielabel A, 8 zonnepanelen en volledige isolatie. Gelegen aan een autovrij pad in een kindvriendelijke, rustige wijk met alle voorzieningen binnen handbereik. Instapklaar wonen op een toplocatie? Dit is je kans!
Benieuwd geworden? Neem contact met ons op voor een bezichtiging – we laten je deze fijne woning graag zien!
LOCATIE
De woning ligt aan een autovrij pad in een rustige, ruim opgezette woonwijk: een ideale plek voor gezinnen met kinderen. Speeltuintjes, scholen, sportclubs en een zwembad liggen allemaal in de buurt. Ook het gezellige centrum van Lisse – met winkels, horeca en de weekmarkt – is op
loopafstand.
Natuurliefhebber? Je fietst zó naar het Keukenhofbos, de Kagerplassen, de Amsterdamse Waterleidingduinen of het strand bij Langevelderslag. Via de A4 en A44 zijn Amsterdam, Den Haag en Schiphol uitstekend bereikbaar, en er zijn goede ov-verbindingen naar omliggende steden.
INDELING
Begane grond:
Voortuin, entree, hal met toilet en fonteintje, trapopgang. De uitgebouwde woonkamer biedt veel licht en ruimte, met openslaande deuren naar de verzorgde tuin. Hier is genoeg plek voor een royale zithoek en een ruime eettafel. Aan de voorzijde bevindt zich de open keuken, voorzien van alle wenselijke inbouwapparatuur.
Tuin:
De zonnige achtertuin op het noordoosten beschikt over een buitenkraan, een schuur met elektra en een nette schutting van bankirai hout. De tuin en schuur zijn via de achterzijde bereikbaar.
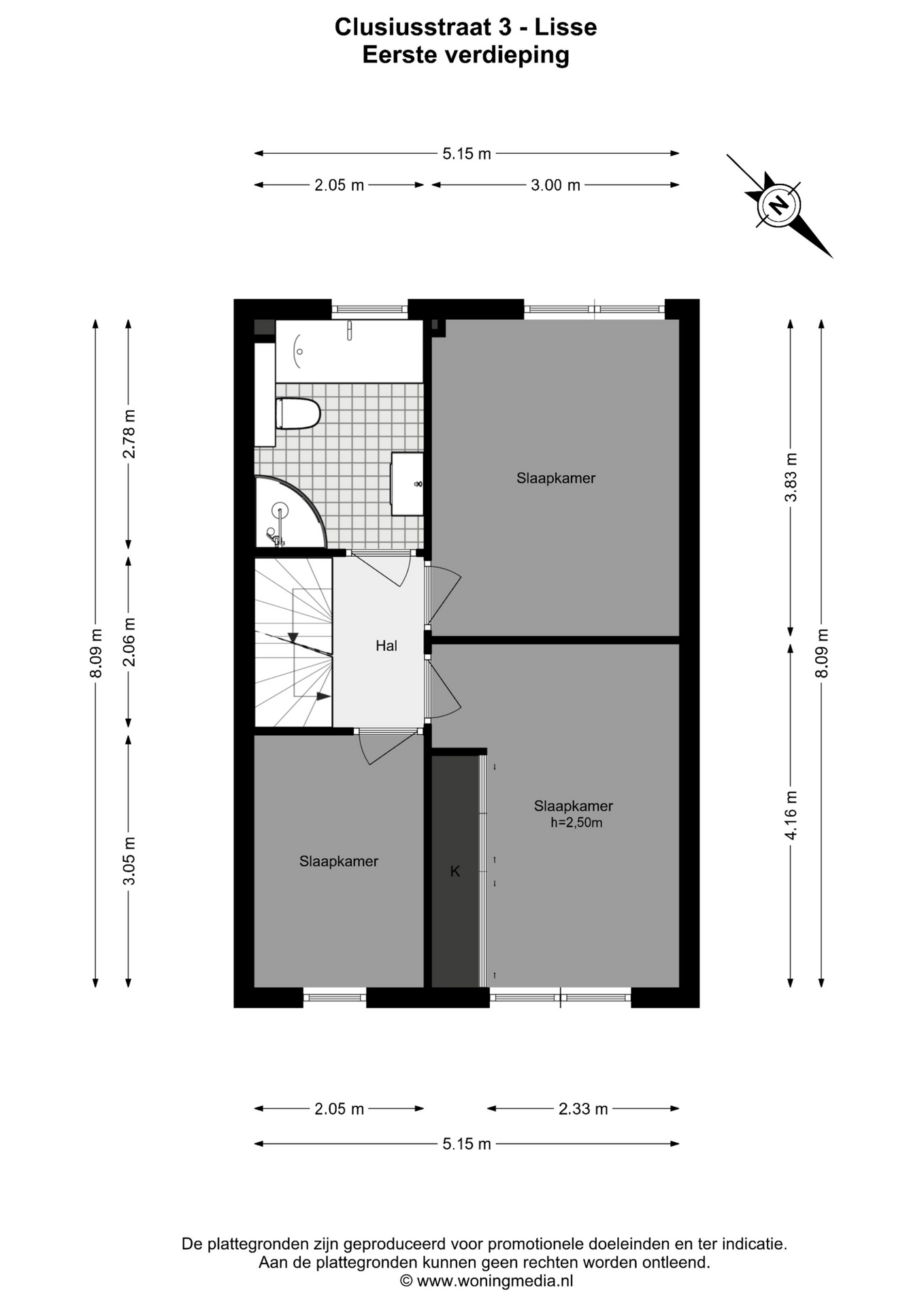
Eerste verdieping:
Overloop met toegang tot drie ruime slaapkamers. De badkamer is modern afgewerkt en beschikt over
een ligbad, aparte douche, wastafelmeubel, designradiator en vloerverwarming.
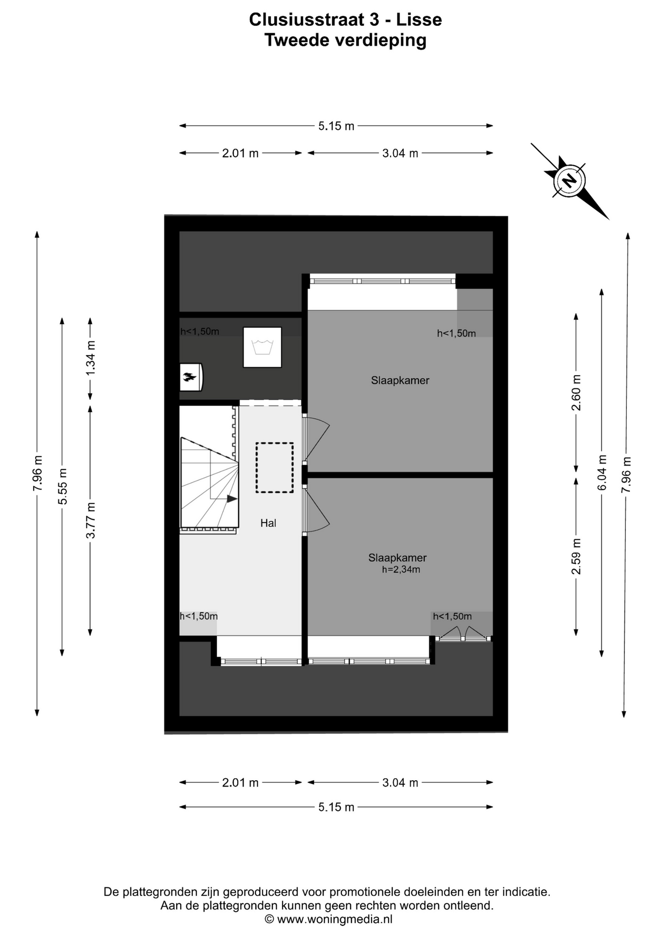
Tweede verdieping:
Overloop met wasruimte (aansluiting voor wasmachine en droger) en twee grote slaapkamers, beide met kunststof dakkapellen. Er is veel bergruimte achter de keurig afgewerkte knieschotten.
Vliering:
Handige bergzolder over de volle breedte van de woning, bereikbaar via een vlizotrap.
DUURZAAMHEID & TECHNIEK
• Energielabel A
• 8 zonnepanelen
• Volledig geïsoleerd (vloer, spouwmuur en HR++ glas)
• Moderne CV-ketel (Remeha Tzerra Ace CW5, 2022, eigendom)
• Gedeeltelijke vloerverwarming
BIJZONDERHEDEN OP EEN RIJ
• Bouwjaar: 1988
• Woonoppervlakte: ca.120 m²
• Perceeloppervlakte: 117 m²
• Gelegen aan autovrij pad in kindvriendelijke wijk
• Ruime woonkamer met uitbouw en veel licht
• Vijf volwaardige slaapkamers
• Achtertuin met schuur, buitenkraan en achterom
• Energiezuinig wonen met zonnepanelen en goede isolatie
• Ruime bergvliering
• Oplevering in overleg
Deze informatie is met de nodige zorgvuldigheid samengesteld. Wij aanvaarden echter geen enkele aansprakelijkheid voor enige onvolledigheid, onjuistheid of anderszins, dan wel de gevolgen daarvan.
Alle opgegeven maten en oppervlakten zijn indicatief. Koper heeft zijn eigen onderzoeksplicht naar alle zaken, die voor hem van belang zijn. Met betrekking tot deze woning is ons kantoor de makelaar van verkoper. Wij adviseren u een NVM/MVA Makelaar in te schakelen, die u met zijn deskundigheid zal bijstaan in het aankoopproces. Indien u geen professionele begeleiding wenst in te schakelen, acht u zich volgens de wet deskundig genoeg om alle zaken, die van belang zijn, te kunnen overzien. De Algemene Consumentenvoorwaarden van de NVM zijn van toepassing.