**Please find the English translation below**
Deze karaktervolle dubbele bovenwoning biedt de perfecte kans om je droomhuis te creëren.
Hoewel een volledige renovatie nodig is, zijn de fundamenten uitstekend en de basiscondities ideaal:
– Gewilde locatie in de Vogelbuurt
– Een solide basis van ca. 85,5 m² woonoppervlakte
– De zeer lichte ruimte is geheel flexibel in te delen
– Volledig eigen opgang vanaf de begane grond
– Zonnig balkon op het zuidwesten
– Eeuwigdurend afgekochte erfpacht.
Je woont straks in de gewilde Vogelbuurt, op loopafstand van zowel de pont naar Centraal Station als de Noord-Zuidlijn. Binnen 10 minuten ben je in hartje Centrum.
Bovendien ben je omringd door populaire restaurants en koffietentjes, waaronder Cups & Chapters om de hoek (met de beste koffie van Noord).
Kortom: je woont op een toplocatie met de ideale balans tussen rust en reuring, in een woning die straks 100% naar jouw smaak is.
LOCATIE
De Ganzenweg is een karakteristieke straat in het hart van Amsterdam-Noord, met brede stoepen, veel groen en een ontspannen sfeer. Binnen een paar minuten geniet je van het uitzicht over het IJ.
De openbaarvervoerverbindingen brengen je in 10 minuten naar hartje Centrum.
In je directe omgeving zelf vind je ook veel populaire restaurants en koffietentjes. Plus je hebt twee goede supermarkten praktisch voor de deur.
In de omgeving zijn veel scholen en voorzieningen voor kinderen aanwezig.
INDELING
Je beschikt over een eigen entree op straatniveau, dus geen gedeelde opgang, maar volledige privacy.
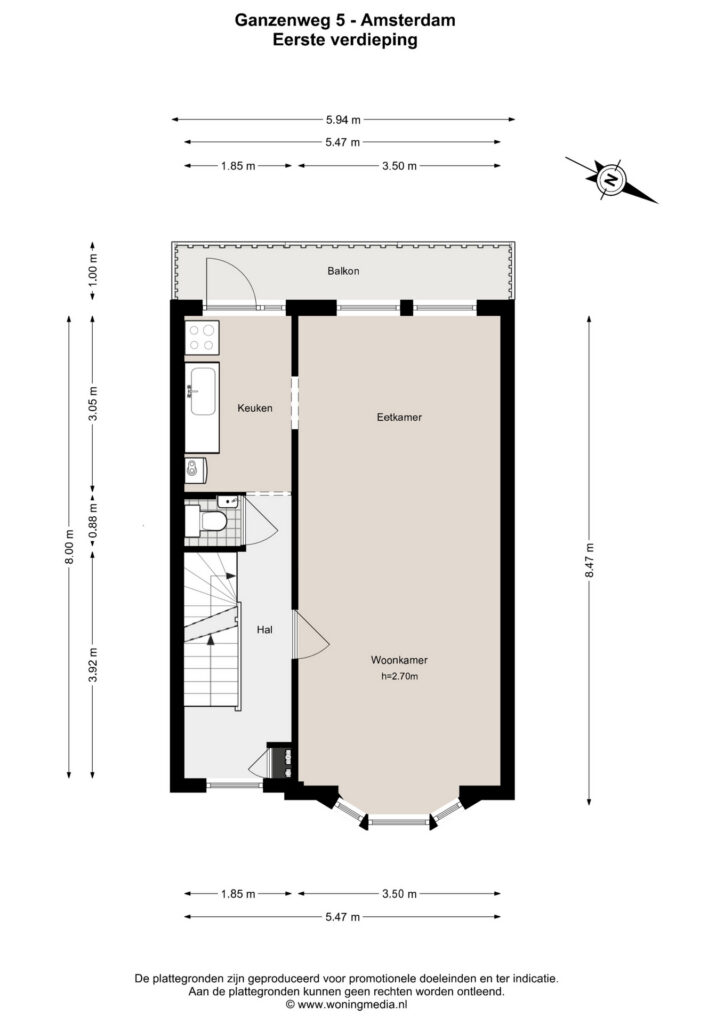
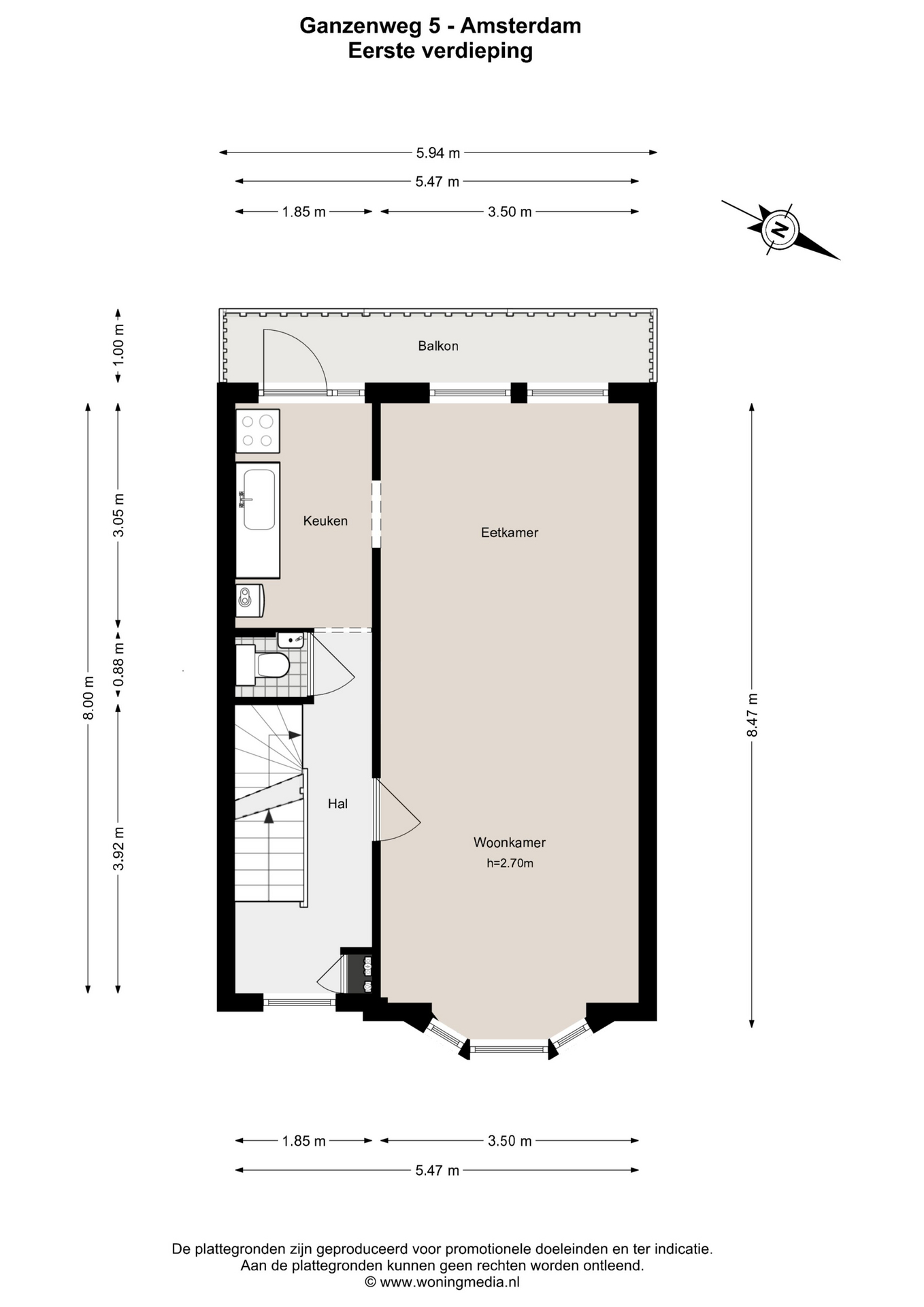
Op de eerste verdieping bevindt zich de lichte doorzon woonkamer. Aan de achterzijde bevindt zich de keuken en heb je toegang tot het balkon op het zuidwesten.
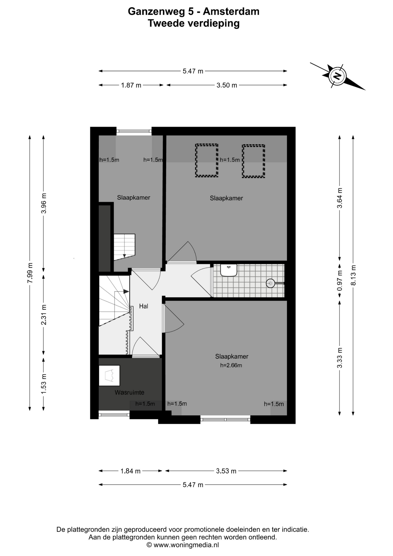
De tweede verdieping biedt drie slaapkamers en een badkamer met een douche en wastafel, evenals een aparte wasruimte met wasmachineaansluiting. Op de overloop bevindt zich een praktische bergkast.
Via een vaste trap bereik je de zolderverdieping. Hier bevindt zich de vierde slaapkamer, die de volledige ruimte over de woning beslaat, met een stahoogte van 2,05 meter in het midden.
VvE
De woning heeft een actieve Vereniging van Eigenaren, bestaande uit 64 appartementsrechten. Het beheer is professioneel uitbesteed aan Ymere VvE Beheer. De maandelijkse bijdrage bedraagt € 186,15. Er is een meerjarenonderhoudsplan aanwezig en de financiële positie is gezond.
DUURZAAMHEID
De woning wordt verwarmd via een HR-combiketel (2020) en is volledig voorzien van dubbel glas. Het huidige energielabel is B. De VvE werkt actief aan verduurzamingsplannen, waaronder verbeterde isolatie, ventilatie en nieuwe kozijnen met HR++ of triple glas. De ambitie is om een energielabel A te behalen.
Als koper profiteer je straks dus van meer comfort, lagere energielasten én een potentiële waardestijging van je woning.
SAMENVATTING
– Mooie renovatiekans: 85,5 m² dubbele bovenwoning in gewilde Vogelbuurt
– Bouwjaar: 1921
– Woonoppervlakte: 85,5 m² conform NEN 2580
– Zolderslaapkamer: inpandige ruimte van 7,1 m² met een bruto vloeroppervlakte van 23,8 m² conform NEN 2580
– Totaal: circa 93 m² netto vloeroppervlakte
– Twee woonlagen en een zolder
– Eigen voordeur en volledig eigen opgang vanaf de straat
– Eeuwigdurend afgekochte erfpacht
– 4 slaapkamers
– Woningbreed balkon op het zuidwesten
– Servicekosten: € 186,15 per maand
– Huidig energielabel B. Verduurzamingsambities VvE naar energielabel A
– Oplevering in overleg
– Notariskeuze: Meijer Notarissen of andere Amsterdamse notaris
Kom kijken naar de ruimte, de indeling en het potentieel. De rest is aan jou.
Bel of mail ons voor een bezichtiging op de Ganzenweg 5.
Alle opgegeven maten en oppervlakten zijn indicatief. Koper heeft zijn eigen onderzoeksplicht naar alle zaken, die voor hem van belang zijn. Met betrekking tot deze woning is ons kantoor de makelaar van verkoper. Wij adviseren u een NVM/MVA Makelaar in te schakelen, die u met zijn deskundigheid zal bijstaan in het aankoopproces. Indien u geen professionele begeleiding wenst in te schakelen, acht u zich volgens de wet deskundig genoeg om alle zaken, die van belang zijn, te kunnen overzien. De Algemene Consumentenvoorwaarden van de NVM zijn van toepassing.
==================================English=================================
This characterful double upper-level apartment offers the perfect opportunity to create your dream home.
While a full renovation is required, the foundations are excellent, and the basic conditions are ideal:
-Highly sought-after location in the Vogelbuurt
-Solid base of approx. 85,5 m² living space
-Very bright layout with full flexibility for redesign
-Private entrance from the ground floor
-Sunny southwest-facing balcony
-Leasehold perpetually bought off
You’ll be living in the ever-popular Vogelbuurt, within walking distance of both the ferry to Central Station and the North-South metro line. Within 10 minutes, you’re in the heart of Amsterdam’s city center.
You’re also surrounded by trendy restaurants and cafés, including Cups & Chapters just around the corner (home to the best coffee in Noord).
In short: a prime location offering the ideal balance between tranquility and vibrant city life, in a property you can fully tailor to your taste.
LOCATION
Ganzenweg is a charming street in the heart of Amsterdam-Noord, featuring wide sidewalks, lush greenery, and a relaxed atmosphere. Within just a few minutes, you can enjoy stunning views over the IJ.
Public transport connections bring you to the city center in 10 minutes.
In your direct surroundings, you’ll find plenty of popular restaurants and cafés. You also have two supermarkets practically on your doorstep.
The area offers numerous schools and child-friendly facilities.
LAYOUT
You benefit from a private entrance at street level—no shared stairwell, but full privacy.
On the first floor, you’ll find the bright, dual-aspect living room. At the rear is the kitchen, with access to the southwest-facing balcony.
The second floor offers three bedrooms and a bathroom with shower and washbasin, as well as a separate laundry room with washing machine connection. There is also a practical storage closet on the landing.
A fixed staircase leads to the attic floor. Here you’ll find the fourth bedroom, spanning the full width of the house, with a standing height of 2.05 meters at the center.
HOMEOWNERS’ ASSOCIATION
The property has an active Homeowners’ Association (VvE), consisting of 64 apartment rights. Management is professionally outsourced to Ymere VvE Beheer. The monthly service costs are €186.15. A multi-year maintenance plan is in place and the financial position is healthy.
SUSTAINABILITY
The property is heated via an HR combi boiler (2020) and fully equipped with double glazing. The current energy label is B. The VvE is actively working on sustainability plans, including improved insulation, ventilation, and new HR++ or triple-glazed windows. The ambition is to achieve energy label A.
As a buyer, you will therefore benefit from greater comfort, lower energy costs, and potential value growth.
SUMMARY
-Beautiful renovation opportunity: 85,5 m² double upper-level home in popular Vogelbuurt
-Construction year: 1921
-Living area: 85.5 m² (NEN 2580)
-Attic bedroom: internal space of 7.1 m² with gross floor area of 23.8 m² (NEN 2580)
-Total: approx. 93 m² net floor area
-Two living floors plus attic
-Private front door and full private entrance from the street
-Leasehold perpetually bought off
-4 bedrooms
-Wide southwest-facing balcony
-Service costs: €186.15 per month
-Current energy label B; VvE plans to upgrade to label A
-Transfer date in consultation
-Notary choice: Meijer Notarissen or another Amsterdam-based notary
Come and see the space, layout, and potential. The rest is up to you.
Call or email us to schedule a viewing at Ganzenweg 5.
All stated dimensions and surfaces are indicative. The buyer has a duty to investigate all matters of importance to them. With regard to this property, our office represents the seller. We advise you to engage an NVM/MVA agent to assist you with their expertise during the purchasing process. If you choose not to engage professional assistance, you are considered by law to be sufficiently knowledgeable to oversee all matters of importance. The General Consumer Conditions of the NVM apply.