**Please find the English translation below**
Bij dit goed ingedeelde, lichte 3-kamerappartement van 65 m² komt alles in tweetallen; er zijn 2 slaapkamers, 2 balkons en 2 bergingen. Het appartement op de eerste verdieping is in 2022 gerenoveerd, waarbij er o.a. een nieuwe keuken en badkamer zijn geplaatst. Ook de elektrische installatie en meterkast zijn vernieuwd.
Deze woning is ideaal voor starters of jonge gezinnen die op zoek zijn naar comfort, ruimte en een uitstekende bereikbaarheid.
LOCATIE:
Het appartement ligt in een rustige straat met vrij uitzicht op een gezamenlijke binnentuin in Nieuwendam in Amsterdam-Noord. Hier geniet je van ruimte, rust en groen. Het Schellingwouderpark, het Vliegenbos en het Noorderpark liggen op korte afstand voor wandelingen. Ook Waterland en het Twiske zijn gemakkelijk bereikbaar voor fiets- en wandeltochten, zwemmen, zeilen, kanoën en schaatsen.
Voor boodschappen zijn er winkelcentra zoals Purmerplein, Waterlandplein en Boven ’t Y in de buurt. Sportclubs en culturele voorzieningen zijn ruim vertegenwoordigd en festivals vinden plaats op de NDSM-werf. Diverse eetgelegenheden zijn te vinden in de buurt, waaronder Italiaan Nuraghe, café ’t Sluisje, Liever Hier, De VerbroederIJ, Restaurant Stork, De Goudfazant en het Skatecafé.
De buurt heeft uitstekende verbindingen met het openbaar vervoer en verschillende pontverbindingen naar het centrum, Oost en West. Je kunt snel en gemakkelijk gebruikmaken van het openbaar vervoer, en de ponten bieden een snelle oversteek naar verschillende delen van de stad. Amsterdam-Noord biedt een betaalbare locatie in een groene omgeving, met het centrum op slechts 15 minuten afstand.
INDELING:
Begane grond: Gemeenschappelijke entree met brievenbussen, bellentableau, trappenhuis en bergingen.
Aan de achterzijde van het appartement vind je de ruime woonkamer met toegang tot de keuken inclusief keukenapperatuur van Smeg (2022) en het balkon op het zuidoosten. Aan deze kant heb je een mooi uitzicht over de verzorgde binnentuin.
Aan de voorzijde van het appartement zijn 2 ruime slaapkamers, waarvan een toegang geeft tot het tweede balkon op het noordwesten. De nette badkamer uit 2022 beschikt over een douche en een wastafelmeubel. Er is een separaat toilet. In de hal is een aparte kast met wasmachine aansluiting.
Zowel op de begane grond als op de zolderverdieping is er de beschikking over een privé-berging. Beneden laad je makkelijk je elektrische fiets op.
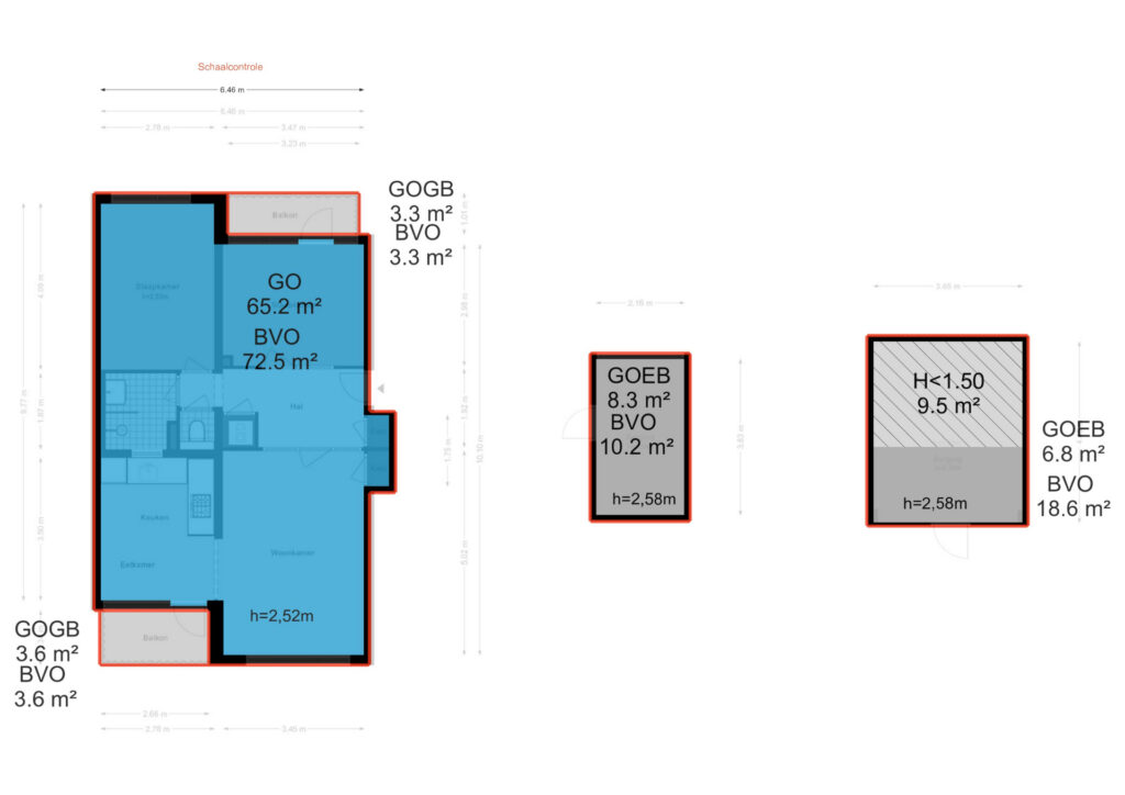
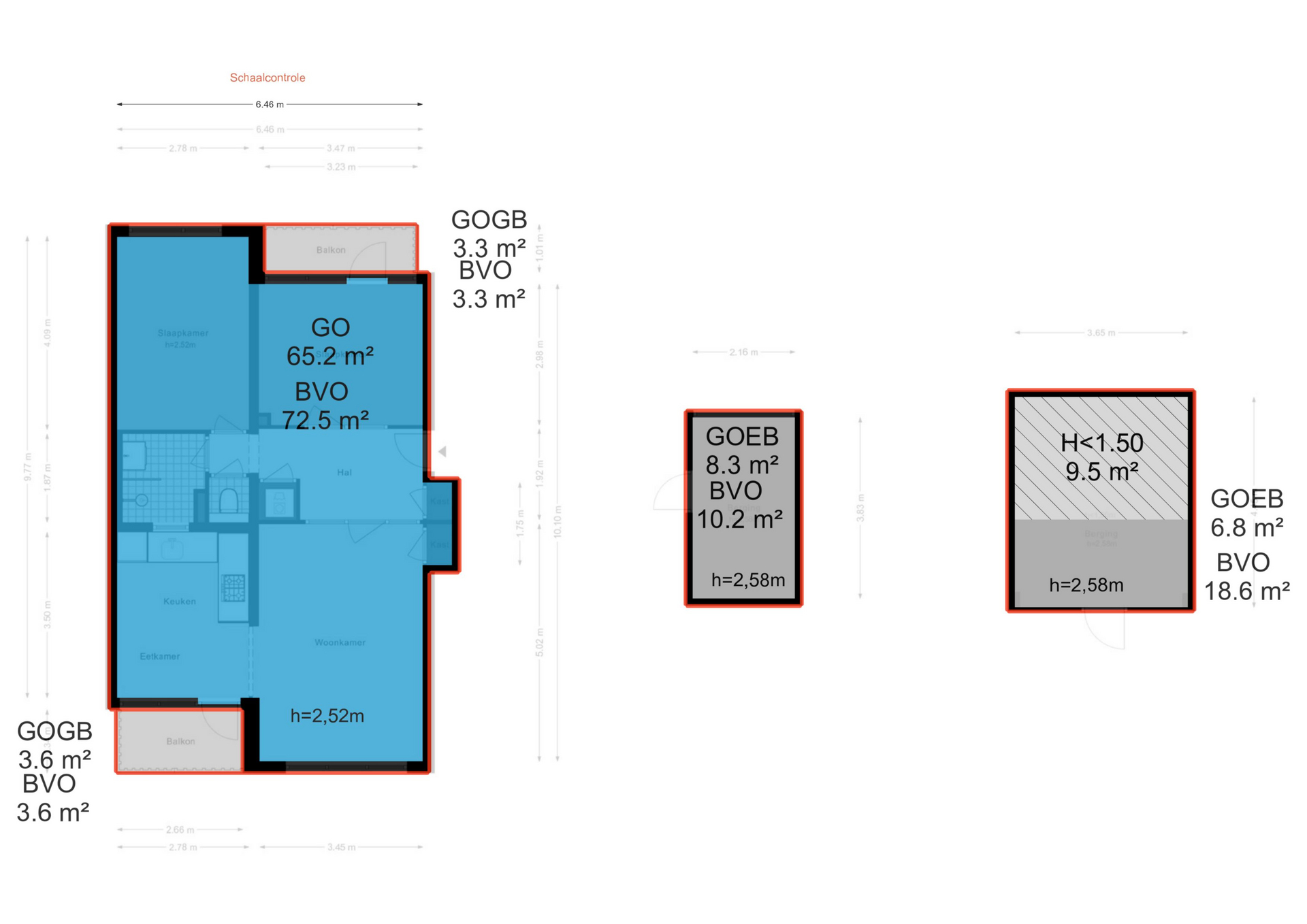
Voor de indeling verwijzen we je graag door naar de plattegronden, deze zijn te bekijken in 2D en in 3D en zijn te vinden onder het kopje “plattegrond”.
ERFPACHT:
De woning is gelegen op grond van de gemeente Amsterdam, welke in erfpacht is uitgegeven. De jaarlijkse vergoeding is vooruitbetaald (afgekocht) tot en met 30-06-2053. Er loopt een aanvraag om onder de gunstige voorwaarden over te stappen naar eeuwigdurende erfpacht. De verkoper heeft gekozen voor het vastklikken van de jaarlijkse canon vanaf 2053. Dit bedrag van € 209,72 wordt jaarlijks geïndexeerd vanaf 01-01-2024.
DUURZAAMHEID:
Deze woning is voorzien van een HR CV ketel uit 2021. In 2023 is er door het hele appartement HR +(+) beglazing geplaatst. Het energielabel is C.
VERENIGING VAN EIGENAREN:
Het complex is in 2005 gesplitst in 72 appartementsrechten (Alkmaarstraat 1/83 – Groetstraat 189/217). De administratie wordt professioneel beheerd door PRO VVE Beheer en er is een Meerjarenonderhoudsplan. De servicekosten bedragen € 238,- per maand, waarin onder andere de opstalverzekering en een reservering voor onderhoud zijn opgenomen.
BIJZONDERHEDEN:
• Bouwjaar 1966
• Woonoppervlakte (NEN2580) 65,2 m²
• Berging op begane grond én op de zolderverdieping
• Gerenoveerd in 2022: nieuwe badkamer en keuken, elektrische installatie en meterkast vernieuwd.
• De erfpacht is afgekocht tot 30-06-2053. Er loopt een aanvraag om de canon onder de gunstige voorwaarden vast te klikken.
• Gezonde VvE bestaande uit 72 appartementsrechten, professioneel beheerd door PRO VVE Beheer.
• Servicekosten € 238,- per maand
• Voor de op te nemen clausules verwijzen we je door naar het formulier “op te nemen clausules in de koopakte”
• Oplevering in overleg
Deze informatie is door ons met de nodige zorgvuldigheid samengesteld. Onzerzijds wordt echter geen enkele aansprakelijkheid aanvaard voor enige onvolledigheid, onjuistheid of anderszins, dan wel de gevolgen daarvan. Alle opgegeven maten en oppervlakten zijn indicatief. Koper heeft zijn eigen onderzoeksplicht naar alle zaken die voor hem of haar van belang zijn. Met betrekking tot deze woning is de makelaar adviseur van verkoper. Wij adviseren u een deskundig (NVM-)makelaar in te schakelen die u begeleidt bij het aankoopproces. Indien u specifieke wensen heeft omtrent de woning, adviseren wij u deze tijdig kenbaar te maken aan uw aankopend makelaar en hiernaar zelfstandig onderzoek te (laten) doen. Indien u geen deskundige vertegenwoordiger inschakelt, acht u zich volgens de wet deskundig genoeg om alle zaken die van belang zijn te kunnen overzien.
======English=====
In this well laid-out, bright 3-room apartment of 65 m² everything comes in pairs: there are 2 bedrooms, 2 balconies, and 2 storage rooms. The first-floor apartment was renovated in 2022, including a new kitchen and bathroom. The electrical installation and meter cupboard were also renewed.
This home is ideal for first-time buyers or young families looking for comfort, space, and excellent accessibility.
LOCATION:
The apartment is located in a quiet street with an open view of a communal garden in Nieuwendam, Amsterdam-North. Here you can enjoy space, peace, and greenery. The Schellingwouderpark, Vliegenbos, and Noorderpark are close by for walks. Waterland and Het Twiske are also easily accessible for cycling and walking trips, swimming, sailing, canoeing, and ice skating.
For daily shopping, there are shopping centers such as Purmerplein, Waterlandplein, and Boven ’t Y nearby. Sports clubs and cultural facilities are widely available, and festivals are regularly held at the NDSM wharf. In addition, there are plenty of restaurants and cafés to choose from, such as Italian restaurant Nuraghe, café ’t Sluisje, Liever Hier, De VerbroederIJ, Restaurant Stork, De Goudfazant, and the Skatecafé.
The neighborhood has excellent public transport connections and several ferry services to the city center, East, and West. Public transport is quick and easy to use, and the ferries provide a fast crossing to various parts of the city. Amsterdam-North offers an affordable location in a green environment, with the city center only 15 minutes away.
LAYOUT:
Ground floor: Communal entrance with mailboxes, intercom panel, staircase, and storage rooms.
At the rear of the apartment, you’ll find the spacious living room with access to the kitchen (including Smeg appliances, 2022) and the southeast-facing balcony. On this side, you have a beautiful view of the well-kept courtyard garden.
At the front of the apartment are 2 spacious bedrooms, one of which gives access to the second balcony, facing northwest. The neat bathroom from 2022 is equipped with a shower and washbasin cabinet. There is a separate toilet. In the hallway, there is a separate cupboard with a washing machine connection.
There is a private storage room both on the ground floor and in the attic. You can charge your electric bike downstairs.
For the exact layout, please refer to the floor plans, available in both 2D and 3D, under the “floor plan” section.
GROUND LEASE (ERFPACHT):
The property is located on land leased from the Municipality of Amsterdam. The annual ground rent has been paid in advance (bought off) until 30-06-2053. An application is in progress to switch to perpetual ground lease under favorable conditions. The seller has opted to fix the annual canon from 2053 onwards. This amount of €209.72 will be indexed annually starting 01-01-2024.
SUSTAINABILITY:
This home is equipped with a high-efficiency central heating boiler (2021). In 2023, HR++ glazing was installed throughout the apartment. The energy label is C.
HOMEOWNERS’ ASSOCIATION (VvE):
The building was divided into 72 apartment rights in 2005 (Alkmaarstraat 1/83 – Groetstraat 189/217). The administration is professionally managed by PRO VVE Beheer, and there is a multi-year maintenance plan in place. The service charges are €238 per month, which includes building insurance and a reserve fund for maintenance.
DETAILS:
– Built in 1966
– Living area (NEN2580): 65.2 m²
– Storage on the ground floor and in the attic
– Renovated in 2022: new bathroom and kitchen, updated electrical installation and meter cupboard
– Ground lease bought off until 30-06-2053; application in progress to fix the canon under favorable conditions
– Healthy VvE with 72 apartment rights, professionally managed by PRO VVE Beheer
– Service charges €238 per month
– For applicable clauses, please refer to the document “clauses to be included in the deed of sale”
– Transfer date in consultation
This information has been compiled with the utmost care. However, we accept no liability for any incompleteness, inaccuracies, or otherwise, or the consequences thereof.
All stated dimensions and surface areas are indicative. The buyer has their own duty to investigate all matters of importance to them. Regarding this property, our office represents the seller. We advise you to engage an NVM/MVA estate agent, who will support you with their expertise throughout the purchasing process. If you choose not to engage professional guidance, you declare yourself, in accordance with the law, sufficiently expert to oversee all matters of importance. The NVM General Consumer Conditions apply.