**Please find the English translation below**
Charmant en sfeervol benedenhuis (souterrain) van 70 m² op eigen grond aan de iconische Leidsekade, volledig gerenoveerd met nieuwe fundering (2019)
Wonen aan één van de mooiste grachten van Amsterdam? Welkom aan de Leidsekade 72 E, een ruim en stijlvol driekamerappartement van ca. 70 m², gelegen in het souterrain. Het appartement maakt deel uit van een in 2019 volledig gerenoveerd pand, waarbij onder andere de fundering is vernieuwd.
INDELING
Via het gemeenschappelijke portiek met intercom en brievenbussen bereik je de entree van het gebouw, waar slechts twee appartementen op uitkomen. Vanuit de hal neem je de trap naar het souterrain, waar de woning zich bevindt.
Entree in een compacte hal met meterkast en bergruimte. De woonkamer is licht en ruim, met hoge plafonds en een moderne open keuken voorzien van diverse inbouwapparatuur. Vanuit de centrale gang heb je toegang tot twee comfortabele slaapkamers en een luxe afgewerkte badkamer met ligbad, inloopdouche, toilet en wastafelmeubel. Daarnaast is er een aparte berging voor opslag en bijvoorbeeld een droger, hiernaast bevindt zich de kast met aansluiting voor de wasmachine en opstelling van de CV ketel
De gehele woning is voorzien van vloerverwarming en strak gestuukte wanden, instapklaar en stijlvol afgewerkt.
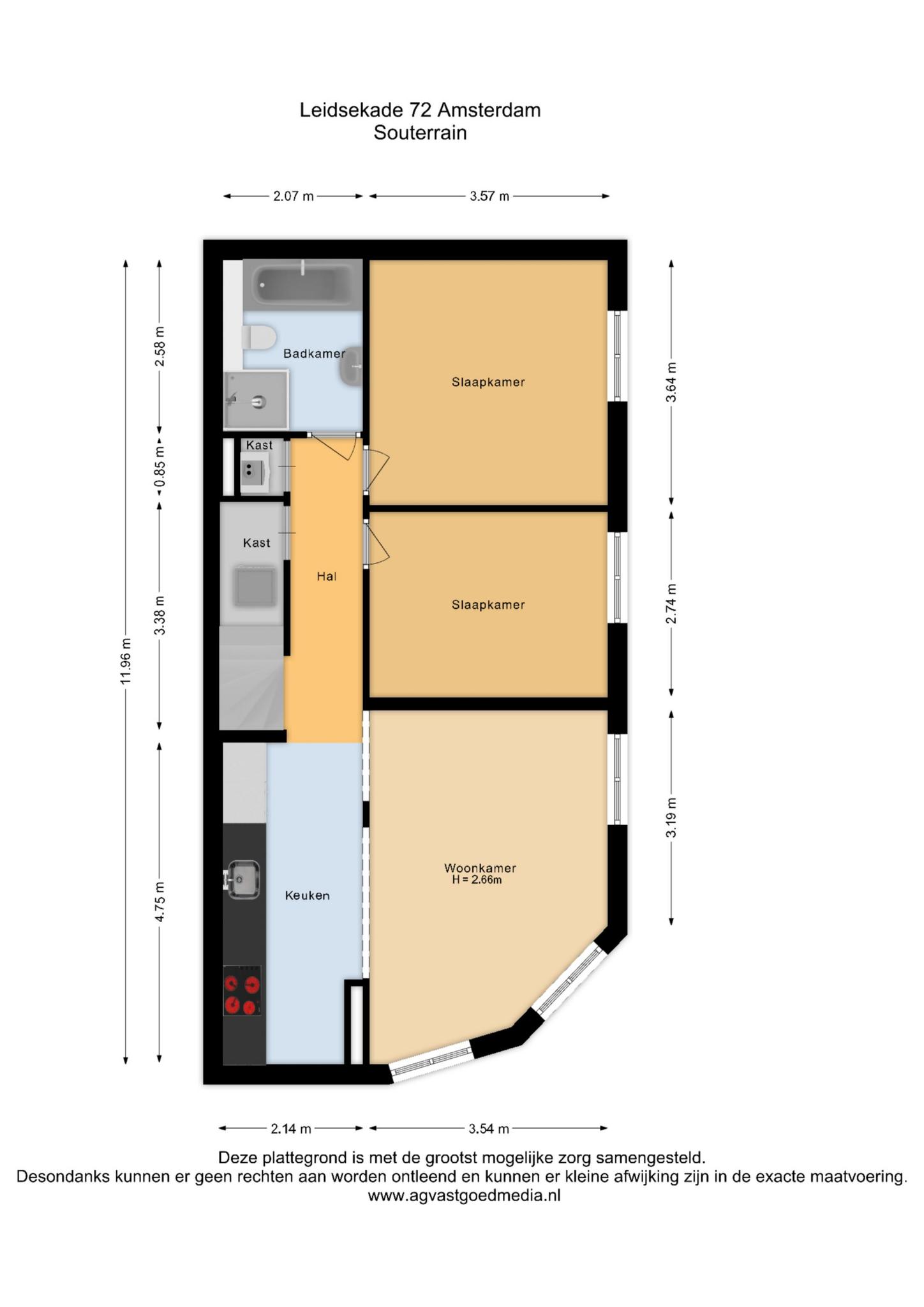
Voor de exacte maatvoering verwijzen wij graag naar de plattegronden in 2D en 3D onder het kopje ‘plattegrond’.
OMGEVING
De Leidsekade is een geliefde locatie in het centrum van Amsterdam. Gelegen op de hoek met de Marnixstraat, met uitzicht over het water van de Leidsegracht, woon je hier te midden van het bruisende stadsleven.
Om de hoek vind je het Leidseplein met zijn theaters, concertzalen, restaurants en cafés. Ook het Vondelpark, de gezellige 9 Straatjes, de chique winkelstraten en de dagelijkse voorzieningen van de Elandsgracht zijn op korte loopafstand. Deze locatie biedt het allerbeste van Amsterdam: cultuur, natuur, gastronomie én bereikbaarheid.
BEREIKBAARHEID
Openbaar vervoer is hier uitstekend geregeld: diverse tramlijnen stoppen op loopafstand, net als het busstation aan de Marnixstraat. Ook met de fiets of te voet ben je in no-time in de Jordaan, Oud-West of op de Zuidas. Parkeren kan via betaald parkeren op de openbare weg of via een bewonersvergunning (gebied Centrum 2).
DUURZAAMHEID EN RENOVATIE
In 2019 is het gehele pand gerenoveerd, waarbij ook de fundering is vernieuwd. De woning is goed geïsoleerd en voorzien van moderne installaties, waaronder:
-Volledige vloerverwarming
-CV-ketel (Remeha, 2019)
-Dubbele beglazing
-Luxe afwerking van keuken en badkamer
VERENIGING VAN EIGENAREN (VvE)
De woning maakt deel uit van de kleinschalige VvE Leidsekade 72 A t/m E, bestaande uit vijf appartementen. De VvE is in 2024 officieel geactiveerd, en sindsdien wordt er maandelijks een reservering opgebouwd. De maandelijkse bijdrage bedraagt €150 per appartement. De VvE bevindt zich nog in de opstartfase.
ERFPACHT
De woning is gelegen op eigen grond, er is dus géén erfpacht van toepassing.
BIJZONDERHEDEN
-Woonoppervlakte ca. 70 m² (NEN2580)
-Gelegen op eigen grond
-Volledig gerenoveerd in 2019, inclusief fundering
-2 slaapkamers
-Hoge plafonds, vloerverwarming, luxe afwerking
-Kleinschalige VvE (5 leden), bijdrage €150 per maand
-VvE actief sinds januari 2024
-Gelegen op een toplocatie in het centrum van Amsterdam
-Oplevering in overleg, kan snel
Deze informatie is met de nodige zorgvuldigheid samengesteld. Wij aanvaarden echter geen enkele aansprakelijkheid voor enige onvolledigheid, onjuistheid of anderszins, dan wel de gevolgen daarvan.
Alle opgegeven maten en oppervlakten zijn indicatief. Koper heeft zijn eigen onderzoeksplicht naar alle zaken, die voor hem van belang zijn. Met betrekking tot deze woning is ons kantoor de makelaar van verkoper. Wij adviseren u een NVM/MVA Makelaar in te schakelen, die u met zijn deskundigheid zal bijstaan in het aankoopproces. Indien u geen professionele begeleiding wenst in te schakelen, acht u zich volgens de wet deskundig genoeg om alle zaken, die van belang zijn, te kunnen overzien. De Algemene Consumentenvoorwaarden van de NVM zijn van toepassing.
==================================English=================================
Charming and Atmospheric Ground-Floor Apartment (Souterrain) of 70 m² on Freehold Land on the Iconic Leidsekade, Fully Renovated with New Foundation (2019)
Would you like to live on one of Amsterdam’s most beautiful canals? Welcome to Leidsekade 72 E, a spacious and stylish three-room apartment of approx. 70 m², located on the souterrain level. The apartment is part of a building that was completely renovated in 2019, including the renewal of the foundation.
LAYOUT
Via the shared entrance with intercom and mailboxes, you reach the main hallway serving only two apartments. From there, a staircase leads down to the souterrain, where the home is located.
Entry into a compact hallway with a meter cupboard and storage space. The living room is bright and spacious, featuring high ceilings and a modern open kitchen equipped with various built-in appliances. The central hallway provides access to two comfortable bedrooms and a luxuriously finished bathroom with a bathtub, walk-in shower, toilet, and vanity unit. There is also a separate storage room for storage and, for example, a dryer, next to this is the closet with connection for the washing machine and arrangement of the central heating boiler
The entire apartment features underfloor heating and sleek plastered walls, move-in ready and stylishly finished.
For exact measurements, please refer to the 2D and 3D floor plans under the section “Floor Plan.”
SURROUNDINGS
Leidsekade is a beloved location in the heart of Amsterdam. Situated on the corner of Marnixstraat and overlooking the waters of the Leidsegracht, you live here in the midst of the city’s vibrant life.
Just around the corner is Leidseplein, with its theatres, concert halls, restaurants, and cafés. Vondelpark, the charming 9 Streets (De 9 Straatjes), upscale shopping districts, and the daily amenities of Elandsgracht are all within short walking distance. This location offers the very best of Amsterdam: culture, nature, gastronomy, and accessibility.
ACCESSIBILITY
Public transport is excellent in this area: multiple tram lines stop within walking distance, as well as the Marnixstraat bus station. Whether by bike or on foot, you can easily reach the Jordaan, Oud-West, or the Zuidas. Parking is available via paid street parking or a resident permit (Zone Centrum 2).
SUSTAINABILITY AND RENOVATION
The entire building was renovated in 2019, including a new foundation. The property is well insulated and equipped with modern installations, including:
-Full underfloor heating
-Central heating system (Remeha, 2019)
-Double glazing
-Luxurious kitchen and bathroom finishes
HOMEOWNERS’ ASSOCIATION (VvE)
The property is part of the small-scale VvE Leidsekade 72 A to E, consisting of five apartments. The association was officially activated in 2024, and a monthly reserve fund has been in place since then. The monthly contribution is €150 per apartment. The VvE is still in the startup phase.
FREEHOLD
The apartment is located on freehold land, so no leasehold applies.
KEY FEATURES
-Living area approx. 70 m² (NEN2580)
-Situated on freehold land
-Fully renovated in 2019, including foundation
-2 bedrooms
-High ceilings, underfloor heating, luxury finishes
-Small-scale VvE (5 members), contribution €150 per month
-VvE active since January 2024
-Prime central Amsterdam location
-Transfer by agreement, can be arranged quickly
This information has been compiled with the utmost care. However, we accept no liability for any inaccuracies, omissions, or consequences thereof.
All stated measurements and surfaces are indicative. The buyer has a duty to conduct their own investigation into all matters that are of importance to them. With regard to this property, our office acts as the seller’s estate agent. We recommend engaging an NVM/MVA real estate agent to support you with their expertise during the purchasing process. If you choose not to use professional assistance, the law assumes you are sufficiently knowledgeable to oversee all relevant matters yourself. The General Consumer Conditions of the NVM apply.