**Please find the English translation below**
Op een rustige en groene locatie in Hoofddorp, op loopafstand van het Centrum, bieden wij dit luxe en volledig vernieuwbouwde 4-kamer appartement op de begane grond aan.
De woning beschikt over drie ruime slaapkamers, een zonnige achtertuin op het zuidwesten én een eigen parkeerplaats. Dankzij de recente renovatie (2025) verkeert het appartement in absolute nieuwstaat en is het voorzien van alle moderne gemakken. Met energielabel A++ en hoogwaardige afwerking is dit een unieke kans om instap klaar te wonen op een centrale locatie.
Nieuwsgierig geworden? Bel ons voor het maken van een afspraak, één van onze makelaars leidt je graag rond!
LOCATIE
De Manegelaan is gelegen in een rustige en kindvriendelijke woonwijk in Hoofddorp, met volop groen en parkeergelegenheid in de directe omgeving. Binnen enkele minuten fietsen bereik je het centrum van Hoofddorp, waar een groot aanbod aan winkels, supermarkten, horeca en speciaalzaken te vinden is. Ook scholen, sportverenigingen en medische voorzieningen liggen binnen handbereik.
Voor recreatie kun je terecht in het Haarlemmermeerse Bos, waar je heerlijk kunt wandelen, sporten of genieten aan de Toolenburgerplas. Dankzij de gunstige ligging ben je bovendien snel in de omliggende steden: Amsterdam, Haarlem en Schiphol zijn binnen 20 minuten te bereiken via de A4, A5 en N201. Met het NS-station Hoofddorp om de hoek is er tevens een uitstekende treinverbinding richting Amsterdam, Den Haag en Rotterdam. Kortom, een centrale en toch rustige plek met alle voorzieningen in de buurt.
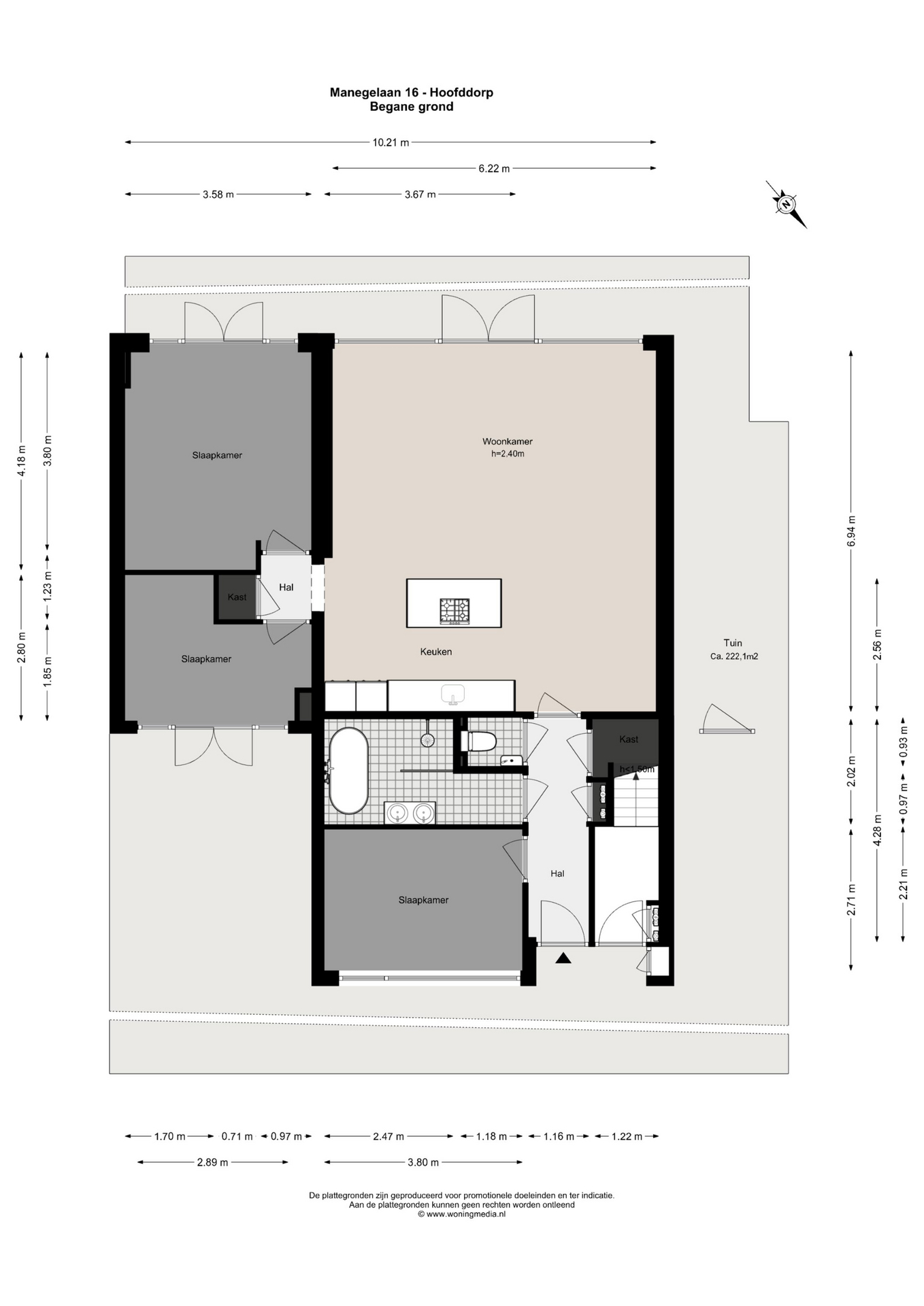
INDELING
Begane grond: Eigen entree aan de voorzijde met hal en meterkast. Vanuit de hal toegang tot de eerste slaapkamer aan de voorzijde. Daarnaast bevindt zich de centrale badkamer, voorzien van ligbad, inloopdouche, dubbel wastafelmeubel. Separaat toilet.
Aan de tuinzijde ligt de royale woonkamer met moderne open keuken en kookeiland (Nolte Lux), uitgerust met Siemens-apparatuur zoals een inductiekookplaat met geïntegreerde afzuiging, koelkast, vriezer, wijnklimaatkast, vaatwasser en multifunctionele oven met magnetronfunctie. Vanuit de woonkamer geven openslaande deuren toegang tot de zonnige achtertuin op het zuidwesten.
Aan de linkerzijde van de woning zijn nog twee ruime slaapkamers gesitueerd, bereikbaar via de tussenhal met bergkast wasmachineruimte. Tot slot beschikt de woning over een eigen én een gedeelde parkeerplaats op het terrein.
Voor de indeling verwijzen we je tevens graag door naar de plattegronden, deze zijn te bekijken in 2D en in 3D en zijn te vinden onder het kopje “plattegrond”.
DUURZAAMHEID
De woning is volledig vernieuwbouwd in 2025 en voldoet aan de hoogste duurzaamheidseisen. Met energielabel A++ en een volledig elektrische installatie ben je klaar voor de toekomst. Verwarming én koeling worden verzorgd door een volledig elektrische warmtepomp van Nederlandse makelij (merk DeWarmte), gecombineerd met vloerverwarming.
Deze woning is dus gas loos.
Voor het comfort is de woning uitgerust met een Ring video-deurbel en moderne elektrische installaties. Warm water wordt geleverd via boiler (nog in te vullen).
VERENIGING VAN EIGENAREN (VvE)
De VvE is net opgericht en bevindt zich in de opstartfase. Inmiddels is de VvE ingeschreven bij de Kamer van Koophandel en beschikt zij over een eigen bankrekening. In 2025 is het pand gesplitst in 2 appartementsrechten.
BIJZONDERHEDEN
– Appartement op de begane grond
– 3 ruime slaapkamers
– Zonnige achtertuin op het zuidwesten
– Hoogwaardig en luxe afgewerkt
– Bouwjaar 1968, volledig vernieuwbouwd in 2025
– Servicekosten € 125 per maand
– Energielabel A++ – Woonoppervlakte (NEN2580) 99,3 m²
– Eigen grond – VvE bestaande uit 2 appartementsrechten, maar nog in de opstartfase
– Voor de op te nemen clausules verwijzen we je door naar het formulier “op te nemen clausules in de koopakte”
– Projectnotaris: Lubbers & Dijk Notarissen in Amsterdam
– Oplevering in overleg, kan snel
Deze informatie is met de nodige zorgvuldigheid samengesteld. Wij aanvaarden echter geen enkele aansprakelijkheid voor enige onvolledigheid, onjuistheid of anderszins, dan wel de gevolgen daarvan.
Alle opgegeven maten en oppervlakten zijn indicatief. Koper heeft zijn eigen onderzoeksplicht naar alle zaken, die voor hem van belang zijn. Met betrekking tot deze woning is ons kantoor de makelaar van verkoper. Wij adviseren u een NVM/MVA Makelaar in te schakelen, die u met zijn deskundigheid zal bijstaan in het aankoopproces. Indien u geen professionele begeleiding wenst in te schakelen, acht u zich volgens de wet deskundig genoeg om alle zaken, die van belang zijn, te kunnen overzien. De Algemene Consumentenvoorwaarden van de NVM zijn van toepassing.
==================================English=================================
In a quiet and green location in Hoofddorp, within walking distance of the town center, we are offering this luxurious and completely redeveloped 4-room ground-floor apartment. The property features three spacious bedrooms, a sunny southwest-facing garden, and a private parking space. Thanks to the recent renovation (2025), the apartment is in brand-new condition and equipped with all modern conveniences. With an energy label A++ and high-quality finishes, this is a unique opportunity to move straight in at a central location.
Curious? Call us to schedule a viewing, one of our agents will be happy to show you around!
LOCATION
Manegelaan is located in a quiet, child-friendly residential area in Hoofddorp, surrounded by greenery and with plenty of parking in the immediate vicinity. Within just a few minutes by bike, you’ll reach the town center, which offers a wide range of shops, supermarkets, restaurants, and specialty stores. Schools, sports clubs, and medical facilities are also close at hand.
For recreation, you can visit the Haarlemmermeerse Bos, perfect for walking, sports, or relaxing by the Toolenburgerplas lake. Thanks to its convenient location, you can also reach the surrounding cities quickly: Amsterdam, Haarlem, and Schiphol Airport are all within 20 minutes via the A4, A5, and N201. With Hoofddorp railway station just around the corner, there is also an excellent train connection to Amsterdam, The Hague, and Rotterdam. In short: a central yet peaceful location with every amenity nearby.
LAYOUT
Ground floor: Private entrance at the front with hallway and meter cupboard. From the hallway, access to the first bedroom at the front. Next is the central bathroom, fitted with a bathtub, walk-in shower, and double vanity unit. Separate toilet.
At the rear, overlooking the garden, is the spacious living room with a modern open kitchen and cooking island (Nolte Lux), equipped with Siemens appliances including an induction hob with integrated extractor, fridge, freezer, wine cooler, dishwasher, and multifunctional oven with microwave function. French doors open directly onto the sunny southwest-facing garden.
On the left side of the apartment are two further spacious bedrooms, accessible via the intermediate hall with storage and laundry area. Finally, the property includes both a private and a shared parking space on the premises.
For the exact layout, please refer to the floor plans, available in both 2D and 3D, which can be found under the tab “Floor plan.”
SUSTAINABILITY
The property was completely redeveloped in 2025 and meets the highest sustainability standards. With energy label A++ and a fully electric installation, it is future-proof. Heating and cooling are provided by a fully electric Dutch-made heat pump (brand: DeWarmte), combined with underfloor heating.
The apartment is gas-free.
For added comfort, the property is equipped with a Ring video doorbell and modern electrical installations. Hot water is supplied via a boiler (to be specified).
HOMEOWNERS’ ASSOCIATION (HOA)
The HOA has recently been established and is in its start-up phase. It has already been registered with the Chamber of Commerce and has its own bank account. In 2025, the building was legally divided into two apartment rights.
HIGHLIGHTS
– Ground-floor apartment
– 3 spacious bedrooms
– Sunny southwest-facing garden
– High-quality and luxurious finishes
– Originally built in 1968, completely redeveloped in 2025
– Service charges €125 per month
– Energy label A++
– Living area (NEN2580): 99.3 m²
– Freehold (no ground lease)
– HOA consisting of 2 apartment rights, still in start-up phase
– For applicable clauses, please refer to the form “Clauses to be included in the purchase agreement”
– Project notary: Lubbers & Dijk Notarissen in Amsterdam
– Transfer by mutual agreement, available at short notice
This information has been compiled with the utmost care. However, we accept no liability for any incompleteness, inaccuracies, or otherwise, nor for the consequences thereof.
All stated dimensions and surfaces are indicative. Buyers are expected to carry out their own investigation into all matters of importance to them. Regarding this property, our office acts as the seller’s estate agent. We advise you to engage an NVM/MVA estate agent, who can assist you with their expertise in the purchase process. Should you choose not to engage professional representation, you declare yourself sufficiently knowledgeable by law to oversee all relevant matters. The General Consumer Conditions of the NVM apply.