Aan de rand van Heemstede, Hoofddorp en Haarlem bieden wij deze charmante twee-onder-één-kapwoning aan. De woning is in 2023 op de begane grond volledig verbouwd,ook is de hele woning onlangs (juli) van buiten geschilderd. De woning beschikt over een woonkamer met openslaande deuren naar de zonnige achtertuin, een moderne woonkeuken, vier slaapkamers en een sfeervolle zolderkamer. Dankzij de landelijke ligging met goede bereikbaarheid naar de Randstad woon je hier rustig, maar toch centraal. De huidige bewoners huren een ligplaats aan de ringvaart (einde straat) en deze kan mogelijk worden overgenomen.
Nieuwsgierig geworden? Bel ons voor het maken van een afspraak, één van onze makelaars leidt je graag rond!
Locatie
Wonen aan de Oude Kruisweg betekent het beste van twee werelden: de rust van een groen dorp én de nabijheid van de stad. Cruquius heeft een charmant, dorps karakter en ontwikkelt zich razendsnel met steeds meer voorzieningen in de buurt. Binnen enkele minuten ben je in Hoofddorp, Heemstede of Haarlem, waar een ruim aanbod aan winkels, restaurants en culturele voorzieningen te vinden is.
Voor ontspanning en natuur hoef je de deur nauwelijks uit: recreatiegebieden De Groene Weelde, Spaarnwoude, Haarlemmermeerse bos de Ringvaart liggen om de hoek en bieden volop mogelijkheden om te wandelen, fietsen of varen. Ook sportclubs en basisscholen zijn dichtbij.
De bereikbaarheid is uitstekend: met de bus sta je zo in Haarlem, Amsterdam of Hoofddorp en met de auto rijd je binnen enkele minuten de N205 op richting de A4, A5 en A9. Daarmee zijn Schiphol en Amsterdam verrassend snel bereikbaar, terwijl je toch dagelijks geniet van de rust en ruimte van Cruquius. Ook zijn de OV beschikbaarheden voordelig. Zo ben je met de bus en en trein al in een half uur in Amsterdam.
INDELING
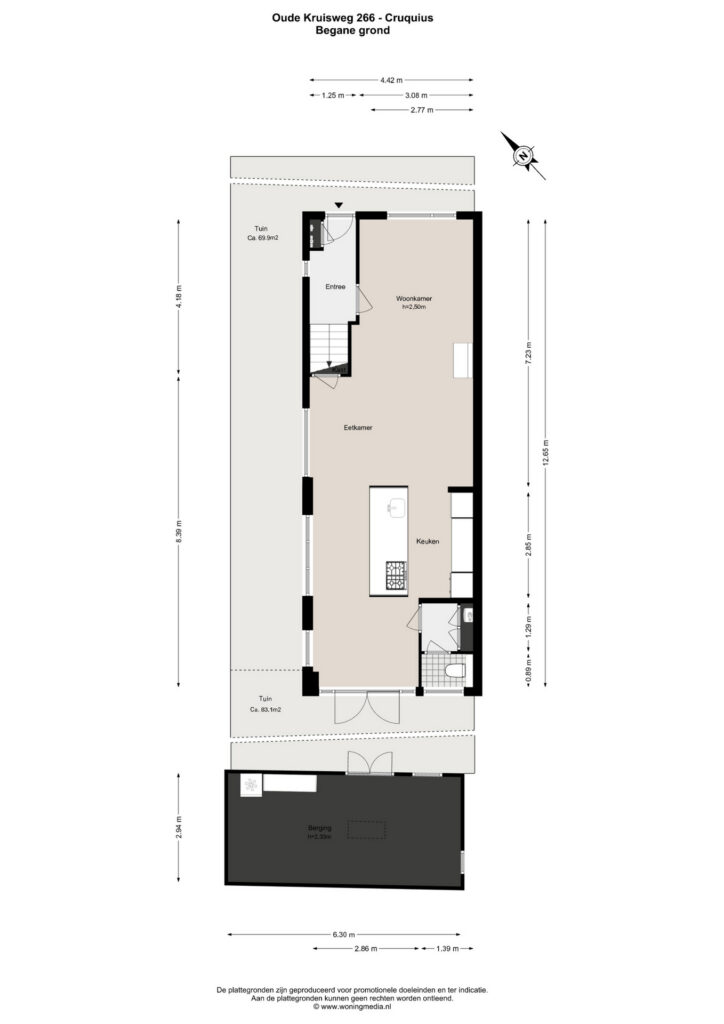
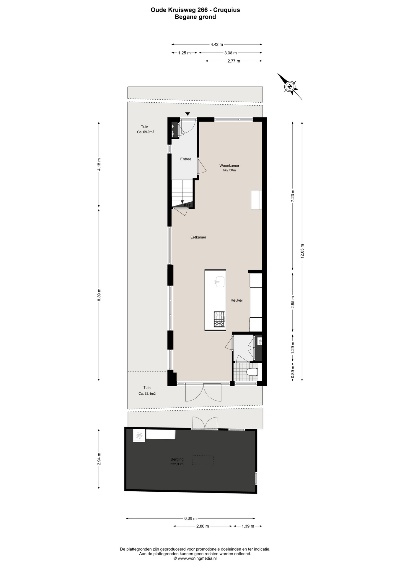
Begane grond
Diepe voortuin. Entree met hal, meterkast en vernieuwde groepenkast. Ruime en lichte woonkamer met Hongaarse punt en open haard. Luxe woonkeuken voorzien van diverse inbouwapparatuur. Via de openslaande deuren bereik je de zonnige achtertuin op het zuidwesten, met fruitbomen, struiken en blauwe regen. Achterin staat een grote vrijstaande schuur met pannendak en bergzolder.
Eerste verdieping
Overloop, slaapkamer aan de voorzijde, tweede slaapkamer aan de voorzijde, badkamer met ligbad, douche, dubbele wastafel en toilet. Verder een slaapkamer aan de zijkant met zijraam en de ruime hoofdslaapkamer aan de achterzijde met vaste kastenwand.
Tweede verdieping
Vaste trap naar de zolder met sfeervolle werk-/slaapkamer, voorzien van dakkapel. Door de stahoogte van 1.90 meter telt dit niet mee in de officiële woonoppervlakte, maar deze ruimte is uitstekend bruikbaar.
DUURZAAMHEID
De woning heeft energielabel C en beschikt over dak-, muur- en vloerisolatie. Op de begane grond is vloerverwarming aanwezig. Dankzij het platte dak zijn er uitstekende mogelijkheden om zonnepanelen te plaatsen. Alle bedrading ligt klaar voor zonnepanelen, enkel de panelen ontbreken nog.
BIJZONDERHEDEN
– Bouwjaar 1930
– Woonoppervlakte: 111 m² (NEN2580)
– Overige inpandige ruimte (zolder, h=1.90 m): 9,2 m²
– Totaal adverteren wij met 120 m²
– Inhoud: 389 m³
– Perceeloppervlakte: 271 m²
– Energielabel C
– Isolatie: dak, muur en vloer + vloerverwarming begane grond
– Benedenverdieping volledig verbouwd in 2023
– Vrijstaande schuur met elektra en bergzolder
– Zonnige achtertuin op het zuidwesten
– CV-ketel: HR-combiketel Remeha
– Gelegen nabij Hoofddorp, Heemstede en Haarlem
– Oplevering in overleg
======English======
At the edge of Heemstede, Hoofddorp and Haarlem we offer this charming semi-detached house. The ground floor of the house was completely renovated in 2023, and the entire house was recently (July) painted on the outside. The house has a living room with French doors to the sunny backyard, a modern kitchen-diner, four bedrooms and an atmospheric attic room. Thanks to the rural location with good accessibility to the Randstad you live here quietly, yet centrally. The current residents rent a mooring on the Ringvaart (end of the street) and this may possibly be taken over.
Curious? Call us to make an appointment, one of our brokers will be happy to show you around!
Location
Living on the Oude Kruisweg means the best of both worlds: the peace of a green village and the proximity of the city. Cruquius has a charming, village character and is developing rapidly with more and more facilities nearby. Within a few minutes you are in Hoofddorp, Heemstede or Haarlem, where a wide range of shops, restaurants and cultural facilities can be found.
For relaxation and nature you hardly need to leave the house: recreation areas De Groene Weelde, Spaarnwoude, Haarlemmermeerse Bos and the Ringvaart are around the corner and offer plenty of opportunities for walking, cycling or boating. Sports clubs and primary schools are also close by.
Accessibility is excellent: by bus you are quickly in Haarlem, Amsterdam or Hoofddorp and by car you are on the N205 within a few minutes towards the A4, A5 and A9. This makes Schiphol and Amsterdam surprisingly quickly accessible, while you still enjoy the peace and space of Cruquius every day. Public transport connections are also favorable. For example, by bus and train you can reach Amsterdam within half an hour.
Layout
Ground floor
Deep front garden. Entrance with hall, meter cupboard and renewed fuse box. Spacious and bright living room with Hungarian point and fireplace. Luxury kitchen-diner with various built-in appliances. Through the French doors you reach the sunny backyard facing southwest, with fruit trees, shrubs and wisteria. At the back stands a large detached shed with tiled roof and storage attic.
First floor
Landing, bedroom at the front, second bedroom at the front, bathroom with bathtub, shower, double sink and toilet. Furthermore, a side bedroom with side window and the spacious master bedroom at the rear with fitted wardrobe.
Second floor
Fixed staircase to the attic with atmospheric work/bedroom, with dormer. Due to the ceiling height of 1.90 meters this does not count towards the official living area, but this space is perfectly usable.
Sustainability
The house has energy label C and has roof, wall and floor insulation. On the ground floor underfloor heating is present. Thanks to the flat roof there are excellent possibilities to install solar panels. All wiring is ready for solar panels, only the panels are missing.
Particulars:
-Year of construction: 1930
-Living area: 111 m² (NEN2580)
-Other indoor space (attic, h=1.90 m): 9.2 m²
-In total we advertise with 120 m²
-Volume: 389 m³
-Plot size: 271 m²
-Energy label C
-Insulation: roof, wall and floor + underfloor heating ground floor
-Ground floor fully renovated in 2023
-Detached shed with electricity and storage attic
-Sunny backyard facing southwest
-Central heating: HR-combi boiler Remeha
-Located near Hoofddorp, Heemstede and Haarlem
-Delivery in consultation
This information has been compiled with the utmost care. However, we accept no liability for any incompleteness, inaccuracies, or otherwise, or the consequences thereof.
All stated dimensions and surface areas are indicative. The buyer has their own duty to investigate all matters of importance to them. Regarding this property, our office represents the seller. We advise you to engage an NVM/MVA estate agent, who will support you with their expertise throughout the purchasing process. If you choose not to engage professional guidance, you declare yourself, in accordance with the law, sufficiently expert to oversee all matters of importance. The NVM General Consumer Conditions apply.