**Please find the English translation below**
Licht 2-kamerappartement van 58 m² met twee balkons, berging én energielabel A in een rustige en groene wijk in Amsterdam-Noord
Ben je op zoek naar een licht en goed ingedeeld appartement met twee balkons, een berging én een fijne, rustige ligging in Amsterdam-Noord? Dan is dit je kans! Dit appartement aan de Tegenhouderstraat ligt op de tweede verdieping van een verzorgd complex met actieve VvE en beschikt over een heerlijk vrij uitzicht, een moderne badkamer én een keuken met inbouwapparatuur. Bovendien is de erfpacht eeuwigdurend afgekocht, dus geen extra kosten in de toekomst!
Nieuwsgierig geworden? Bel ons voor het maken van een afspraak, één van onze makelaars leidt je graag rond!
LOCATIE:
De Tegenhouderstraat is een rustige en ruim opgezette straat in het noordwesten van Amsterdam-Noord. De directe omgeving is groen, kindvriendelijk en heeft een bijna dorps karakter. Om de hoek liggen een speeltuintje en een Cruijff Court. Voor je dagelijkse boodschappen kun je terecht bij het nabijgelegen winkelcentrum Molenwijk of bij de kleine buurtwinkels in de wijk. Liever de stad in? Met de fiets ben je binnen 10 minuten bij de Noord/Zuidlijn, die je razendsnel naar de binnenstad brengt. Ook de ponten naar het Centraal Station en Pontsteiger zijn vlot bereikbaar. En natuurlijk zit je zó bij hotspots als NDSM-werf, Pllek, Loetje aan ’t IJ, Eye, en de A’DAM Toren. Met de auto rijd je binnen enkele minuten de Ring A10 op, en in deze wijk parkeer je nog gewoon gratis. Zin in natuur? Recreatiegebied ’t Twiske ligt op een paar minuten fietsen.
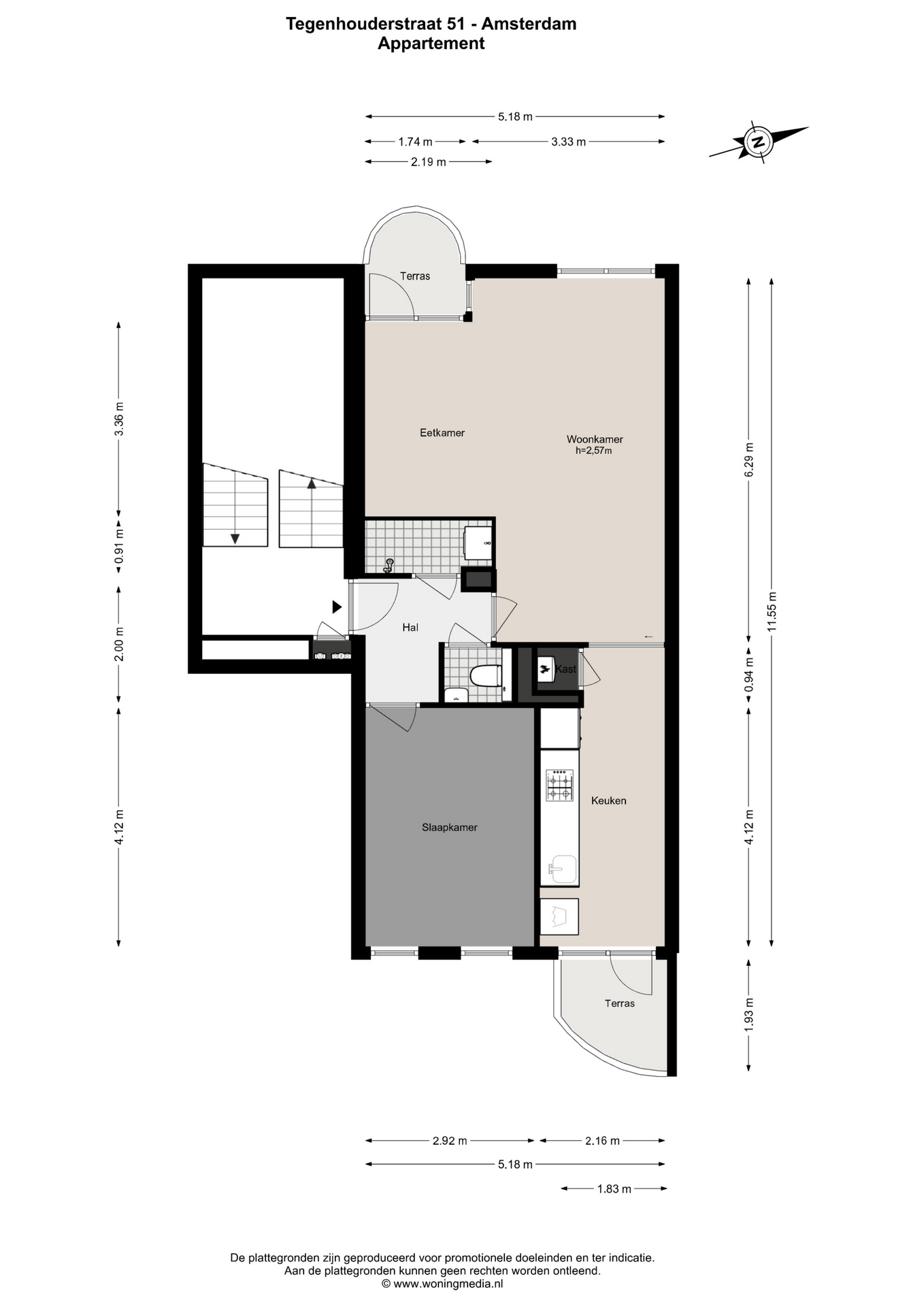
INDELING:
Begane grond: Gemeenschappelijke entree, bellentableau, trappenhuis en toegang tot de bergingen in de binnentuin.
Tweede verdieping: Entree van de woning via de overloop. Binnenkomst in de hal met toegang tot alle vertrekken. De badkamer is modern afgewerkt en voorzien van een inloopdouche, wastafel en designradiator. Separaat toilet met fonteintje. Aan de achterzijde vind je de ruime slaapkamer. De keuken ligt eveneens aan de achterzijde met toegang tot het balkon op het oosten, perfect voor je ochtendkoffie in de zon. Verder is ze uitgerust met diverse inbouwapparatuur, waaronder een koelkast, oven, vaatwasser, 4-pits kookplaat, afzuigkap en een aansluiting voor de wasmachine. De woonkamer ligt aan de voorzijde en is heerlijk licht dankzij de grote raampartijen. Ook hier een balkon, ditmaal op het westen, perfect om van de avondzon te genieten.
Voor de indeling verwijzen we je tevens graag door naar de plattegronden, deze zijn te bekijken in 2D en in 3D en zijn te vinden onder het kopje “plattegrond”.
ERFPACHT: De erfpacht is eeuwigdurend afgekocht, je betaalt hier dus geen jaarlijkse canon meer.
DUURZAAMHEID:
De volledige verduurzaming van het complex is recent afgerond. In 2025 zijn onder andere de kunststof kozijnen met HR+++ glas geplaatst, de ventilatie is verbeterd en bij de entree is een videodeurbel geïnstalleerd. De woning beschikt over energielabel A – comfortabel en toekomstbestendig.
VERENIGING VAN EIGENAREN (VvE):
De VvE bestaat uit 121 appartementsrechten en wordt professioneel beheerd door Arlanda VvE Beheer. De maandelijkse bijdrage bedraagt € 246,- per maand. De VvE is actief, met een gezond reservefonds en meerjarenonderhoudsplan.
BIJZONDERHEDEN:
• Woonoppervlakte ca. 58 m² (NEN2580)
• Twee balkons: oost en west
• Individuele berging op de begane grond
• Erfpacht eeuwigdurend afgekocht
• Energielabel A
• Verduurzaming afgerond in 2025 (HR+++ glas, ventilatie, videodeurbel)
• Actieve en professioneel beheerde VvE, bijdrage € 246,- per maand
• Notariskeuze aan koper (model koopakte Ring Amsterdam, notaris in Amsterdam)
• Oplevering in overleg
Deze informatie is met de nodige zorgvuldigheid samengesteld. Wij aanvaarden echter geen enkele aansprakelijkheid voor enige onvolledigheid, onjuistheid of anderszins, dan wel de gevolgen daarvan. Alle opgegeven maten en oppervlakten zijn indicatief. Koper heeft zijn eigen onderzoeksplicht naar alle zaken, die voor hem van belang zijn. Met betrekking tot deze woning is ons kantoor de makelaar van verkoper. Wij adviseren u een NVM/MVA Makelaar in te schakelen, die u met zijn deskundigheid zal bijstaan in het aankoopproces. Indien u geen professionele begeleiding wenst in te schakelen, acht u zich volgens de wet deskundig genoeg om alle zaken, die van belang zijn, te kunnen overzien. De Algemene Consumentenvoorwaarden van de NVM zijn van toepassing.
==================================English=================================
Bright 1-Bedroom Apartment of 58 m² with Two Balconies, Storage Room, and Energy Label A in a Quiet and Green Area of Amsterdam-Noord
Are you looking for a bright, well-laid-out apartment with two balconies, a storage room, and a peaceful location in Amsterdam-Noord? Then this is your chance! This apartment on Tegenhouderstraat is located on the second floor of a well-maintained complex with an active homeowners’ association (VvE). It offers an open view, a modern bathroom, and a kitchen with built-in appliances. The leasehold has been bought off in perpetuity, so there are no future payments.
Curious? Call us to schedule a viewing – one of our agents will be happy to show you around!
LOCATION:
Tegenhouderstraat is a quiet, spacious street in the north-west of Amsterdam-Noord. The immediate surroundings are green, child-friendly, and have a village-like feel. Around the corner, you’ll find a playground and a Cruyff Court. For your daily groceries, you can visit the nearby Molenwijk shopping centre or small local shops in the area.
Want to head into the city? In just 10 minutes by bike, you can reach the North/South metro line, which takes you quickly to the city centre. The ferries to Central Station and Pontsteiger are also close by. And of course, popular hotspots such as the NDSM wharf, Pllek, Loetje aan ’t IJ, Eye Filmmuseum, and the A’DAM Tower are all within easy reach. By car, you can access the A10 Ring Road within minutes, and parking in this area is still free. Nature lovers will enjoy recreational area ’t Twiske, just a short bike ride away.
LAYOUT:
Ground floor:
Communal entrance, intercom system, stairwell, and access to the storage rooms in the inner courtyard.
Second floor:
Entrance to the apartment from the landing. Hallway giving access to all rooms. The bathroom is modern and features a walk-in shower, washbasin, and designer radiator. Separate toilet with washbasin.
At the rear, you’ll find the spacious bedroom. The kitchen is also located at the rear, with access to the east-facing balcony, perfect for your morning coffee in the sun. The kitchen is equipped with various built-in appliances, including a fridge, oven, dishwasher, 4-burner hob, extractor hood, and washing machine connection.
The living room is situated at the front and is wonderfully bright thanks to the large windows. This room opens onto the west-facing balcony, the ideal spot to enjoy the evening sun.
For the exact layout, please refer to the 2D and 3D floor plans under the “plattegrond” section.
GROUND LEASE:
The ground lease has been bought off in perpetuity – so you will never have to pay an annual ground rent.
SUSTAINABILITY:
The complete sustainability upgrade of the complex was recently completed. In 2025, new plastic window frames with HR+++ glazing were installed, the ventilation system was improved, and a video doorbell was added at the entrance. The apartment has energy label A – comfortable and future-proof.
HOMEOWNERS’ ASSOCIATION (VvE):
The VvE consists of 121 apartment rights and is professionally managed by Arlanda VvE Beheer. The monthly contribution is €246. The VvE is active, with a healthy reserve fund and a multi-year maintenance plan.
KEY FEATURES:
•Living area approx. 58 m² (NEN2580)
•Two balconies: east and west
•Private storage room on the ground floor
•Ground lease bought off in perpetuity
•Energy label A
•Sustainability upgrade completed in 2025 (HR+++ glazing, ventilation, video doorbell)
•Active and professionally managed VvE, contribution €246 per month
•Buyer’s choice of notary (Amsterdam Ring model purchase agreement, notary in Amsterdam)
•Handover in consultation
This information has been compiled with the utmost care. However, we do not accept any liability for any inaccuracies, incompleteness, or consequences thereof. All stated dimensions and surface areas are indicative. The buyer is responsible for conducting their own investigation into all matters of importance to them. Regarding this property, our office represents the seller. We advise you to engage an NVM/MVA certified estate agent to assist you in the purchasing process. If you choose not to seek professional guidance, the law assumes you are sufficiently knowledgeable to oversee all relevant matters. The General Consumer Terms and Conditions of the NVM apply.