**Please find the English translation below**
Ruime en lichte maisonnette van 111 m² met eigen parkeerplaats, twee slaapkamers, vernieuwde badkamer (2022) en een zonnig terras van ca. 25 m², gelegen in de populaire Waterlandpleinbuurt in Amsterdam-Noord.
De woning heeft een plafondhoogte van bijna 2,7 meter, beschikt over energielabel A en is onderdeel van een goed functionerende VvE. Een heerlijke plek om comfortabel en duurzaam te wonen, met winkels, horeca en openbaar vervoer binnen handbereik.
Nieuwsgierig geworden? Bel ons voor het maken van een afspraak, één van onze makelaars leidt je graag rond!
LOCATIE
Het Waterlandplein is de centrale ontmoetingsplek van Amsterdam-Noord en vormt de kern van de gelijknamige wijk. Rond het plein vind je diverse winkels, supermarkten (waaronder Albert Heijn), speciaalzaken, een apotheek en diverse eetgelegenheden. In de directe omgeving liggen meerdere basisscholen, sportfaciliteiten en kinderopvang.
Met de fiets sta je binnen 10 à 15 minuten op de NDSM-werf of in het Hamerkwartier, waar je kunt genieten van gezellige cafés en restaurants zoals Pllek, IJver, Loetje aan ’t IJ en Hangar. Ook het natuur- en recreatiegebied Het Twiske en het landelijke Waterland liggen vlakbij, ideaal voor ontspanning, fietsen of wandelen in het groen.
De ligging is uitstekend: met de auto ben je in enkele minuten op de A10, A8 of A5, en parkeren doe je op je eigen plek voor de deur. De Noord/Zuidlijn is op korte afstand bereikbaar, en ook diverse busverbindingen brengen je snel richting het centrum, oost of station Noord.
INDELING
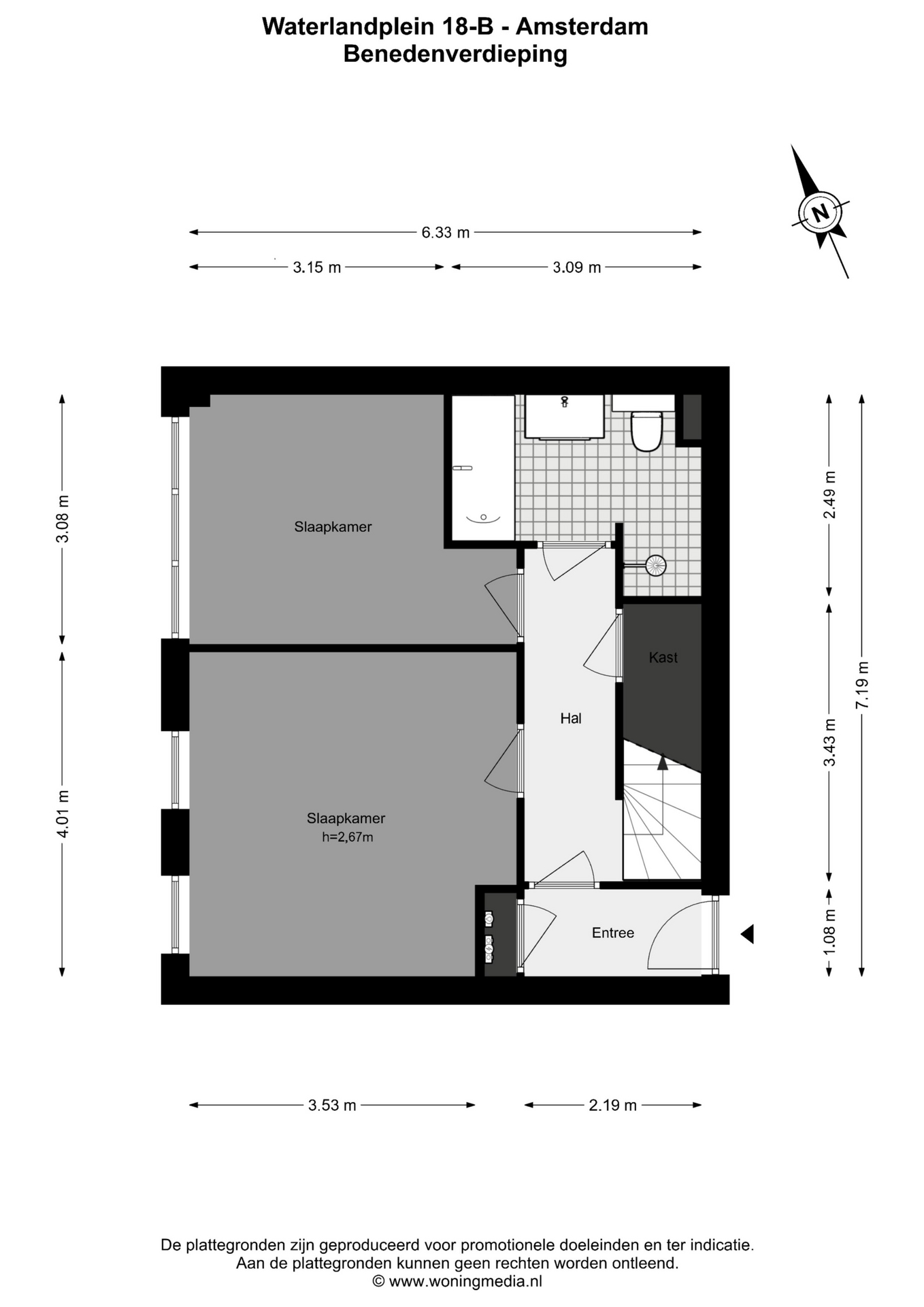
Via de gezamenlijke entree bereik je met de trap of lift de tweede verdieping. Hier bevindt zich een gemeenschappelijk plateau met een daktuin, en 11 daktuinwoningen en veel privacy.
Via het ruime terras van circa 25 m² kom je binnen in de hal. Aan de rechterzijde bevindt zich het toilet met fontein, recht vooruit de inpandige berging met de stadsverwarmingsunit en mechanische ventilatie, en links de deur naar de woonkamer.
De woonkamer is bijzonder licht dankzij de grote raampartijen en heeft een plafondhoogte van bijna 2,7 meter. Aan de rechterzijde bevindt zich de open keuken, voorzien van diverse inbouwapparatuur: een quooker (2023), een combi-oven (vernieuwd 2024), vaatwasser (vernieuwd 2025), kookplaat, afzuigkap, koelkast en vriezer. De keuken verkeert in nette staat.
Achterin de woonkamer bevindt zich een loggia/balkon van ca. 6,5 m², een fijne plek om buiten te zitten.
Via de trap in het midden van de woonkamer daal je af naar de slaapverdieping. Hier bevindt zich de hal met bergkast onder de trap, de vernieuwde badkamer (2022) met ligbad, inloop regendouche, wastafel en tweede toilet, en twee ruime slaapkamers aan de voorzijde van het appartement.
Deze verdieping heeft tevens een eigen entree, ideaal, want je stapt hier direct vanuit de garage binnen. De woning beschikt namelijk over een eigen inpandige parkeerplaats recht voor de deur.
Verder is er een eigen berging waar meerdere fietsen geplaatst kunnen worden.
Voor de indeling verwijzen we je tevens graag door naar de plattegronden, deze zijn te bekijken in 2D en 3D en zijn te vinden onder het kopje “plattegrond”.
DUURZAAMHEID
De woning is uitstekend geïsoleerd, voorzien van HR dubbel glas, energielabel A en vloerverwarming. Verwarming en warm water verlopen via stadsverwarming, waardoor de woning gasloos is.
VERENIGING VAN EIGENAREN (VvE)
VvE Daktuinwoningen Blok 3 (11 appartementsrechten), administratie door Ymere.
VvE Stallingsplaatsen Blok 3 (48 parkeerplaatsen), eveneens in beheer bij Ymere.
De maandelijkse servicekosten bedragen:
– Woning: € 296,33
– Parkeerplaats: € 80,24
– Totaal: € 376,57 per maand
De VvE is actief, beschikt over een meerjarenonderhoudsplan en een gezonde reserve.
ERFPACHT:
De woning is gelegen op grond van de gemeente Amsterdam, welke in erfpacht is uitgegeven. De jaarlijkse vergoeding is afgekocht tot en met 30 november 2060. Verkoper heeft daarnaast gekozen om over te stappen naar het nieuwe erfpachtstelsel (AB2016).
De jaarlijkse canon is na 2060 vastgeklikt op € 758,22 per jaar (voor woning én parkeerplaats) en wordt vanaf heden jaarlijks geïndexeerd.
BIJZONDERHEDEN:
– Bouwjaar 2012
– Woonoppervlakte (NEN2580) 111,4 m²
– Energielabel A
– Zonnig terras van ca. 25 m² + loggia/balkon van ca. 6,5 m²
– 2 ruime slaapkamers
– Badkamer vernieuwd in 2022
– Eigen parkeerplaats in afgesloten garage
– Eigen berging
– Erfpacht afgekocht t/m 30-11-2060, daarna vastgeklikt op € 758,22 per jaar (AB2016)
– Servicekosten totaal € 376,57 per maand
– Voor de op te nemen clausules verwijzen we je door naar het formulier “op te nemen clausules in de koopakte”
– Oplevering in overleg
Deze informatie is met de nodige zorgvuldigheid samengesteld. Wij aanvaarden echter geen enkele aansprakelijkheid voor enige onvolledigheid, onjuistheid of anderszins, dan wel de gevolgen daarvan.
Alle opgegeven maten en oppervlakten zijn indicatief. Koper heeft zijn eigen onderzoeksplicht naar alle zaken die voor hem van belang zijn. Met betrekking tot deze woning is ons kantoor de makelaar van verkoper. Wij adviseren je een NVM/MVA-makelaar in te schakelen die je met zijn deskundigheid zal bijstaan in het aankoopproces. Indien je geen professionele begeleiding wenst in te schakelen, acht je je volgens de wet deskundig genoeg om alle zaken die van belang zijn te kunnen overzien. De Algemene Consumentenvoorwaarden van de NVM zijn van toepassing.
==================================English=================================
Spacious and bright maisonette of 111 m² with private parking space, two bedrooms, renovated bathroom (2022) and a sunny terrace of approximately 25 m², located in the popular Waterlandplein area in Amsterdam-Noord.
The property has a ceiling height of almost 2.7 meters, features energy label A and is part of a well-functioning homeowners’ association (VvE). A wonderful place to live comfortably and sustainably, with shops, restaurants, and public transport within easy reach.
Curious? Call us to schedule a viewing, one of our real estate agents will be happy to show you around!
LOCATION:
Waterlandplein is the central meeting point of Amsterdam-Noord and forms the heart of the neighborhood of the same name. Around the square you will find various shops, supermarkets (including Albert Heijn), specialty stores, a pharmacy, and several eateries. In the immediate vicinity there are multiple primary schools, sports facilities, and childcare options.
By bike, you can reach the NDSM wharf or the Hamerkwartier in 10 to 15 minutes, where you can enjoy cozy cafés and restaurants such as Pllek, IJver, Loetje aan ’t IJ, and Hangar. The nature and recreation area Het Twiske and the rural Waterland are also nearby, perfect for relaxing, cycling, or walking in the green surroundings.
The location is excellent: by car you can reach the A10, A8, or A5 motorways within minutes, and parking is available in your own space right in front of the door. The North/South metro line is within easy reach, and several bus connections quickly take you to the city center, east, or Amsterdam Noord station.
LAYOUT:
Through the communal entrance you reach the second floor by stairs or elevator. Here you will find a shared courtyard with a roof garden, offering 11 garden apartments with lots of privacy.
Through the spacious terrace of approximately 25 m² you enter the hallway. On the right-hand side is the toilet with wash basin, straight ahead is the storage room with the district heating unit and mechanical ventilation system, and to the left is the door to the living room.
The living room is exceptionally bright due to the large windows and has a ceiling height of nearly 2.7 meters. On the right side is the open kitchen, equipped with various built-in appliances: a Quooker (2023), a combination oven (replaced in 2024), a dishwasher (replaced in 2025), a hob, extractor hood, refrigerator, and freezer. The kitchen is in good condition.
At the back of the living room is a loggia/balcony of approximately 6.5 m², a pleasant spot to sit outside.
Via the staircase in the center of the living room, you descend to the sleeping floor. Here you will find the hallway with storage cupboard under the stairs, the renovated bathroom (2022) with bathtub, walk-in rain shower, washbasin, and second toilet, and two spacious bedrooms at the front of the apartment.
This floor also has its own entrance, which is ideal, as you can enter directly from the garage. The property includes a private indoor parking space right in front of the door.
Additionally, there is a private storage room where multiple bicycles can be placed.
For the layout, please also refer to the floor plans, which can be viewed in 2D and 3D under the “floor plan” tab.
SUSTAINABILITY:
The property is excellently insulated, equipped with HR double glazing, energy label A, and underfloor heating. Heating and hot water are provided through district heating, making the property gas-free.
HOMEOWNERS’ ASSOCIATION (VvE)
VvE Daktuinwoningen Blok 3 (11 apartment rights), administration by Ymere.
VvE Stallingsplaatsen Blok 3 (48 parking spaces), also managed by Ymere.
The monthly service costs are as follows:
– Apartment: €296.33
– Parking space: €80.24
– Total: €376.57 per month
The VvE is active, has a long-term maintenance plan, and a healthy financial reserve.
GROUND LEASE:
The property is located on land owned by the municipality of Amsterdam, issued under a leasehold. The annual ground rent has been bought off until November 30, 2060. The seller has also opted to switch to the new perpetual leasehold system (AB2016).
The annual canon after 2060 is fixed at €758.22 per year (for the apartment and parking space combined) and is indexed annually from now on.
DETAILS:
– Year of construction 2012
– Living area (NEN2580) 111.4 m²
– Energy label A
– Sunny terrace of approx. 25 m² + loggia/balcony of approx. 6.5 m²
– 2 spacious bedrooms
– Bathroom renovated in 2022
– Private parking space in a secured garage
– Private storage room
– Ground lease bought off until 30-11-2060, then fixed at €758.22 per year (AB2016)
– Total service costs €376.57 per month
– For the applicable clauses, please refer to the document “clauses to be included in the purchase agreement”
– Transfer in consultation
This information has been compiled with the utmost care. However, we accept no liability for any incompleteness, inaccuracies, or otherwise, or the consequences thereof.
All stated dimensions and surface areas are indicative. The buyer has their own duty to investigate all matters of importance to them. Regarding this property, our office represents the seller. We advise you to engage an NVM/MVA estate agent, who will support you with their expertise throughout the purchasing process. If you choose not to engage professional guidance, you declare yourself, in accordance with the law, sufficiently expert to oversee all matters of importance. The NVM General Consumer Conditions apply.