**Please find the English translation below**
Sfeervolle hoekwoning in Tuindorp Nieuwendam – karakteristiek wonen op een bijzondere plek
In een van de prachtige straten van Tuindorp Nieuwendam staat deze charmante hoekwoning met zonnige voor- en achtertuin, authentieke details en verrassend veel leefruimte. De woning is onderdeel van de karakteristieke Boter en Brood buurt met monumentale status en biedt alles wat je van deze geliefde buurt mag verwachten: rust, ruimte en een warme sfeer. Hier woon je vrij, met een zonnige achtertuin, 3 slaapkamers, een extra dakkapel op zolder en is de erfpacht EEUWIG DUREND AFGEKOCHT: zorgeloos wonen dus!
Benieuwd geworden? Bel of mail ons gerust voor een bezichtiging!
OMGEVING
De Zwaagstraat ligt midden in het geliefde Tuindorp Nieuwendam, een wijk met brede straten, voortuintjes, buurt moestuin en een dorps karakter. En dat allemaal op nog geen tien minuten van de binnenstad. Om de hoek ligt het Purmerplein, met winkels voor de dagelijkse boodschappen. Voor ontspanning wandel je zo het Vliegenbos in, fiets je naar het pittoreske Landelijk Noord of vaar je vanaf het nabijgelegen Buiten-IJ zo de natuur in. Ook de NDSM-werf en het Noorderpark zijn binnen handbereik.
De pont en metro richting Amsterdam Centraal liggen op korte fietsafstand, net als goede verbindingen naar de ring A10. Kortom: een heerlijk rustige woonomgeving met alle voordelen van de stad binnen handbereik.
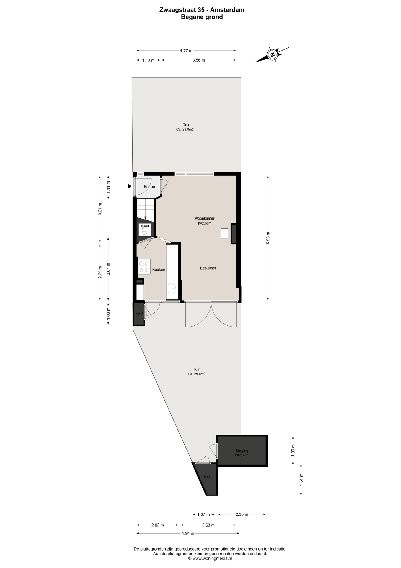
INDELING
Begane grond
Je komt binnen via de zonnige voortuin, waar je ’s ochtends heerlijk op het bankje van je koffie kunt genieten. Hier staan een appel en een stoofperenboom en kun je in de zomer genieten van druiven. In de hal is ruimte voor jassen en schoenen. De woonkamer is sfeervol, met originele elementen zoals de houtkachel, houten vloer en openslaande deuren naar de tuin. De charmante keuken ligt aan de achterzijde. Hier vind je een ingebouwde vaatwasser en een Smeg oven met vijfpits gaskookplaat. Daarbij vaste kasten met authentieke details, een losse koelkast en een was/droogcombinatie praktisch wegwerkt in de inbouwkast onder de trap.
Eerste verdieping
Op de eerste verdieping zijn twee lichte slaapkamers, beide met grote raampartijen en mooie vloerafwerking. De slaapkamer aan de achterzijde beschikt over een dakkapel en kijkt uit op de tuin. Aan de voorzijde een tweede ruime kamer met vaste kast. De royale badkamer is voorzien van inloopdouche, wastafel, ligbad en toilet.
Zolderverdieping
De zolderverdieping heeft een ruime derde slaapkamer met hoge nok. Deze is voorzien van een recent geplaatste dakkapel, waardoor de ruimte extra licht en praktisch is geworden. De ruimte is multifunctioneel te gebruiken als thuiswerkplek. De zichtbare kapconstructie geeft deze verdieping een karakteristieke uitstraling. Tevens is op deze verdieping veel opbergruimte door inbouwkasten en knieschotten. Hier bevindt zich ook de mooi weggewerkte nieuwe cv-installatie.
Buitenruimte
De achtertuin ligt heerlijk beschut, biedt volop privacy en is groen ingericht. Je kunt genieten van vers fruit; druiven, frambozen en vijgen.
Achterin de tuin bevindt zich een stenen berging en er is een achterom – praktisch voor de fiets of het klussen in de tuin.
Ook is er extra opbergruimte gecreëerd doormiddel van een tweetal tuinkasten.
ERFPACHT:
De erfpacht is eeuwigdurend afgekocht.
DUURZAAMHEID:
Deze woning wordt verwarmd door een gasgestookte CV ketel en slimme radiatoren door het Tado systeem (2023). Het dak is geïsoleerd en in 2016 is de volledige bovenetage voorzien van HR++ glas. Er liggen 3 zonnepanelen op het dak van de schuur.
Omdat het een monument betreft heeft deze woning geen energielabel.
BIJZONDERHEDEN
-Karakteristieke hoekwoning met monumentale status
-Woonoppervlakte ca. 65 m² (NEN2580), bruto vloeroppervlak 89,4 m²
-Voortuin en achtertuin, achterom en stenen berging
-Hoekwoning
-Drie slaapkamers, waarvan één op de zolderverdieping met nieuwe dakkapel
-Originele details behouden
-Erfpacht eeuwigdurend afgekocht
-Oplevering in overleg
Deze informatie is met de nodige zorgvuldigheid samengesteld. Wij aanvaarden echter geen enkele aansprakelijkheid voor enige onvolledigheid, onjuistheid of anderszins, dan wel de gevolgen daarvan.
Alle opgegeven maten en oppervlakten zijn indicatief. Koper heeft zijn eigen onderzoek plicht naar alle zaken, die voor hem van belang zijn. Met betrekking tot deze woning is ons kantoor de makelaar van verkoper. Wij adviseren u een NVM/MVA Makelaar in te schakelen, die u met zijn deskundigheid zal bijstaan in het aankoopproces. Indien u geen professionele begeleiding wenst in te schakelen, acht u zich volgens de wet deskundig genoeg om alle zaken, die van belang zijn, te kunnen overzien. De Algemene Consumentenvoorwaarden van de NVM zijn van toepassing.
==================================English=================================
Charming Corner House in Tuindorp Nieuwendam – Characterful Living in a Unique Location
On one of the beautiful streets of Tuindorp Nieuwendam, you’ll find this charming corner house with sunny front and back gardens, authentic details, and a surprising amount of living space. The property is part of the characteristic “Boter en Brood” neighborhood, which holds a protected monumental status, and it offers everything you would expect from this beloved area: peace, space, and a warm atmosphere. You’ll live freely here, with a sunny backyard, 3 bedrooms, an extra dormer on the attic floor, and the ground lease is bought off in perpetuity—worry-free living!
Curious? Feel free to call or email us to schedule a viewing!
SURROUNDINGS
Zwaagstraat is located in the heart of the popular Tuindorp Nieuwendam, a neighborhood known for its wide streets, front gardens, community vegetable patches, and village-like character—all just ten minutes from the city center. Around the corner is Purmerplein, with shops for your daily groceries. For relaxation, you can walk into the Vliegenbos, cycle to the picturesque rural north (Landelijk Noord), or sail into nature via the nearby Buiten-IJ. The NDSM wharf and Noorderpark are also within easy reach.
The ferry and metro to Amsterdam Central are a short bike ride away, as are excellent connections to the A10 ring road. In short: a wonderfully peaceful living environment with all the benefits of the city close at hand.
LAYOUT
Ground Floor
You enter through the sunny front garden, where you can enjoy your morning coffee on the bench. There’s an apple tree and a stewing pear tree, and in summer you can enjoy homegrown grapes. The hallway offers space for coats and shoes. The living room is atmospheric, with original features like the wood-burning stove, wooden floor, and French doors leading to the garden. The charming kitchen is at the rear and includes a built-in dishwasher, a Smeg oven with a five-burner gas stove, original built-in cabinets, a freestanding fridge, and a washer/dryer neatly tucked away under the stairs.
First Floor
On the first floor are two bright bedrooms, both with large windows and beautiful flooring. The bedroom at the rear features a dormer and overlooks the garden. At the front is a second spacious bedroom with a built-in closet. The generous bathroom has a walk-in shower, sink, bathtub, and toilet.
Attic Floor
The attic features a spacious third bedroom with a high ceiling and a recently installed dormer, which makes the room brighter and more functional. This space can also be used as a home office. The visible roof structure adds character, and there is plenty of storage space behind built-in closets and knee walls. The new central heating unit is neatly concealed on this floor.
OUTDOOR SPACE
The back garden is wonderfully sheltered, offers plenty of privacy, and is lushly landscaped. You can enjoy fresh fruit including grapes, raspberries, and figs.
At the back of the garden is a brick storage shed, and there’s a back entrance—ideal for bikes or garden projects. Two additional garden cabinets provide extra storage.
GROUND LEASE
The ground lease has been bought off in perpetuity.
SUSTAINABILITY
The home is heated with a gas-fired central heating boiler and smart radiators via the Tado system (2023). The roof is insulated, and in 2016 the entire upper floor was fitted with HR++ double glazing. There are 3 solar panels on the roof of the storage.
As the property holds a monumental status, it does not require an energy label.
PARTICULARS
-Characterful corner house with protected monumental status
-Living area approx. 65 m² (NEN2580), gross floor area 89.4 m²
-Front and back garden, back entrance, and brick storage shed
-Corner house
-Three bedrooms, including one in the attic with a new dormer
-Original details preserved
-Ground lease bought off in perpetuity
-Handover in consultation
This information has been compiled with due care. However, we accept no liability for any inaccuracies, incompleteness, or consequences thereof.
All measurements and surface areas are indicative. Buyers are expected to conduct their own due diligence into matters that are important to them. Regarding this property, our agency represents the seller. We advise you to hire an NVM/MVA broker to assist you with their expertise in the buying process. If you choose not to engage professional representation, the law considers you sufficiently knowledgeable to assess all relevant matters independently. The General Consumer Conditions of the NVM apply.