**Please find the English translation below**
Karaktervolle grote woning op mooie locatie met mogelijkheden voor uitbreiding.
Wonen in het inmiddels gewilde stadsdeel Bos en Lommer in dit bijzonder ruime en lichte dubbel bovenhuis van circa 125 M2.
Je hebt als koper de mogelijkheid om je eigen entree op de 2e verdieping te realiseren, waardoor het gehele trappenhuis van de 2e tot en met de 4e verdieping volledig van jou is.
De erfpacht is eeuwigdurend afgekocht.
Highlights:
– 5 slaapkamers
– Eigen trappenhuis vanaf de 2e verdieping tot en met de 4e verdieping
– 2 balkons (voor- en achterzijde)
– Onvoorwaardelijke VvE-toestemming voor dakterras of dakopbouw op 4e verdieping van circa 44 M2 (bruto oppervlakte)
– Mogelijkheid tot extra dakterras op 5e verdieping van circa 47 M2 (bruto oppervlakte)
– Flexibele indeling met veel mogelijkheden
Uitbreidingsmogelijkheden:
De VvE heeft onvoorwaardelijk toestemming verleend voor:
– Realisatie van een dakterras of volledige dakopbouw op de 4e verdieping van circa 44 M2 (bruto oppervlakte)
– Een extra dakterras op de 5e verdieping van circa 47 M2 (bruto oppervlakte)
Voor realisatie van het bovenstaande is een gemeentelijke vergunning vereist. Echter, in de directe omgeving zijn reeds vergelijkbare projecten vergund en gerealiseerd.
Dat kun je met eigen ogen zien tijdens je bezichtiging.
Locatie:
De Bos en Lommerweg ligt in een van de meest gewilde en bruisende wijken van Amsterdam-West. De buurt heeft zich de afgelopen jaren ontwikkeld tot een populaire woonlocatie met een perfecte balans tussen rust en de stedelijke dynamiek.
In de buurt:
– Uitgebreid aanbod aan winkels, supermarkten en horeca
– Diverse basisscholen en speeltuinen voor gezinnen
– Erasmuspark en Westerpark op loopafstand
– Rembrandtpark en Sloterplas in de nabije omgeving
Bereikbaarheid:
– Tram- en busverbindingen om de hoek
– Station Sloterdijk snel bereikbaar
– 10 minuten fietsen naar Jordaan en centrum
– Ringweg A10 vlakbij voor goede autobereikbaarheid
Indeling:
2e verdieping: Locatie voor de nieuwe eigen voordeur. Vanaf hier is het gehele trappenhuis tot en met de 4e verdieping jouw eigendom als koper.
3e verdieping:
– Hal begint al op de overloop met toegang tot alle vertrekken
– Keuken aan de voorzijde met inbouwapparatuur
– Naast de keuken bevindt zich een werkkamer met toegang tot balkon
– Ruime slaapkamer aan achterzijde met toegang tot balkon
– Complete badkamer met douche, wastafel en toilet
– Eetkamer aan de voorzijde met openslaande deuren naar balkon straatzijde
– Woonkamer aan achterzijde met toegang tot balkon
– Optie: eet- en woonkamer kunnen heel makkelijk worden samengevoegd tot één royale doorzon woonkamer
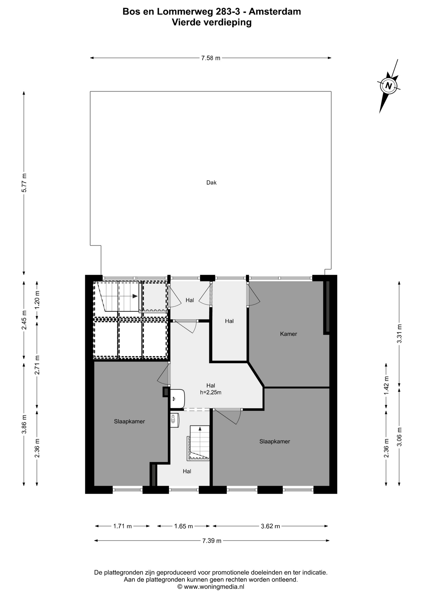
4e verdieping:
– Ruime hal via eigen interne trappenhuis
– Drie slaapkamers
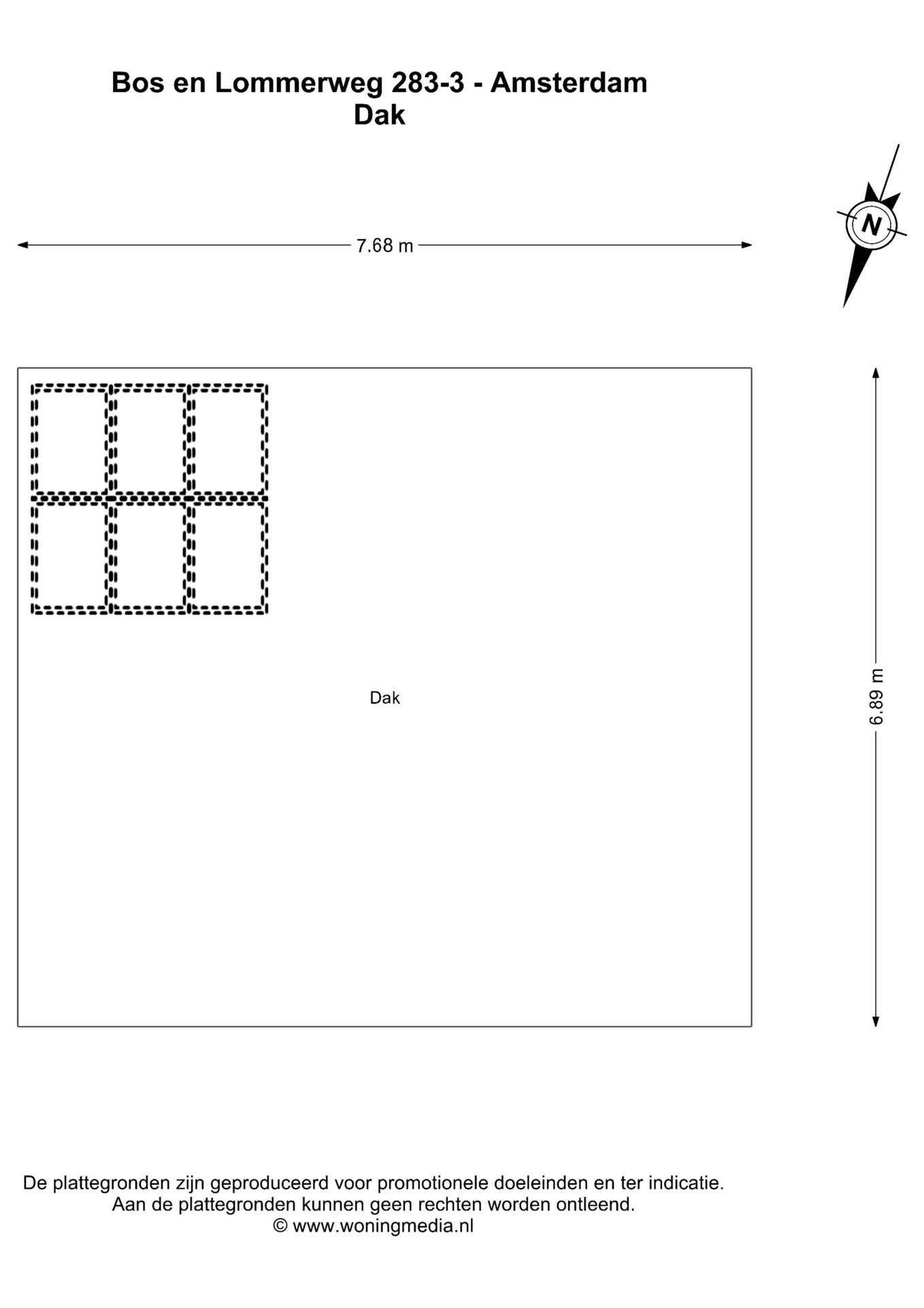
– Mogelijkheid tot dakterras of uitbouw op het platte dak
5e verdieping:
– Potentiële locatie voor extra dakterras
Duurzaamheid:
– Recent vernieuwde HR CV-ketel (2023)
– Dubbel glas aanwezig
– Energielabel D
– Verbeter mogelijkheden door dakisolatie en zonnepanelen (te combineren met dakterras/uitbouw)
Vereniging van Eigenaren:
– Actieve VvE met 4 appartementsrechten
– Professioneel beheer door Delair Vastgoedbeheer
– Maandelijkse bijdrage: € 176
– Meer jaren onderhoudsplan aanwezig
– Gezonde financiële positie
Samenvatting:
– Bouwjaar: 1940
– Woonoppervlakte: 124,3 M2 (NEN 2580 ingemeten)
– Erfpacht: Eeuwigdurend afgekocht
– Slaapkamers: 5
– Balkons: 2 (voor- en achterzijde)
– Uitbreidingsmogelijkheden: Onvoorwaardelijke toestemming VVE voor dakterrassen en dakopbouw/uitbouw
– Eigen trappenhuis: Vanaf 2e verdieping tot en met 4e verdieping
– Servicekosten: € 176 per maand
– Energielabel: D
– Oplevering: In overleg
– Projectnotaris: HMK Notarissen te Amsterdam
Deze informatie is met de nodige zorgvuldigheid samengesteld. Wij aanvaarden echter geen enkele aansprakelijkheid voor enige onvolledigheid, onjuistheid of anderszins, dan wel de gevolgen daarvan.
Alle opgegeven maten en oppervlakten zijn indicatief. Koper heeft zijn eigen onderzoeksplicht naar alle zaken, die voor hem van belang zijn. Met betrekking tot deze woning is ons kantoor de makelaar van verkoper. Wij adviseren u een NVM/MVA Makelaar in te schakelen, die u met zijn deskundigheid zal bijstaan in het aankoopproces. Indien u geen professionele begeleiding wenst in te schakelen, acht u zich volgens de wet deskundig genoeg om alle zaken, die van belang zijn, te kunnen overzien. De Algemene Consumentenvoorwaarden van de NVM zijn van toepassing.
=======English=======
Characterful spacious house in a beautiful location with expansion possibilities.
Live in the now highly sought-after district of Bos en Lommer in this exceptionally spacious and bright double upper house of approximately 125 m².
As a buyer, you have the option to create your own private entrance on the 2nd floor, making the entire staircase from the 2nd to the 4th floor exclusively yours.
The ground lease has been perpetually bought off.
Highlights:
– 5 bedrooms
– Private staircase from the 2nd to the 4th floor
– 2 balconies (front and rear)
– Unconditional HOA approval for a roof terrace or rooftop extension on the 4th floor of approx. 44 m² (gross floor area)
– Possibility for an additional roof terrace on the 5th floor of approx. 47 m² (gross floor area)
– Flexible layout with many possibilities
Expansion possibilities:
The HOA has unconditionally granted permission for:
– Construction of a roof terrace or full rooftop extension on the 4th floor of approx. 44 m² (gross floor area)
– An additional roof terrace on the 5th floor of approx. 47 m² (gross floor area)
A municipal permit is required to realize the above. However, in the immediate vicinity, similar projects have already been approved and completed.
You can see this with your own eyes during your viewing.
Location:
Bos en Lommerweg is located in one of the most desirable and vibrant neighborhoods of Amsterdam-West. Over the past years, the area has developed into a popular residential location, offering the perfect balance between tranquility and urban dynamics.
In the neighborhood:
– Wide range of shops, supermarkets, and restaurants
– Several primary schools and playgrounds for families
– Erasmuspark and Westerpark within walking distance
– Rembrandtpark and Sloterplas nearby
Accessibility:
– Tram and bus connections around the corner
– Sloterdijk Station easily accessible
– 10 minutes by bike to the Jordaan and city center
– A10 ring road nearby for easy car access
Layout:
2nd floor: Potential location for the new private entrance. From here, the entire staircase up to the 4th floor belongs to you as the buyer.
3rd floor:
– Hallway begins at the landing, providing access to all rooms
– Kitchen at the front with built-in appliances
– Study next to the kitchen with access to balcony
– Spacious bedroom at the rear with access to balcony
– Full bathroom with shower, sink, and toilet
– Dining room at the front with French doors to street-side balcony
– Living room at the rear with access to balcony
– Option: dining and living rooms can easily be combined into one spacious through-living area
4th floor:
– Spacious hall via private internal staircase
– Three bedrooms
– Option for roof terrace or rooftop extension on the flat roof
5th floor:
– Potential location for an extra roof terrace
Sustainability:
– Recently renewed high-efficiency central heating boiler (2023)
– Double glazing throughout
– Energy label D
– Improvement potential through roof insulation and solar panels (can be combined with roof terrace/extension)
Homeowners’ Association (HOA):
– Active HOA with 4 apartment rights
– Professionally managed by Delair Vastgoedbeheer
– Monthly contribution: €176
– Multi-year maintenance plan in place
– Healthy financial position
Summary:
– Year built: 1940
– Living area: 124.3 m² (measured in accordance with NEN 2580)
– Ground lease: perpetually bought off
– Bedrooms: 5
– Balconies: 2 (front and rear)
– Expansion possibilities: unconditional HOA approval for roof terraces and rooftop extension
– Private staircase: from 2nd to 4th floor
– Service costs: €176 per month
– Energy label: D
– Delivery: in consultation
– Project notary: HMK Notarissen, Amsterdam
This information has been compiled with the utmost care. However, we accept no liability for any inaccuracies, incompleteness, or otherwise, nor for the consequences thereof.
All stated sizes and surfaces are indicative. The buyer has their own duty to investigate all matters of importance to them. Regarding this property, our office represents the seller. We advise you to engage an NVM/MVA real estate agent, who can assist you with their expertise during the purchase process. If you choose not to engage professional guidance, you declare yourself legally competent enough to oversee all relevant matters. The General Consumer Conditions of the NVM apply.