**Please find the English translation below**
Op zoek naar een ruim, modern familie huis met ruime mogelijkheid voor thuiswerken of zelfs een kantoor/praktijk aan huis? Met plek voor twee auto’s op eigen terrein? Mogelijkheid tot gunstige afkoop van de erfpacht? En een energielabel A?
Kom dan eens kijken bij de Bosrankstraat 23. Deze woning is onderdeel van het eigentijdse en duurzame project “De Houtlofts” in Amsterdam-Noord waarbij er in 2015 maar liefst 4 woon-/werklofts zijn gebouwd.
Deze woning is volledig geisolleerd en extreem duurzaam. De diepe voortuin ligt op het zuiden, waar je eventueel ook je auto’s kunt te parkeren. In aanvulling daarop is er ook een groot en goed op de zon gelegen terras gerealiseerd op de tweede verdieping.
Nieuwsgierig geworden? Bel ons voor het maken van een afspraak, één van onze makelaars leidt je graag rond!
LOCATIE:
De Bosrankstraat is gelegen in Buiksloterham dat van industriegebied naar woonwerkgebied wordt getransformeerd.
Met slechts 5 minuten fietsen sta je op de NDSM-werf, vanaf hier kun je niet alleen de pont naar Centraal station of de Pontsteiger pakken, maar hier zijn ook het hele jaar door leuke festivals te vinden. Voor een heerlijk hapje eten kun je hier o.a. terecht bij Next, Pllek, IJver, de IJ-kantine, Loetje aan ’t IJ en Fred’s Kitchen. Het Hamerkwartier, waar de komende jaren duizenden woningen gebouwd gaan worden vind je op slechts 10 minuten fietsen. Ook hier kun je heerlijk een hapje eten bij o.a. De Goudfazant, Barracuda of Hangar. Natuurliefhebber? met 15 minuten fiets je naar natuur- en recreatiegebied Het Twiske of het landelijke gebied Waterland, waar je kunt genieten van de rust en de prachtige natuur. Kortom, in Noord combineer je het beste van twee werelden.
INDELING:
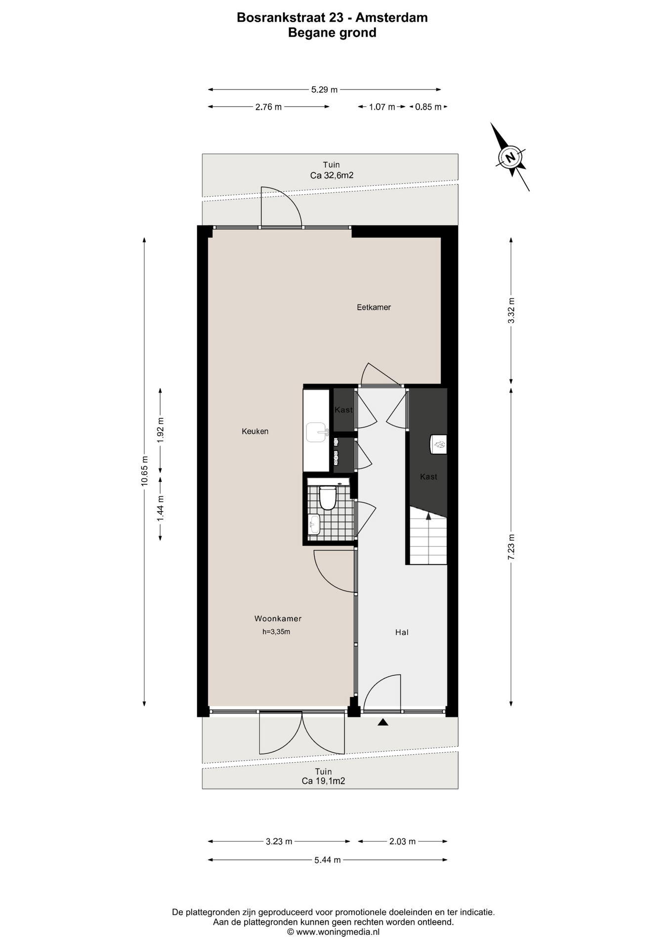
Begane grond:
Via de voortuin met eigen parkeerplaatsen kom je bij de woning aan. Hier de entree welke je toegang geeft tot de centrale hal met trappenhuis. Op deze verdieping allereerst een centrale hal met toilet, meterkast, bergruimte en stookruimte. Daarnaast een grote L vormige woon-/werkkamer met pantry en toegang tot de besloten achtertuin. Deze ruimte leent zich uitstekend als werkruimte of praktijk aan huis.
Eerste etage:
Via de luie trap kom je direct in de zeer lichte en riante woonkamer met open keuken en naastgelegen bijkeuken / berging. De totale oppervlakte van deze verdieping (circa 11 bij 6 meter), met daarbij de grote raampartijen aan weerszijden en de plafondhoogte van circa 280 cm maken dit echt een fijne plek om te zijn. Bijzonder veel daglicht, houten accenten afgewisseld met fraai stukwerk en als finishing touch een nette keuken met een kookschiereiland en alle denkbare inbouwapparatuur.
Tweede etage:
Via de open trap kom je op de tweede etage, met centrale overloop met berging en toilet. Daarnaast een zeer riant slaapvertrek, met niet alleen een eigen badkamer ensuite, maar ook een eigen dakterras op het Zuiden van meer dan 20m2.
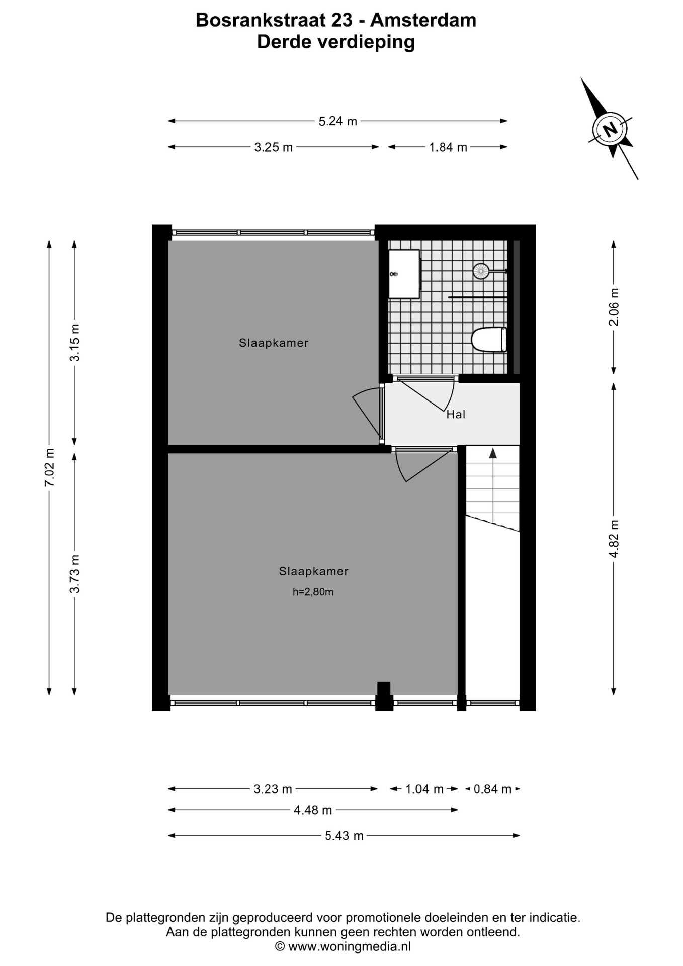
Derde etage: Via de trap kom je op de bovenste woonlaag, welke is onderverdeeld in twee goede slaapkamers en een separate badkamer met wastafel, douche en toilet.
Voor de indeling verwijzen we je tevens graag door naar de plattegronden, deze zijn te bekijken in 2D en in 3D en zijn te vinden onder het kopje “plattegrond”.
ERFPACHT:
De woning is gelegen op grond van de gemeente Amsterdam, welke in erfpacht is uitgegeven. Voor het gebruik van deze grond betaal je als eigenaar een vergoeding.
De jaarlijkse vergoeding bedraagt thans € 2.442,98 per jaar en geld als aftrekpost voor de inkomstenbelasting. Deze jaarlijkse vergoeding wordt jaarlijks geïndexeerd tot en met 31 mei 2064.
Verkoper heeft de aanvraag voor afkoop van de eeuwigdurende erfpacht in 2019 gedaan. Het is mogelijk om de erfpacht voor altijd af te kopen tegen een eenmalige vergoeding van € 88.772 (exclusief notariskosten) of per 1 juni 2064 vast te zetten. De jaarlijkse canon zal daarna € 1.607,29 per jaar gaan bedragen (plus indexering vanaf heden). Alle genoemde bedragen zijn indicatief en er kunnen geen rechten aan worden ontleend.
DUURZAAMHEID:
De woningen zijn volledig in hout gebouwd en extreem duurzaam en voorzien van hoogwaardig geïsoleerde aluminium kozijnen van Alcoa met HR++ glas. Voor de puien in de voorgevel (zuid) zijn verschuifbare aluminium louvredeuren aan gebracht als zonwering. De woning wordt verwarmd middels een warmtepomp, er is een warmte terugwin (wtw) systeem voor ventilatie en vloerverwarming. De woning is voorzien van zonnepanelen. Het energielabel is A.
BIJZONDERHEDEN:
• Bouwjaar 2015
• Woonoppervlakte (NEN2580) 192,50 m²
• Energielabel A
• De woning is extreem duurzaam
• Parkeren op eigen terrein
• Groot terras op de tweede verdieping van 21 m²
• Mogelijkheid voor thuis werken of kantoor/praktijk aan huis
• Erfpachtcanon € 2.442,98 per jaar, jaarlijks geïndexeerd tot en met 31 mei 2064
• Voor de op te nemen clausules verwijzen we je door naar het formulier “Clausules op te nemen in de koopakte”
• Oplevering in overleg
Deze informatie is met de nodige zorgvuldigheid samengesteld. Wij aanvaarden echter geen enkele aansprakelijkheid voor enige onvolledigheid, onjuistheid of anderszins, dan wel de gevolgen daarvan.
Alle opgegeven maten en oppervlakten zijn indicatief. Koper heeft zijn eigen onderzoeksplicht naar alle zaken, die voor hem van belang zijn. Met betrekking tot deze woning is ons kantoor de makelaar van verkoper. Wij adviseren u een NVM/MVA Makelaar in te schakelen, die u met zijn deskundigheid zal bijstaan in het aankoopproces. Indien u geen professionele begeleiding wenst in te schakelen, acht u zich volgens de wet deskundig genoeg om alle zaken, die van belang zijn, te kunnen overzien. De Algemene Consumentenvoorwaarden van de NVM zijn van toepassing.
====ENGLISH======
Looking for a spacious, modern family home with ample opportunities for working from home or even a home office/practice? With space for two cars on private property? The option for favorable ground lease redemption? And an energy label A?
Come and take a look at Bosrankstraat 23. This property is part of the contemporary and sustainable project “De Houtlofts” in Amsterdam-Noord, where in 2015, no less than 4 live/work lofts were built.
This house is fully insulated and extremely sustainable. The deep front garden faces south, where you can also park your cars if desired. Additionally, there is a large, sun-facing terrace on the second floor.
Curious? Call us to schedule a viewing; one of our real estate agents will gladly give you a tour!
LOCATION:
Bosrankstraat is located in Buiksloterham, which is being transformed from an industrial area into a residential and work district.
Within just 5 minutes of cycling, you’ll reach the NDSM wharf. From here, you can take the ferry to Central Station or the Pontsteiger, and enjoy year-round festivals. For a delicious meal, you can visit places like Next, Pllek, IJver, De IJ-Kantine, Loetje aan ’t IJ, and Fred’s Kitchen.
The Hamerkwartier, where thousands of new homes will be built in the coming years, is just a 10-minute bike ride away. Here, you can also enjoy meals at places like De Goudfazant, Barracuda, or Hangar.
Are you a nature enthusiast? Within 15 minutes, you can cycle to the nature and recreation area Het Twiske or the rural Waterland area, where you can enjoy peace and stunning natural beauty. In short, Noord combines the best of both worlds.
LAYOUT:
Ground floor:
Through the front garden with private parking spaces, you reach the entrance of the house, which provides access to the central hall and staircase. This floor features a central hall with a toilet, meter cupboard, storage space, and heating room. Additionally, there is a large L-shaped living/working room with a pantry and access to the private back garden. This space is ideal for use as a workspace or home practice.
First floor:
The gently sloping stairs lead directly to the very bright and spacious living room with an open kitchen and an adjacent pantry/storage room. The total area of this floor (approximately 11 by 6 meters), combined with the large windows on both sides and a ceiling height of approximately 280 cm, makes it a truly pleasant place to be. There is abundant natural light, wooden accents interspersed with smooth plasterwork, and, as the finishing touch, a sleek kitchen with an island and all imaginable built-in appliances.
Second floor:
The open staircase leads to the second floor, with a central landing featuring storage and a toilet. Additionally, there is a very spacious bedroom with not only an ensuite bathroom but also a private south-facing roof terrace of over 20 m².
Third floor:
The stairs lead to the top floor, which is divided into two good-sized bedrooms and a separate bathroom with a sink, shower, and toilet.
For the floor plan, please refer to the 2D and 3D layouts, which can be found under the “Floor Plan” section.
GROUND LEASE:
The property is situated on land owned by the municipality of Amsterdam, issued under a leasehold agreement. As the owner, you pay an annual fee for the use of this land.
The current annual fee is €2,442.98, which is tax-deductible for income tax purposes. This fee is indexed annually until May 31, 2064. Seller has applied for redemption of the perpetual ground lease in 2019. It is possible to buy off the ground lease forever for a one-time fee of € 88,772 (excluding notary fees) or to fix it as of June 1, 2064. The annual canon thereafter will be € 1,607.29 per year (plus indexation as of today). All amounts mentioned are indicative and no rights can be derived from them.
SUSTAINABILITY:
The homes are entirely constructed of wood, extremely sustainable, and feature high-quality insulated aluminum window frames from Alcoa with HR++ glass. Movable aluminum louver doors have been installed on the south-facing facade as sun protection. The house is heated via a heat pump, includes a heat recovery ventilation (HRV) system, and has underfloor heating. Solar panels are installed, and the property has an energy label A.
DETAILS:
• Year of construction: 2015
• Living area (NEN2580): 192.50 m²
• Energy label A
• The house is extremely sustainable
• Parking on private property
• Large terrace on the second floor: 21 m²
• Ideal for working from home or a home office/practice
• Ground lease fee: €2,442.98 per year, indexed annually until May 31, 2064
• For applicable clauses, please refer to the “Clauses to include in the purchase agreement” form
• Delivery in consultation
This information has been compiled with due care. However, we accept no liability for any incompleteness, inaccuracy or otherwise, or the consequences thereof.
All specified sizes and surfaces are indicative. The buyer has his own obligation to investigate all matters that are important to him. With regard to this property, our office is the seller’s agent. We advise you to engage an NVM/MVA real estate agent, who will assist you with his expertise in the purchasing process. If you do not wish to engage professional guidance, you consider yourself expert enough according to the law to be able to oversee all matters that are important. The General Consumer Terms and Conditions of the NVM apply.