**Please find the English translation below**
Licht en sfeervol jaren ‘30-appartement met karaktervolle details en balkon op het westen in de populaire wijk de Baarsjes. Dit charmante appartement van ca. 55 m² met twee slaapkamers ligt op de eerste verdieping en biedt een fraai uitzicht. Nieuwsgierig geworden? Bel ons voor een afspraak; een van onze makelaars leidt je graag rond!
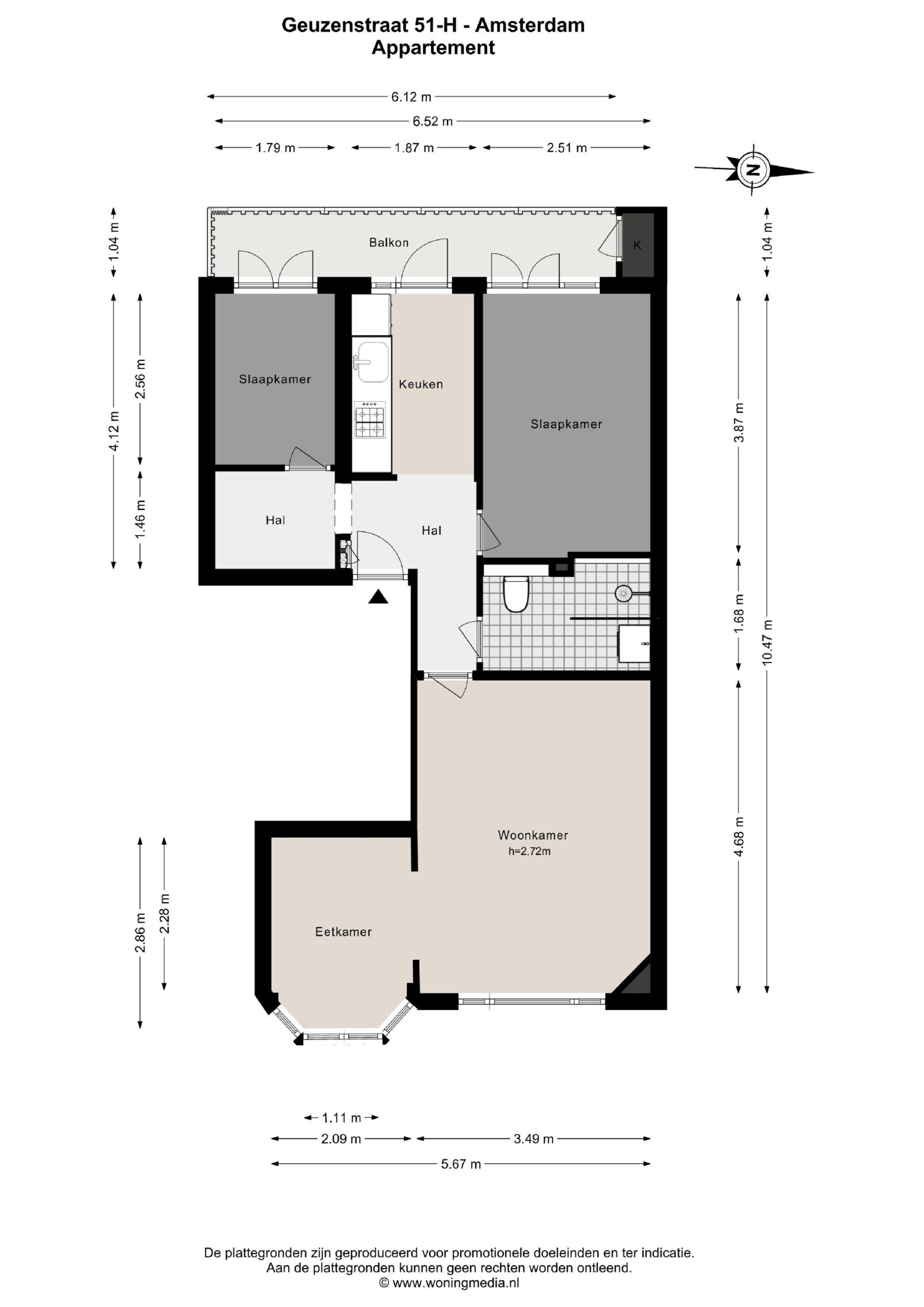
INDELING:
Stap binnen in de hal, die alle ruimtes van de woning met elkaar verbindt. De lichte woonkamer met eetkamer en charmante erker biedt een sfeervol uitzicht over een groen plein.
Aan de achterzijde van de woning bevindt zich de stijlvolle keuken, die is uitgerust met hoogwaardige Siemens-inbouwapparatuur en voldoende werk- en opbergruimte. Vanuit hier heb je direct toegang tot het zonnige balkon op het westen, waar je heerlijk kunt genieten van de middag- en avondzon. De grote opbergkast op het balkon biedt extra opslagruimte.
Grenzend aan de keuken liggen twee goed bemeten slaapkamers, die zich aan weerszijden van de woning bevinden. Beide kamers bieden een rustige en comfortabele plek om te slapen, werken of ontspannen.
Centraal in de woning bevindt zich de moderne badkamer, compleet met een douche, wastafel, toilet en elektrische vloerverwarming voor extra comfort.
Het appartement is gelegen in een rustige, groene woonwijk en is volledig instapklaar, met een prachtige eikenhouten visgraatvloer die zorgt voor een warme en luxe uitstraling.
Tot slot beschikt het appartement over een ruime externe berging, die gemakkelijk te bereiken is via de nette entree en het algemene trappenhuis – ideaal voor extra opslag. Tevens is er een ruime gemeenschappelijke binnentuin waar bewoners gebruik van kunnen maken.
Voor de indeling verwijzen we je tevens graag door naar de plattegronden, deze zijn te bekijken in 2D en in 3D en zijn te vinden onder het kopje “plattegrond”.
LOCATIE:
Het appartement bevindt zich in het appartementencomplex “De Geuzenhof II” een Gemeentelijk Monument en is fijn gelegen in het groen aan een plantsoen en om de hoek ligt de Kostverlorenvaart waar je een prachtig uitzicht hebt op een viersprong van meerdere kanalen. Een groene, kindvriendelijke straat met alle benodigde faciliteiten binnen handbereik. Voor de dagelijkse boodschappen kun je terecht op zowel de Jan van Galenstraat als de Jan Evertsenstraat. Ook beschikt de buurt in de directe omgeving over veel leuke vernieuwende horecaconcepten zoals Kauffman, Café Cook, Volare, Le French Café, Selma’s en verscheidene bakkers (Fort Negen, Westerbos) en traiteurs (FAAM, Ela). Ben je op zoek naar wat inspanning of ontspanning? Dan kun je terecht in het mooie Erasmuspark gelegen op een steenworp afstand van de woning. De gezellige Jordaan ligt op slechts 5 minuten fietsen. De woning heeft een uitstekende ligging ten opzichte van de uitvalswegen. De toegangsweg naar de ring A10 ligt op korte afstand en de openbaar vervoer verbindingen zijn zeer goed.
ERFPACHT:
De woning is gelegen op grond van de gemeente Amsterdam, welke in erfpacht is uitgegeven. Voor het gebruik van deze grond betaal je als eigenaar een vergoeding; deze is afgekocht tot 15 september 2058.
Verkoper heeft de aanvraag voor afkoop van de eeuwigdurende erfpacht in 2025 gedaan. Het is mogelijk om de erfpacht voor altijd af te kopen tegen een eenmalige vergoeding van € 58.658 (exclusief notariskosten), of per 16 september 2058 vast te zetten. De jaarlijkse canon zal daarna € 3.144,58 per jaar gaan bedragen (plus indexering vanaf heden). Alle genoemde bedragen zijn indicatief en er kunnen geen rechten aan worden ontleend.
DUURZAAMHEID:
Deze woning is voorzien van dubbel glas en een nieuwe CV ketel uit 2024.
VERENIGING VAN EIGENAREN:
Het complex is in 2001 gesplitst in 226 appartementsrechten. De VvE is actief, heeft een Meerjaren Onderhoudsplan en wordt professioneel beheerd door VVE beheerder HNVB. De servicekosten bedragen € 156,- per maand, waarin onder andere de opstalverzekering en een reservering voor onderhoud zijn opgenomen.
KENMERKEN:
• Bouwjaar: 1935
• Monumentaal pand
• Woonoppervlakte (NEN 2580): 55,30 m²
• Erfpacht: Afgekocht tot 15 september 2058, met optie om eeuwigdurend af te kopen
• Eigen berging in het souterrain van ca. 7 m²
• Balkon op het westen met fraai uitzicht over het groen
• Gemeenschappelijke binnentuin voor bewoners
• Uitzicht aan de voorzijde over een plantsoen
• Gezonde en actieve VvE, bestaande uit 226 appartementsrechten, professioneel beheerd door VvE-beheerder HNVB
• Servicekosten: € 156,- per maand
• Voor de op te nemen clausules verwijzen we je naar het formulier “Op te nemen clausules in de koopakte”
• Oplevering: In overleg
Deze informatie is met de nodige zorgvuldigheid samengesteld. Wij aanvaarden echter geen enkele aansprakelijkheid voor enige onvolledigheid, onjuistheid of anderszins, dan wel de gevolgen daarvan.
Alle opgegeven maten en oppervlakten zijn indicatief. Koper heeft zijn eigen onderzoeksplicht naar alle zaken, die voor hem van belang zijn. Met betrekking tot deze woning is ons kantoor de makelaar van verkoper. Wij adviseren u een NVM/MVA Makelaar in te schakelen, die u met zijn deskundigheid zal bijstaan in het aankoopproces. Indien u geen professionele begeleiding wenst in te schakelen, acht u zich volgens de wet deskundig genoeg om alle zaken, die van belang zijn, te kunnen overzien. De Algemene Consumentenvoorwaarden van de NVM zijn van toepassing.
=================English=================
Light and Atmospheric 1930s Apartment with Characterful Details and West-Facing Balcony in the Popular De Baarsjes Neighborhood
This charming apartment of approx. 55 m² with two bedrooms is located on the first floor and offers a beautiful view. Curious to see more? Call us for an appointment; one of our real estate agents will be happy to give you a tour!
LAYOUT:
Step into the hallway, which connects all rooms of the apartment. The bright living room with a dining area and charming bay window offers an inviting view over a green square.
At the rear of the apartment, you’ll find the stylish kitchen, equipped with high-quality Siemens built-in appliances and ample counter and storage space. From here, you have direct access to the sunny west-facing balcony, where you can enjoy the afternoon and evening sun. The large storage closet on the balcony provides extra space for your belongings.
Adjacent to the kitchen are two well-sized bedrooms, located on either side of the apartment. Both rooms offer a quiet and comfortable space for sleeping, working, or relaxing.
Centrally located in the apartment is the modern bathroom, complete with a shower, sink, toilet, and electric underfloor heating for added comfort.
The apartment is situated in a peaceful, green residential area and is completely move-in ready, featuring a beautiful oak herringbone floor that adds warmth and a luxurious feel.
Finally, the apartment includes a spacious external storage unit, easily accessible via the well-maintained entrance and common stairwell—ideal for additional storage. There is also a large communal courtyard garden available for residents.
For the exact layout, we invite you to check out the floor plans, available in both 2D and 3D under the “Floor Plan” section.
LOCATION:
The apartment is part of the “De Geuzenhof II” complex, a Municipal Monument, and is pleasantly located in a green area by a park. Just around the corner, the Kostverlorenvaart canal offers stunning views of a junction of multiple waterways. This is a green, child-friendly street with all necessary facilities within easy reach.
For daily groceries, you can visit both Jan van Galenstraat and Jan Evertsenstraat. The neighborhood also boasts many trendy dining options, such as Kauffman, Café Cook, Volare, Le French Café, Selma’s, as well as various bakeries (Fort Negen, Westerbos) and specialty food stores (FAAM, Ela).
Looking for exercise or relaxation? The beautiful Erasmus Park is just a stone’s throw away. The lively Jordaan district is only a 5-minute bike ride away. The apartment has an excellent location in relation to major roads. The A10 ring road is easily accessible, and public transport connections are very good.
LEASEHOLD:
The property is located on land leased from the Municipality of Amsterdam. As the owner, you pay a fee for this leasehold, which has been bought off until September 15, 2058.
The seller has applied for the option to buy out the leasehold in perpetuity in 2025. It is possible to buy off the leasehold permanently with a one-time payment of €58,658 (excluding notary fees) or to lock in the annual leasehold fee as of September 16, 2058. The annual ground rent will then amount to €3,144.58 per year (plus indexation from today onwards). All mentioned amounts are indicative, and no rights can be derived from them.
SUSTAINABILITY:
This apartment features double glazing and a new central heating system installed in 2024.
HOMEOWNERS’ ASSOCIATION (VvE):
The complex was divided into 226 apartment rights in 2001. The VvE is active, has a Multi-Year Maintenance Plan, and is professionally managed by VvE administrator HNVB. The service costs are €156 per month, which includes building insurance and a reserve for maintenance.
DETAILS:
• Year of construction: 1935
• Monumental building
• Living area (NEN 2580): 55.30 m²
• Leasehold: Paid off until September 15, 2058, with an option for perpetual buyout
• Private storage unit in the basement (approx. 7 m²)
• West-facing balcony with a beautiful green view
• Communal courtyard garden for residents
• Front-facing view of a park
• Well-managed and financially healthy VvE with 226 apartment rights, professionally managed by HNVB
• Service costs: €156 per month
• For applicable clauses, please refer to the document “Clauses to be included in the purchase agreement”
• Delivery: In consultation
This information has been compiled with due care. However, we accept no liability for any incompleteness, inaccuracy or otherwise, or the consequences thereof.
All specified sizes and surfaces are indicative. The buyer has his own obligation to investigate all matters that are important to him. With regard to this property, our office is the seller’s agent. We advise you to engage an NVM/MVA real estate agent, who will assist you with his expertise in the purchasing process. If you do not wish to engage professional guidance, you consider yourself expert enough according to the law to be able to oversee all matters that are important. The General Consumer Terms and Conditions of the NVM apply.