**Please find the English translation below**
Ontdek deze ruime en recent gerenoveerde maisonnette van circa 93m², gelegen aan een rustige, autoluwe straat. Slechts 6 minuten fietsen van de Noord/Zuidlijn (halte Noord) vind je dit moderne thuis aan het Ibrahim Moustafapad, genoemd naar de beroemde Egyptische worstelaar Ibrahim Moustafa. Met drie comfortabele slaapkamers, een zonnig dakterras op het zuidwesten en EEUWIGDUREND AFGEKOCHTE erfpacht biedt deze woning de ideale mix van ruimte, comfort en een top locatie. Nieuwsgierig geworden? Bel ons voor het maken van een afspraak, we leiden je graag rond!
LOCATIE:
Gelegen aan de rand van de rustige en groene woonwijk “Baron de Coubertin” in Amsterdam Noord. Deze locatie biedt een perfecte combinatie van rust en bereikbaarheid, met het winkelcentrum De Banne op loopafstand en een bushalte om de hoek. Belangrijke uitvalswegen zoals de A5, A7 en A10, evenals de Noord/Zuidlijn (halte station Noord), zijn binnen enkele minuten te bereiken. Voor de dagelijkse boodschappen kun je terecht bij het winkelcentrum Banne en Boven ’t IJ. En het Mosveld met leuke winkels en horeca heeft een aantal keer per week markt in de Van der Pekstraat. De pittoreske Buiksloterdijk, met de authentieke dijkhuisjes ligt om de hoek evenals het Noorderpark met zwembad. Met 10 minuten fietsen ben je in Landelijk Noord (Schellingwoude, Zunderdorp en natuurgebied ‘t Twiske), waar je heerlijk kunt genieten van de rust en de natuur. Met slechts 10 minuten fietsen sta je op de NDSM-werf, vanaf hier kun je niet alleen de pont naar Centraal station of de Pontsteiger pakken, maar hier zijn ook het hele jaar door leuke festivals te vinden. Op het populaire NDSM terrein tref je een diversiteit aan bars, restaurants en culturele voorzieningen.
INDELING:
Begane grond: Gemeenschappelijke entree met brievenbussen, bellentableau, trappenhuis en bergingen.
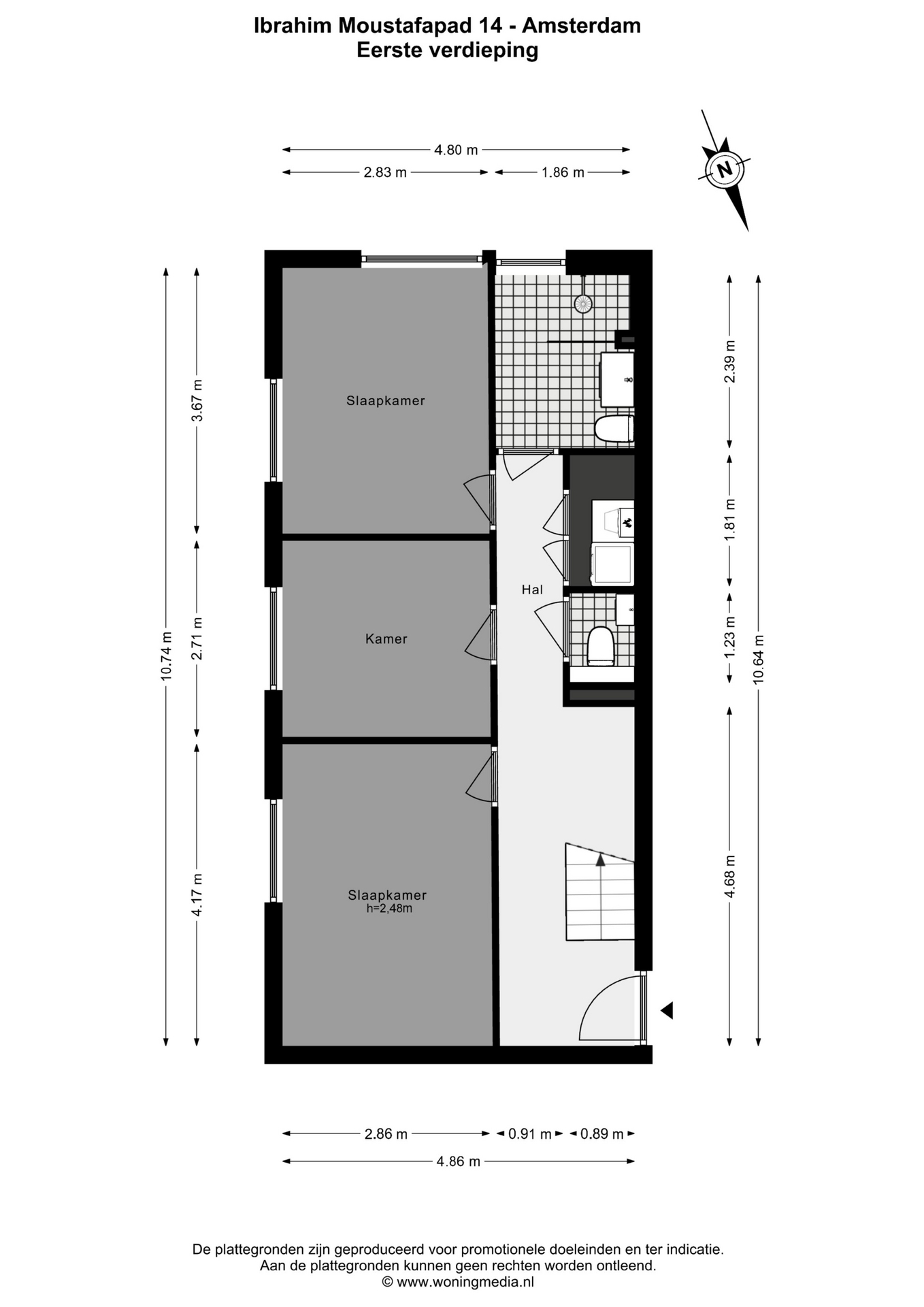
Eerste verdieping: Via de gemeenschappelijke entree lopen we naar de eerste verdieping. Hier komen we binnen in de hal, die alle vertrekken met elkaar verbindt. Aan de linkerkant bevinden zich drie slaapkamers in verschillende formaten. Alle kamers hebben rechte gevels, waardoor de ruimte optimaal wordt benut en zijn voorzien van een PVC (visgraat) vloer die naadloos in elkaar overloopt. Het zijn stuk voor stuk lichte kamers. Aan het einde van de hal ligt de badkamer, die in 2022 deels is gerenoveerd en is voorzien van een inloopdouche, een wastafel met meubel en een toilet (sanibroyeur). Aan de rechterkant van de hal bevindt zich een inpandige berging met de cv-ketel en aansluiting voor een wasmachine. Daarnaast is er een separaat (tweede) toilet met fonteintje.
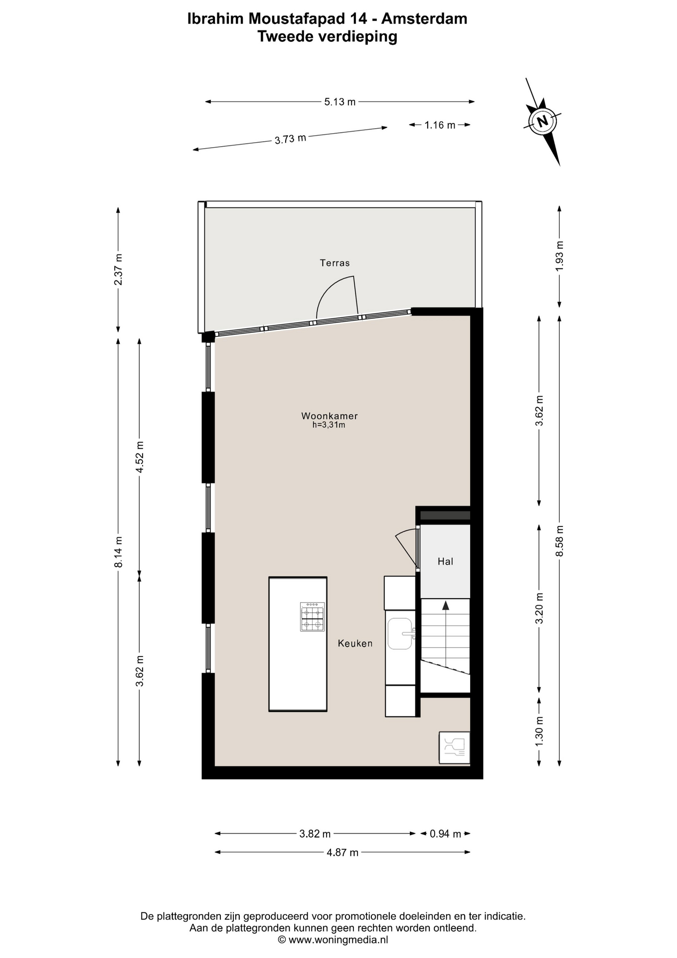
Tweede verdieping: We nemen de nieuwe eikenhouten trap naar de tweede verdieping en komen uit in de ruime en lichte woonkamer. Dankzij de ramen in de zijgevel en de grote glazen pui met deur naar het terras valt er veel natuurlijk daglicht naar binnen. Het zonnige dakterras is gelegen op het zuidwesten, waardoor je optimaal van de zon kunt genieten. Door de ligging op de tweede verdieping geniet je bovendien van veel privacy. Vanuit de woonkamer lopen we door naar de open woonkeuken uit 2022 met kookeiland. De keuken is uitgerust met diverse inbouwapparaten, waaronder een oven, magnetron vaatwasser, kokend-waterkraan en Bora kookplaat met ingebouwde afzuiging. Tot slot is de gehele verdieping voorzien van vloerverwarming en een PVC-vloer.
Voor de indeling verwijzen we je tevens graag door naar de plattegronden, deze zijn te bekijken in 2D en in 3D en zijn te vinden onder het kopje “plattegrond”.
ERFPACHT:
De woning is gelegen op grond van de gemeente Amsterdam, welke in erfpacht is uitgegeven. De erfpacht is EEUWIGDUREND AFGEKOCHT.
DUURZAAMHEID:
Deze woning is voorzien van dubbel glas en een CV combi-ketel uit 2016. Het energielabel is B.
VERENIGING VAN EIGENAREN:
Het appartement maakt onderdeel uit van een gezonde en actieve VvE. Maandelijks betaal je als eigenaar van dit appartement € 144,91 aan servicekosten. In deze servicekosten zijn onder andere de opstalverzekering en de reservering voor toekomstig onderhoud opgenomen. De VvE wordt professioneel beheerd.
BIJZONDERHEDEN:
• Bouwjaar 1995
• Energielabel B
• Woonoppervlakte (NEN2580) 93,10m²
• Erfpacht eeuwigdurend afgekocht
• Slechts 6 minuten fietsen van de Noord/Zuidlijn (halte Noord)
• Balkon op het zuidwesten
• Gezonde VvE bestaande uit 31 appartementsrechten, professioneel beheerd door VVE Management
• Servicekosten € 144,91 per maand
• Voor de op te nemen clausules verwijzen we je door naar het formulier “op te nemen clausules in de koopakte”
• Oplevering in overleg
Deze informatie is met de nodige zorgvuldigheid samengesteld. Wij aanvaarden echter geen enkele aansprakelijkheid voor enige onvolledigheid, onjuistheid of anderszins, dan wel de gevolgen daarvan.
Alle opgegeven maten en oppervlakten zijn indicatief. Koper heeft zijn eigen onderzoeksplicht naar alle zaken, die voor hem van belang zijn. Met betrekking tot deze woning is ons kantoor de makelaar van verkoper. Wij adviseren u een NVM/MVA Makelaar in te schakelen, die u met zijn deskundigheid zal bijstaan in het aankoopproces. Indien u geen professionele begeleiding wenst in te schakelen, acht u zich volgens de wet deskundig genoeg om alle zaken, die van belang zijn, te kunnen overzien. De Algemene Consumentenvoorwaarden van de NVM zijn van toepassing.
==================================English=================================
Discover this spacious and recently renovated maisonette of approximately 93m², located on a quiet, car-free street. Just 6 minutes by bike from the North/South metro line (North station), you will find this modern home on Ibrahim Moustafapad, named after the famous Egyptian wrestler Ibrahim Moustafa. With three comfortable bedrooms, a sunny southwest-facing roof terrace, and a LIFETIME PRE-PAID leasehold, this property offers the perfect mix of space, comfort, and a prime location. Curious? Call us to make an appointment — we would be happy to give you a tour!
LOCATION:
Located on the edge of the quiet and green residential area “Baron de Coubertin” in Amsterdam Noord. This location offers the perfect combination of tranquility and accessibility, with the shopping center De Banne within walking distance and a bus stop around the corner. Major roads such as the A5, A7, and A10, as well as the North/South metro line (North station), are only minutes away. For daily groceries, you can visit the shopping centers Banne and Boven ’t IJ. The Mosveld area, with its charming shops and eateries, hosts a weekly market on Van der Pekstraat. The picturesque Buiksloterdijk, with its authentic dike houses, is around the corner, as is Noorderpark with a swimming pool. In just 10 minutes by bike, you can reach Landelijk Noord (Schellingwoude, Zunderdorp, and nature reserve ‘t Twiske), where you can enjoy the peace and nature. The NDSM wharf, just 10 minutes by bike, is home to a variety of bars, restaurants, and cultural venues. From there, you can also take a ferry to Central Station or Pontsteiger. There are also exciting festivals throughout the year on the NDSM site.
LAYOUT:
Ground floor: Shared entrance with mailboxes, intercom system, staircase, and storage units.
First floor: From the shared entrance, we proceed to the first floor. Here, we enter the hallway, which connects all the rooms. To the left, there are three bedrooms of varying sizes. All rooms have straight walls, maximizing the space, and are equipped with a seamless PVC (herringbone) floor. These are all bright rooms. At the end of the hallway is the bathroom, which was partially renovated in 2022 and is equipped with a walk-in shower, a sink with vanity unit, and a toilet (sanibroyeur). On the right side of the hallway, there is an internal storage room with the central heating boiler and washing machine connections. There is also a separate (second) toilet with a sink.
Second floor: We take the new oak staircase to the second floor and enter the spacious and bright living room. Thanks to the windows in the sidewall and the large glass facade with a door to the terrace, plenty of natural daylight enters. The sunny roof terrace is located to the southwest, so you can enjoy the sun to the fullest. Due to the location on the second floor, you also enjoy a lot of privacy. From the living room, we move through to the open kitchen (renovated in 2022) with a cooking island. The kitchen is equipped with various built-in appliances, including an oven, microwave, dishwasher, boiling-water tap, and Bora cooktop with built-in ventilation. Finally, the entire floor is equipped with underfloor heating and a PVC floor.
For the layout, we also refer you to the floor plans, which are available in 2D and 3D and can be found under the “floor plan” section.
LEASEHOLD:
The property is located on land owned by the municipality of Amsterdam, which is issued as leasehold. The leasehold has been LIFETIME PRE-PAID.
SUSTAINABILITY:
This property is equipped with double glazing and a combi boiler from 2016. The energy label is B.
OWNERS ASSOCIATION:
The apartment is part of a healthy and active Owners Association (VvE). As the owner of this apartment, you pay €144.91 in monthly service charges. These service charges cover the building insurance and reserves for future maintenance. The VvE is professionally managed.
PARTICULARS:
• Built in 1995
• Energy label B
• Living area (NEN2580) 93.10m²
• Leasehold prepaid for an indefinite period
• Just 6 minutes by bike from the North/South metro line (North station)
• Southwest-facing balcony
• Healthy VvE consisting of 31 apartment rights, professionally managed by VVE Management
• Service charges €144.91 per month
• For the clauses to be included, please refer to the “clauses to be included in the purchase agreement” form
• Delivery in consultation
This information has been compiled with due care. However, we accept no liability for any incompleteness, inaccuracy or otherwise, or the consequences thereof.
All specified sizes and surfaces are indicative. The buyer has his own obligation to investigate all matters that are important to him. With regard to this property, our office is the seller’s agent. We advise you to engage an NVM/MVA real estate agent, who will assist you with his expertise in the purchasing process. If you do not wish to engage professional guidance, you consider yourself expert enough according to the law to be able to oversee all matters that are important. The General Consumer Terms and Conditions of the NVM apply.