**Please find the English translation below**
Appartement op de zesde verdieping van een modern en goed onderhouden complex uit 2000, met een woonoppervlakte van circa 95 m², drie slaapkamers, een zonnig balkon op het zuiden en een eigen parkeerplaats. Dankzij de ligging aan het water geniet de woning van veel lichtinval en een ruimtelijk gevoel, terwijl het balkon een vrij uitzicht biedt en een fijne plek is om te ontspannen.
De woning is gelegen op erfpachtgrond die eeuwigdurend is afgekocht. Dit appartement is zeer geschikt voor wie comfortabel wil wonen in Amsterdam West met alle voorzieningen natuur, winkels en horeca binnen handbereik.
Nieuwsgierig geworden? Bel ons voor het maken van een afspraak, één van onze makelaars leidt je graag rond!
LOCATIE:
De woning is prachtig gelegen met een vrij uitzicht over het water, wat zorgt voor een gevoel van rust en ruimte midden in de stad, en grenst aan het Gerbrandypark en de Burgemeester van Tienhovengracht.
Het appartement ligt in Amsterdam-West, een levendig en goed ontsloten stadsdeel met een ruim aanbod aan voorzieningen. In de directe omgeving zijn er diverse mogelijkheden om te ontspannen en te recreëren. Zo biedt de Sloterplas met het Sloterpark een veelzijdige omgeving met onder andere een zwembad, jachthaven, natuurspeeltuin en zelfs een stadsstrand.
In de nabije omgeving ligt winkelcentrum Plein ’40-’45, waar je een breed aanbod aan winkels en maar liefst vier grote supermarkten vindt. Ook zijn er verschillende kinderdagverblijven, scholen en horecagelegenheden in de buurt. Daarnaast biedt de omgeving diverse culturele voorzieningen, zoals het Street Art Museum Amsterdam en Cinema de Vught.
De bereikbaarheid is uitstekend. In de directe omgeving vind je diverse tram en busverbindingen waarmee je snel richting onder andere het centrum van Amsterdam Schiphol en omliggende stadsdelen reist. Ook station Amsterdam Centraal en station Sloterdijk zijn eenvoudig bereikbaar. Met de auto rijd je binnen enkele minuten de ring A10 op, waardoor je goede verbindingen hebt richting de rest van de stad en daarbuiten. Daarnaast pak je gemakkelijk de fiets en bereik je snel verschillende voorzieningen, parken en het centrum van Amsterdam.
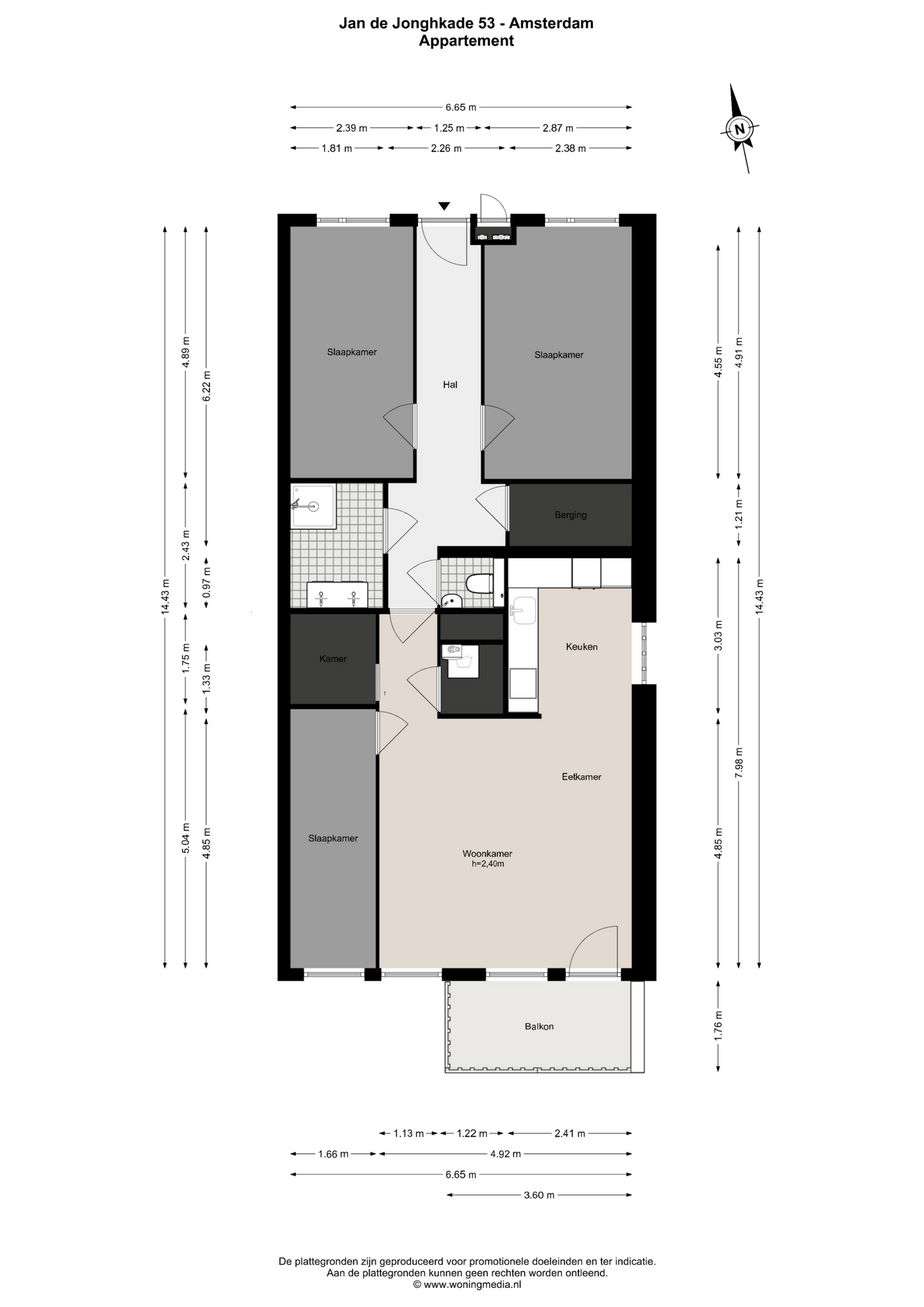
INDELING:
Zesde verdieping:
Het appartement is bereikbaar via de gemeenschappelijke entree, waar je zowel de lift als de trap kunt nemen naar de zesde verdieping. Eenmaal binnen kom je in een lichte en ruimtelijke woning. De hal vormt het centrale punt en geeft toegang tot alle vertrekken, wat zorgt voor een logische en prettige indeling.
Aan de voorzijde ligt de royale leefruimte, bestaande uit een woonkamer die overgaat in de eetkamer en een extra kamer die flexibel inzetbaar is als werk- of slaapkamer. Dankzij de grote raampartijen is er veel natuurlijke lichtinval en voelt de ruimte open en uitnodigend aan. Vanuit de woonkamer stap je direct het balkon op, waar je in alle rust kunt genieten van het vrije uitzicht over het water en van de zon, van ’s ochtends tot ’s avonds.
De open keuken is praktisch ingericht met voldoende kastruimte en een prettig werkblad. Uiteraard is deze voorzien van diverse inbouwapparatuur, waaronder een vaatwasser, inductiekookplaat met afzuigkap, oven, magnetron, koelkast en vriezer.
Aan de rustige achterzijde bevinden zich twee ruime slaapkamers. Beide kamers bieden ruimte voor een tweepersoonsbed en hebben grote ramen, wat zorgt voor een rustige en comfortabele sfeer. Ze zijn uitstekend te gebruiken als hoofdslaapkamer en bijvoorbeeld een logeer- of werkkamer. Door de ligging aan de noordzijde blijven ze bovendien aangenaam koel.
In het midden van de woning bevinden zich verder een separaat toilet, een ruime interne berging en een aparte wasruimte, wat zorgt voor extra gemak en veel praktische opbergmogelijkheden.
Daarnaast beschikt het appartement over een externe berging van circa 6 m² op de eerste verdieping. Ook is er een vaste inpandige parkeerplaats in de gezamenlijke parkeergarage aanwezig – een groot pluspunt in deze omgeving.
Het complex beschikt over twee liften, een gezamenlijke parkeergarage met een gemeenschappelijke laadvoorziening en maakt deel uit van een professioneel beheerde VvE.
Voor de indeling verwijzen we je tevens graag door naar de plattegronden, deze zijn te bekijken in 2D en in 3D en zijn te vinden onder het kopje “plattegrond”.
DUURZAAMHEID:
De woning is volledig elektrisch en zeer energiezuinig. De verwarming vindt plaats via infraroodpanelen, die eenvoudig op afstand met je telefoon te regelen zijn. Daarnaast beschikt de woning over energielabel B. Het complex is in 2018 voorzien van zonnepanelen die worden ingezet voor de gemeenschappelijke voorzieningen.
VERENIGING VAN EIGENAREN (VvE):
De woning maakt deel uit van een professioneel en actief beheerde VvE, uitgevoerd door Newomij. De VvE bestaat uit 73 appartementsrechten. De servicekosten voor de woning bedragen € 182,71,- per maand. De servicekosten voor de parkeerplaats bedragen € 25,67,- per maand
ERFPACHT:
Voor zowel de woning als de parkeerplaats is de erfpacht eeuwigdurend afgekocht.
BIJZONDERHEDEN:
-Woonoppervlakte (NEN2580) 95 m²
-Bouwjaar 2000
-Wonen aan het water
-Balkon op het zuiden
-Servicekosten incl parkeerplaats € 208,38,- per maand
-Energielabel B
-Volledig elektrische woning
-Inclusief parkeerplaats
-Erfpacht eeuwigdurend afgekocht (woning + parkeerplaats)
-Gezonde VvE bestaande uit 73 appartementsrechten, professioneel beheerd door Newomij
-Voor de op te nemen clausules verwijzen we je door naar het formulier “op te nemen clausules in de koopakte”
-Oplevering in overleg
Deze informatie is met de nodige zorgvuldigheid samengesteld. Wij aanvaarden echter geen enkele aansprakelijkheid voor enige onvolledigheid, onjuistheid of anderszins, dan wel de gevolgen daarvan.
Alle opgegeven maten en oppervlakten zijn indicatief. Koper heeft zijn eigen onderzoeksplicht naar alle zaken, die voor hem van belang zijn. Met betrekking tot deze woning is ons kantoor de makelaar van verkoper. Wij adviseren u een NVM/MVA Makelaar in te schakelen, die u met zijn deskundigheid zal bijstaan in het aankoopproces. Indien u geen professionele begeleiding wenst in te schakelen, acht u zich volgens de wet deskundig genoeg om alle zaken, die van belang zijn, te kunnen overzien. De Algemene Consumentenvoorwaarden van de NVM zijn van toepassing.
=====English=====
Apartment on the sixth floor of a modern and well-maintained complex (built in 2000), offering approximately 95 m² of living space, three bedrooms, a sunny south-facing balcony, and a private parking space.
Thanks to its waterfront location, the apartment benefits from abundant natural light and a spacious feel, while the balcony offers unobstructed views and a wonderful place to relax.
The property is situated on leasehold land that has been bought off in perpetuity. This apartment is ideal for those seeking comfortable living in Amsterdam West, with nature, shops, and restaurants all within easy reach.
Curious? Feel free to contact us to schedule a viewing—one of our agents will be happy to show you around!
LOCATION:
The apartment enjoys a beautiful location with unobstructed views over the water, creating a sense of peace and space in the heart of the city. It is adjacent to the Gerbrandypark and the Burgemeester van Tienhovengracht.
Located in Amsterdam-West, a lively and well-connected district with a wide range of amenities. The immediate surroundings offer plenty of opportunities for relaxation and recreation. The nearby Sloterplas and Sloterpark provide a versatile environment, including a swimming pool, marina, nature playground, and even an urban beach.
Shopping center Plein ’40-’45 is close by, offering a wide variety of shops and no fewer than four large supermarkets. There are also several daycare centers, schools, and restaurants in the area. Cultural amenities include the Street Art Museum Amsterdam and Cinema de Vught.
Accessibility is excellent. Various tram and bus connections nearby provide quick access to Amsterdam city center, Schiphol Airport, and surrounding districts. Amsterdam Central Station and Sloterdijk Station are also easily reachable. By car, you can reach the A10 ring road within minutes, ensuring excellent connections to the rest of the city and beyond. Cycling is also convenient, with easy access to amenities, parks, and the city center.
LAYOUT:
Sixth floor:
The apartment is accessible via the communal entrance, with both elevator and staircase access to the sixth floor. Upon entering, you step into a bright and spacious home. The hallway serves as the central hub, providing access to all rooms and ensuring a logical and pleasant layout.
At the front, you’ll find the generous living area, consisting of a living room flowing into the dining area and an additional room that can be used flexibly as a study or bedroom. Large windows provide plenty of natural light, creating an open and inviting atmosphere. From the living room, you have direct access to the balcony, where you can enjoy the sun and unobstructed water views from morning to evening.
The open kitchen is practically designed with ample storage and workspace, and is equipped with various built-in appliances, including a dishwasher, induction hob with extractor hood, oven, microwave, refrigerator, and freezer.
At the quiet rear side of the apartment are two spacious bedrooms. Both rooms can accommodate a double bed and feature large windows, creating a calm and comfortable atmosphere. They are ideal as a master bedroom and a guest or home office space. Their north-facing position also keeps them pleasantly cool.
In the center of the apartment, you will find a separate toilet, a spacious internal storage room, and a dedicated laundry room, providing additional convenience and storage space.
The apartment also includes an external storage room of approximately 6 m² on the first floor, as well as a fixed indoor parking space in the communal garage—an important asset in this area.
The complex features two elevators, a shared parking garage with communal charging facilities, and is part of a professionally managed homeowners’ association.
For a detailed layout, we kindly refer you to the floor plans, available in both 2D and 3D under the “floor plan” section.
SUSTAINABILITY:
The apartment is fully electric and highly energy-efficient. Heating is provided via infrared panels, which can be easily controlled remotely via your phone. The property has energy label B. The complex was fitted with solar panels in 2018, used for communal facilities.
HOMEOWNERS’ ASSOCIATION (VvE):
The property is part of a professionally managed and active homeowners’ association, administered by Newomij. The association consists of 73 apartment rights. Monthly service charges are €182.71 for the apartment and €25.67 for the parking space.
LEASEHOLD:
The leasehold for both the apartment and the parking space has been bought off in perpetuity.
DETAILS:
-Living area (NEN2580): 95 m²
-Built in 2000
-Waterfront living
-South-facing balcony
-Service costs including parking: €208.38 per month
-Energy label B
-Fully electric home
-Includes private parking space
-Leasehold bought off in perpetuity (apartment + parking)
-Healthy and professionally managed HOA (73 units, managed by Newomij)
-For applicable clauses, please refer to the document “clauses to be included in the purchase agreement”
-Transfer in consultation
DISCLAIMER:
This information has been compiled with due care. However, no liability is accepted for any inaccuracies, omissions, or consequences thereof. All stated measurements and surfaces are indicative. Buyers have their own duty to investigate all matters of importance. Our office represents the seller in this transaction. We advise engaging an NVM/MVA real estate agent to assist you in the purchasing process. If you choose not to seek professional guidance, you declare yourself sufficiently knowledgeable to oversee all relevant matters. The general consumer terms and conditions of the NVM apply.