**Please find the English translation below**
UNIEK PENTHOUSE MET UITZICHT OVER HET WATER GELEGEN OP EEN PRACHTIGE LOCATIE!
Dit sfeervolle appartement van 64 m² op EIGEN GROND is gelegen op een prachtige locatie in de geliefde Plantagebuurt, met vrij uitzicht over het water en het Tropenmuseum. Het pand ademt karakter, met hoge plafonds, veel lichtinval en een rustige doch centrale ligging.
Nieuwsgierig geworden? Bel ons voor het maken van een afspraak, één van onze makelaars leidt je graag rond!
INDELING:
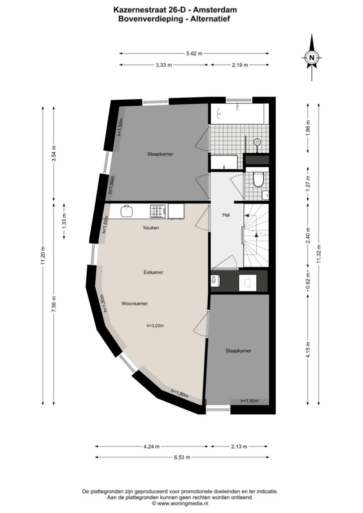
Middels de gemeenschappelijke entree en het nette trappenhuis bereik je het appartement op de derde verdieping. Via de interne trap kom je op de vierde verdieping.
De sfeervolle woon-/eetkamer met open keuken bevindt zich aan de voorzijde. Grote raampartijen zorgen voor veel natuurlijk licht en een prachtig uitzicht over het water. Eventueel is hier eenvoudig een tweede slaapkamer te realiseren.
De open keuken is strak wit afgewerkt en voorzien van diverse inbouwapparatuur, waaronder een 4-pits gasfornuis met afzuigkap, vaatwasser, oven, koelkast en vriezer. In het midden van het appartement bevindt zich een separate wc.
Via de hal bereik je de slaapkamer, welke is voorzien van een badkamer en-suite. De moderne badkamer beschikt over een inloopdouche, een ligbad en een wastafel met meubel. Via de hal bereik je tevens het dak via een vaste trap.
Voor de INDELING verwijzen we je tevens graag door naar de plattegronden, deze zijn te bekijken in 2D en in 3D en zijn te vinden onder het kopje ‘plattegrond’.
OMGEVING:
Het appartement ligt in de gewilde Plantagebuurt, tussen de Sarphatistraat en de Alexanderkade. Deze prachtige, breed opgezette buurt kenmerkt zich door statige bouw, veel groen en een ontspannen sfeer.
Alle voorzieningen bevinden zich binnen handbereik: het Oosterpark, Artis, het Tropenmuseum en de Dappermarkt liggen om de hoek. Voor de dagelijkse boodschappen zijn er diverse supermarkten in de nabije omgeving.
De buurt biedt daarnaast een breed scala aan horecagelegenheden — van dineren bij Restaurant De Plantage tot borrelen bij Louie Louie of een biertje drinken bij Brouwerij ’t IJ: voor ieder wat wils!
De bereikbaarheid is uitstekend. Vanaf het Alexanderplein en de Sarphatistraat vertrekken meerdere tramlijnen (7, 9 en 14). Binnen 5 minuten fiets je naar Station Muiderpoort en in circa 10 minuten naar Amsterdam Centraal. De Ring A10 is met de auto binnen 10 à 15 minuten te bereiken.
DUURZAAMHEID:
Het appartement is goed onderhouden en voorzien van isolerende beglazing. De hoge plafonds en raampartijen zorgen voor natuurlijke lichtinval en een prettig binnenklimaat.
VvE:
De woning maakt deel uit van een kleinschalige en actieve VvE. Het pand en de gemeenschappelijke ruimten worden goed onderhouden.
BIJZONDERHEDEN:
-Woonoppervlakte (NEN2580) 64 m²;
-Eigen grond;
-VVE bijdrage: € 186,45;
-Energielabel C;
-Eigen grond;
-Gezonde VvE bestaande uit meerdere appartementsrechten, professioneel beheerd;
-Voor de op te nemen clausules verwijzen we je door naar het formulier “op te nemen clausules in de koopakte”;
-Oplevering in overleg.
Deze informatie is met de nodige zorgvuldigheid samengesteld. Wij aanvaarden echter geen enkele aansprakelijkheid voor enige onvolledigheid, onjuistheid of anderszins, dan wel de gevolgen daarvan. Alle opgegeven maten en oppervlakten zijn indicatief. Koper heeft zijn eigen onderzoeksplicht naar alle zaken, die voor hem van belang zijn. Met betrekking tot deze woning is ons kantoor de makelaar van verkoper. Wij adviseren u een NVM/MVA Makelaar in te schakelen, die u met zijn deskundigheid zal bijstaan in het aankoopproces. Indien u geen professionele begeleiding wenst in te schakelen, acht u zich volgens de wet deskundig genoeg om alle zaken, die van belang zijn, te kunnen overzien. De Algemene Consumentenvoorwaarden van de NVM zijn van toepassing.
==================================English=================================
UNIQUE PENTHOUSE WITH WATER VIEWS LOCATED IN A BEAUTIFUL LOCATION!
This charming apartment of 64 m² on freehold is located in a prime location in the popular Plantage neighborhood, with unobstructed views over the water and the Tropenmuseum. The building exudes character, with high ceilings, plenty of natural light, and a quiet yet central location.
Curious? Call us to make an appointment; one of our real estate agents will be happy to give you a tour!
LAYOUT:
Through the communal entrance and the neat staircase, you reach the apartment on the third floor. Via the internal staircase, you come up to the fourth floor.
The cozy living/dining room with open kitchen is located at the front. Large windows provide plenty of natural light and a beautiful view over the water. It is easy to create a second bedroom here if desired.
The open kitchen is finished in sleek white and equipped with various built-in appliances, including a 4-burner gas stove with extractor hood, dishwasher, oven, refrigerator, and freezer. In the middle of the apartment, there is a separate toilet.
Through the hallway, you reach the bedroom, which features an en-suite bathroom. The modern bathroom has a walk-in shower, a bathtub, and a sink with vanity unit. Through the hall, you can also reach the roof via a fixed staircase.
For the LAYOUT, we also refer you to the floor plans, which can be viewed in 2D and 3D under the ‘floor plan’ section.
SURROUNDINGS:
The apartment is located in the desirable Plantage neighborhood, between Sarphatistraat and Alexanderkade. This beautiful, spacious area is characterized by stately buildings, plenty of greenery, and a relaxed atmosphere.
All amenities are within easy reach: Oosterpark, Artis, the Tropenmuseum, and the Dappermarkt are just around the corner. For daily groceries, there are various supermarkets in the vicinity.
The neighborhood also offers a wide range of dining options — from dining at Restaurant De Plantage to having drinks at Louie Louie or a beer at Brouwerij ’t IJ: something for everyone!
Accessibility is excellent. From Alexanderplein and Sarphatistraat, several tram lines depart (7, 9, and 14). Within 5 minutes by bike, you reach Muiderpoort Station and in about 10 minutes Amsterdam Central Station. The A10 Ring Road is reachable by car within 10 to 15 minutes.
SUSTAINABILITY:
The apartment is well maintained and equipped with insulating glazing. The high ceilings and large windows provide natural light and a pleasant indoor climate.
HOA:
The property is part of a small and active homeowners’ association (VvE). The building and communal areas are well maintained.
PARTICULARS:
-Living area (NEN2580) 64 m²;
-Freehold;
-HOA contribution: € 186,45;
-Energy label C;
-Freehold;
-Healthy VvE consisting of multiple apartment rights, professionally managed;
-For the clauses to be included, we refer you to the form “clauses to be included in the purchase agreement”;
-Delivery in consultation.
This information has been compiled with the utmost care. However, we do not accept any liability for any inaccuracies, incompleteness, or consequences thereof. All stated dimensions and surface areas are indicative. The buyer is responsible for conducting their own investigation into all matters of importance to them. Regarding this property, our office represents the seller. We advise you to engage an NVM/MVA certified estate agent to assist you in the purchasing process. If you choose not to seek professional guidance, the law assumes you are sufficiently knowledgeable to oversee all relevant matters. The General Consumer Terms and Conditions of the NVM apply.