**Please find the English translation below**
Sfeervol en goed ingedeeld 3 kamer appartement van circa 82 m², gelegen op de vierde verdieping van een modern complex uit 1995, in het centrum van Amsterdam. De woning beschikt over twee slaapkamers, een zonnig balkon op het zuidwesten, een lift en een praktische berging in de kelder. Dankzij de efficiënte indeling en de centrale ligging is dit appartement uitermate geschikt voor wie comfortabel wil wonen met alle voorzieningen binnen handbereik. Nieuwsgierig geworden? Bel ons voor het maken van een afspraak, één van onze makelaars leidt je graag rond!
LOCATIE
De woning ligt in het hart van Amsterdam, een levendige en centraal gelegen omgeving met een breed scala aan voorzieningen. Voor de dagelijkse boodschappen bevindt zich een Albert Heijn op de begane grond van het appartementencomplex. In de directe omgeving vind je bovendien diverse gezellige horecagelegenheden, zoals De Kop van Oost, Spirit Amsterdam en Pizza Project. Ook het Scheepvaartmuseum ligt op korte afstand, ideaal voor een cultureel uitstapje of een ontspannen middag. Daarnaast bevinden het Marineterrein, het Oosterpark, de Dappermarkt en de winkelstraat Czaar Peterstraat zich op korte afstand van de woning.
De bereikbaarheid is uitstekend. Met meerdere tram en bushaltes op loopafstand en metrostation Weesperplein nabij, ben je snel in andere delen van de stad. Ook Amsterdam Centraal Station en station Amstel zijn eenvoudig bereikbaar. Met de auto ben je via de uitvalswegen snel op de ring A10. Daarnaast bereik je met de fiets eenvoudig en snel diverse plekken in de stad.
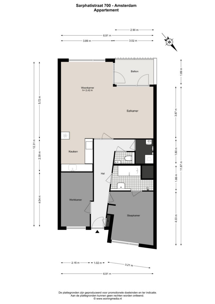
INDELING
Begane grond:
Verzorgde gemeenschappelijke entree met brievenbussen, bellentableau, lift en trappenhuis. Tevens toegang tot de bergingen in de kelder.
Vierde verdieping:
Entree van de woning, hal met toegang tot alle vertrekken. Ruime en lichte woonkamer met toegang tot het balkon is gunstig gelegen op het zuidwesten, waardoor je volop kunt genieten van de middag- en avondzon. Dit maakt het de perfecte plek om na een lange dag te ontspannen en optimaal te genieten van lange, sfeervolle zomerse avonden.
De open keuken is gesitueerd aan de woonkamer. Twee goed bemeten slaapkamers met de mogelijkheid om makkelijk een derde slaapkamer te realiseren. Badkamer voorzien van douche, bad en wastafel. Separaat toilet.
Voor de indeling verwijzen we je tevens graag door naar de plattegronden, deze zijn te bekijken in 2D en in 3D en zijn te vinden onder het kopje “plattegrond”.
DUURZAAMHEID
De woning beschikt over energielabel B.
VERENIGING VAN EIGENAREN (VvE)
De VvE is actief en gezond en bestaat uit 16 appartementsrechten. Het complex is gesplitst in 2011. De servicekosten bedragen €245 per maand voor het appartement. De VvE beschikt over een positief saldo van circa €140.000 per 31-12-2025.
ERFPACHT
De Erfpacht is afgekocht tot en 30 november 2043. Daarna vastgeklikt op € 1.425,79 (jaarlijkse indexering)
BIJZONDERHEDEN
– Woonoppervlakte (NEN2580) 82 m²
– Van origine heeft dit appartement 3 slaapkamers, er zijn er nu dus 2
– Bouwjaar 1995
– Servicekosten €245 per maand
– Energielabel B
– Erfpacht afgekocht tot 30 november 2043, daarna vastgeklikt op € 1.425,79 per jaar (jaarlijkse indexering)
– Gezonde VvE bestaande uit 16 appartementsrechten, professioneel beheerd door TLH VvE beheer.
– Voor de op te nemen clausules verwijzen we je door naar het formulier “op te nemen clausules in de koopakte”
-Oplevering in overleg
Deze informatie is met de nodige zorgvuldigheid samengesteld. Wij aanvaarden echter geen enkele aansprakelijkheid voor enige onvolledigheid, onjuistheid of anderszins, dan wel de gevolgen daarvan.
Alle opgegeven maten en oppervlakten zijn indicatief. Koper heeft zijn eigen onderzoeksplicht naar alle zaken, die voor hem van belang zijn. Met betrekking tot deze woning is ons kantoor de makelaar van verkoper. Wij adviseren u een NVM MVA Makelaar in te schakelen, die u met zijn deskundigheid zal bijstaan in het aankoopproces. Indien u geen professionele begeleiding wenst in te schakelen, acht u zich volgens de wet deskundig genoeg om alle zaken, die van belang zijn, te kunnen overzien. De Algemene Consumentenvoorwaarden van de NVM zijn van toepassing.
=====English=====
Atmospheric and well-laid-out 3-room apartment of approximately 82 m², located on the fourth floor of a modern complex built in 1995, in the center of Amsterdam. The property features two bedrooms, a sunny southwest-facing balcony, an elevator, and a practical storage unit in the basement. Thanks to its efficient layout and central location, this apartment is ideally suited for those seeking comfortable living with all amenities within easy reach. Curious? Call us to schedule an appointment—one of our agents will gladly show you around!
LOCATION
The property is situated in the heart of Amsterdam, a vibrant and centrally located area with a wide range of amenities. For daily groceries, an Albert Heijn supermarket is located on the ground floor of the apartment complex. In the immediate vicinity, you will also find various cozy restaurants and cafés, such as De Kop van Oost, Spirit Amsterdam, and Pizza Project. The National Maritime Museum (Scheepvaartmuseum) is also within short distance, perfect for a cultural outing or a relaxing afternoon. In addition, the Marineterrein, Oosterpark, the Dapper Market, and the shopping street Czaar Peterstraat are all nearby.
Accessibility is excellent. With multiple tram and bus stops within walking distance and metro station Weesperplein nearby, you can easily reach other parts of the city. Amsterdam Central Station and Amstel Station are also easily accessible. By car, you can quickly reach the A10 ring road via nearby main roads. Additionally, various parts of the city are easily and quickly accessible by bicycle.
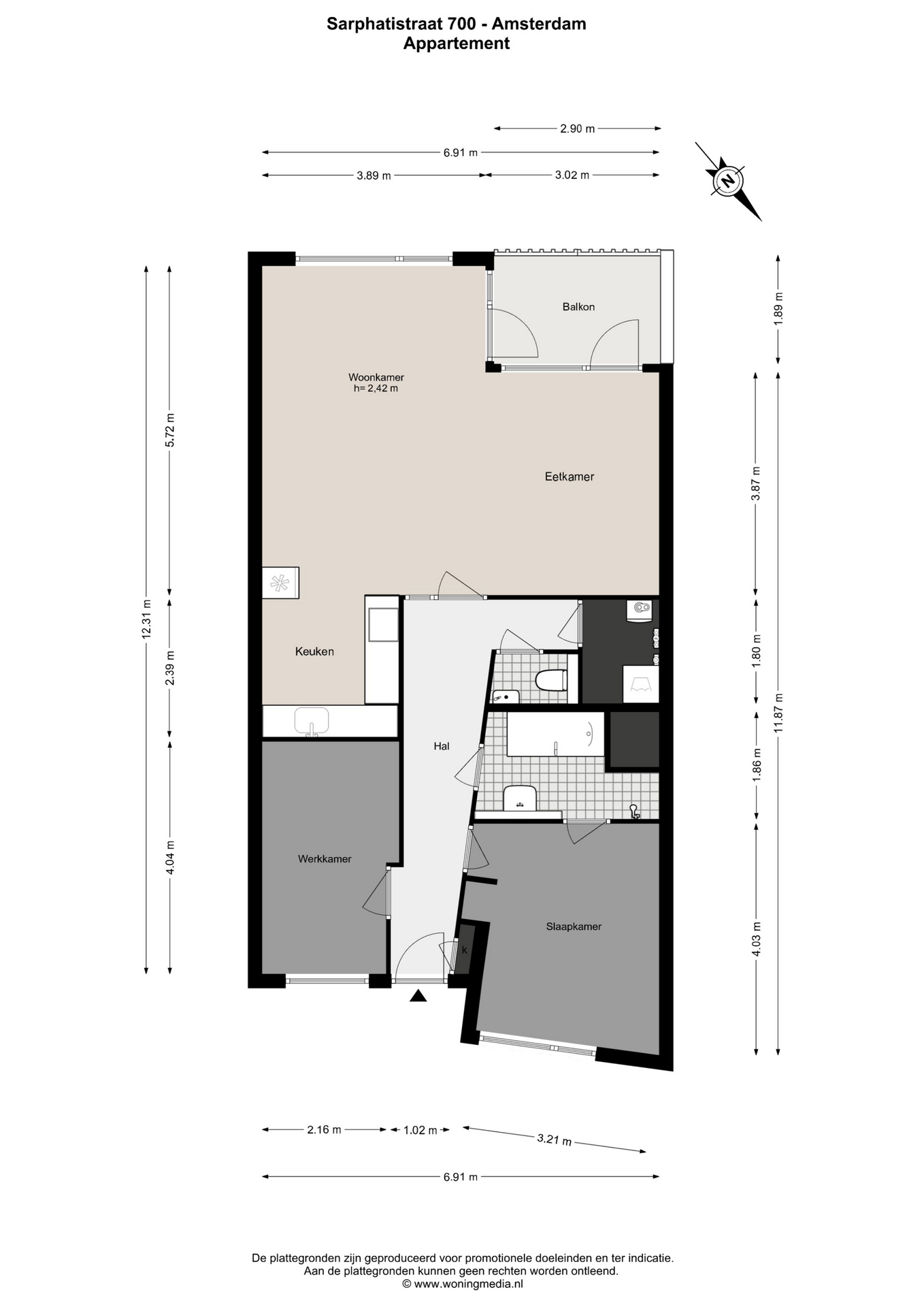
LAYOUT
Ground floor:
Well-maintained communal entrance with mailboxes, intercom system, elevator, and staircase. Access to the storage units in the basement.
Fourth floor:
Entrance to the apartment, hallway with access to all rooms. Spacious and bright living room with access to the southwest-facing balcony, allowing you to fully enjoy the afternoon and evening sun. This makes it the perfect place to unwind after a long day and enjoy long, atmospheric summer evenings.
The open kitchen is located adjacent to the living room. Two well-sized bedrooms, with the possibility to easily create a third bedroom. Bathroom equipped with a shower, bathtub, and washbasin. Separate toilet.
For the layout, we also refer you to the floor plans, available in both 2D and 3D under the section “floor plan.”
SUSTAINABILITY
The property has an energy label B.
HOMEOWNERS’ ASSOCIATION (VvE)
The homeowners’ association is active and financially healthy and consists of 16 apartment rights. The complex was subdivided in 2011. Service charges amount to €245 per month for the apartment. The association has a positive balance of approximately €140,000 as of December 31, 2025.
GROUND LEASE
The ground lease has been prepaid until November 30, 2043. Thereafter, it is fixed at €1,425.79 per year (subject to annual indexation).
PARTICULARS
– Living area (NEN2580): 82 m²
– Originally designed with 3 bedrooms; currently 2
– Built in 1995
– Service charges: €245 per month
– Energy label B
– Ground lease prepaid until November 30, 2043; thereafter fixed at €1,425.79 per year (annual indexation)
– Healthy homeowners’ association consisting of 16 apartment rights, professionally managed
– For applicable clauses, please refer to the document “clauses to be included in the purchase agreement”
– Delivery in consultation
This information has been compiled with due care. However, we accept no liability for any incompleteness, inaccuracies, or otherwise, nor for the consequences thereof.
All stated measurements and surface areas are indicative. The buyer has their own duty to investigate all matters of importance. With regard to this property, our office represents the seller. We advise you to engage an NVM/MVA real estate agent who can assist you with their expertise during the purchase process. If you choose not to engage professional guidance, you declare yourself sufficiently knowledgeable under the law to oversee all relevant matters. The General Consumer Conditions of the NVM apply.