**Please find the English translation below**
Zoek jij een ruime eengezinswoning van ca. 115 m², een achtertuin aan het water, twee ruime slaapkamers op de eerste verdieping en een zolder met derde slaapkamer én zonnig dakterras? Dan kan deze woning aan de Narwalstraat wel eens wat voor jou zijn. Nieuwsgierig geworden? Bel ons voor het maken van een afspraak, één van onze makelaars leidt je graag rond!
LOCATIE:
Je vindt de Narwalstraat in de Walvisbuurt in Amsterdam Noord. Een groot voordeel is dat de woning aan een doodlopende straat ligt, daarom heb je hier alleen verkeer van mensen die willen parkeren. Het is een kindvriendelijke buurt waar relatief veel gezinnen wonen. Er zijn dan ook meerdere scholen te vinden in de directe omgeving. De woning is zeer centraal gelegen ten opzichte van de A5, A8 en de A10, deze zijn binnen enkele minuten te bereiken. Bus 111, die elke 15 minuten gaat, brengt je met 20 minuten naar het Centraal station. Met iets minder dan 10 minuten fietsen sta je op de NDSM-werf, vanaf hier kun je niet alleen de pont naar Centraal station of de Pontsteiger pakken, maar hier zijn ook het hele jaar door leuke festivals te vinden. Voor een heerlijk hapje eten kun je hier oa. terecht bij Pllek, Noorderlicht, de IJ-kantine Loetje aan ’t IJ en Fred’s Kitchen. Natuurgebied ’t Twiske ligt op ongeveer 5 minuten fietsen, je kunt hier heerlijk wandelen, hardlopen of gewoon even uitwaaien.
INDELING:
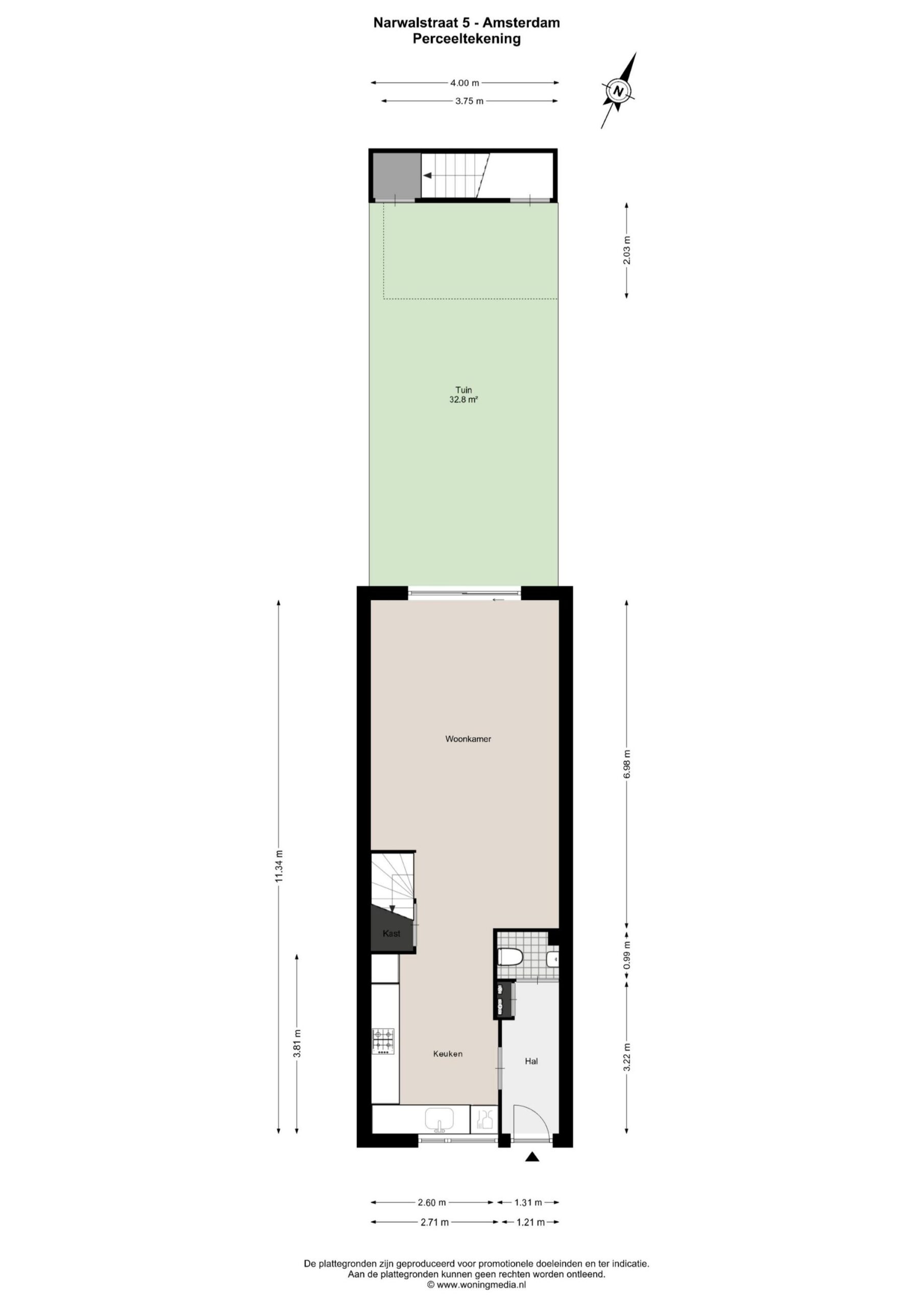
Aan de voorzijde is een fietsenberging en een gezellige voortuin. We lopen door de voordeur naar binnen in de ruime hal. Hier vinden we de meterkast en het eerste toilet. We lopen linksaf de keuken in. Deze is voorzien van een koel/vries combinatie, een 5 pits gasfornuis met oven, een vaatwasser en een afzuigkap. We lopen door naar de woonkamer, die geeft middels een schuifpui toegang tot verlengde en verhoogde achtertuin. Onder de verhoging bevindt zich nog een ruime berging.
Via de open trap in de woonkamer gaan we door naar de eerste etage, hier zijn twee hele ruime slaapkamers, en een ruime badkamer voorzien van ligbad, een douche, dubbele wastafel en tweede toilet te vinden.
Met de volgende trap lopen we naar de tweede etage. Hier is aan de achterkant van de woning een derde ruime slaapkamer met inbouwkast te vinden en aan de voorkant een ruim en zonnig dakterras. Eventueel is het mogelijk om een vierde slaapkamer te realiseren door het balkon/dakterras uit te bouwen (vergunningsplichtig).
ERFPACHT:
De woning is gelegen op grond van de gemeente Amsterdam, welke in erfpacht is uitgegeven. De erfpacht is afgekocht tot en met 15 november 2041.
DUURZAAMHEID:
Deze woning is voorzien van een HR CV ketel uit 2021, is volledig geïsoleerd, heeft dubbelglas en 6 zonnepanelen. Het energielabel is B.
BIJZONDERHEDEN:
• Bouwjaar 1992
• Energielabel B
• 6 zonnepanelen
• Nieuwe mechanische ventilatie geïnstalleerd in 2025
• Dak gerenoveerd in 2021
• Op minder dan 10 minuten fietsen van de NDSM-Werf
• 115 m² woonoppervlakte (NEN2580)
• Drie goed bemeten slaapkamers
• Mogelijkheid om een vierde slaapkamer te realiseren door het balkon/dakterras uit te bouwen (vergunningsplichtig).
• Erfpacht afgekocht tot 15 november 2041
• Voor de op te nemen clausules verwijzen wij je naar het formulier “Op te nemen clausules in de koopakte”
• Oplevering in overleg
Deze informatie is door ons met de nodige zorgvuldigheid samengesteld. Onzerzijds wordt echter geen enkele aansprakelijkheid aanvaard voor enige onvolledigheid, onjuistheid of anderszins, dan wel de gevolgen daarvan. Alle opgegeven maten en oppervlakten zijn indicatief. Koper heeft zijn eigen onderzoeksplicht naar alle zaken die voor hem of haar van belang zijn. Met betrekking tot deze woning is de makelaar adviseur van verkoper. Wij adviseren u een deskundig (NVM-)makelaar in te schakelen die u begeleidt bij het aankoopproces. Indien u specifieke wensen heeft omtrent de woning, adviseren wij u deze tijdig kenbaar te maken aan uw aankopend makelaar en hiernaar zelfstandig onderzoek te (laten) doen. Indien u geen deskundige vertegenwoordiger inschakelt, acht u zich volgens de wet deskundig genoeg om alle zaken die van belang zijn te kunnen overzien.
==========English==========
Are you looking for a spacious family home of approx. 115 m², a backyard on the water, two large bedrooms on the first floor, and an attic with a third bedroom and a sunny roof terrace? Then this property on Narwalstraat might be just what you’re looking for. Curious? Call us to schedule a viewing—one of our agents will be happy to show you around!
LOCATION:
Narwalstraat is located in the Walvisbuurt in Amsterdam North. A big advantage is that the house is situated on a dead-end street, meaning you’ll only see traffic from people parking their cars. It’s a child-friendly neighborhood with many families. Several schools are located nearby. The property is very centrally located with easy access to the A5, A8, and A10 motorways—all reachable within minutes. Bus 111 runs every 15 minutes and takes you to Central Station in about 20 minutes. In less than 10 minutes by bike, you’ll reach the NDSM wharf, where you can take the ferry to Central Station or Pontsteiger and enjoy fun festivals throughout the year. For a bite to eat, you can visit Pllek, Noorderlicht, IJ-kantine, Loetje aan ’t IJ, and Fred’s Kitchen. Nature reserve ’t Twiske is only a 5-minute bike ride away, ideal for walking, running, or just getting some fresh air.
LAYOUT:
At the front, there’s a bike storage and a cozy garden. Entering through the front door, you find yourself in a spacious hallway with the fuse box and the first toilet. To the left is the kitchen, equipped with a fridge/freezer combination, a 5-burner gas stove with oven, a dishwasher, and an extractor hood. The kitchen flows into the living room, which provides access to the extended and elevated backyard via sliding doors. Under the elevated deck, there’s a spacious storage area.
An open staircase in the living room leads to the first floor, which has two generously sized bedrooms and a large bathroom with a bathtub, a shower, a double sink, and a second toilet.
Taking the next staircase up to the second floor, you’ll find a third spacious bedroom with a built-in wardrobe at the rear of the house, and at the front, a large sunny roof terrace. It is optionally possible to create a fourth bedroom by extending the balcony/roof terrace (subject to planning permission).
GROUND LEASE:
The house is located on land owned by the Municipality of Amsterdam, issued under a leasehold agreement. The ground lease has been paid off until November 15, 2041.
SUSTAINABILITY:
This property is equipped with a high-efficiency central heating boiler from 2021, is fully insulated, has double glazing, and comes with 6 solar panels. The energy label is B.
HIGHLIGHTS:
• Built in 1992
• Energy label B
• 6 solar panels
• New mechanical ventilation installed in 2025
• Roof refurbished in 2021
• Less than 10 minutes by bike from the NDSM Wharf
• 115 m² of living space (NEN2580)
• Three well-sized bedrooms
• It is possible to create a fourth bedroom by extending the balcony/roof terrace (subject to planning permission).
• Leasehold bought off until November 15, 2041
• Delivery in consultation
This information has been compiled by us with the necessary care. However, on our part, no liability is accepted for any incompleteness, inaccuracy or otherwise, or the consequences thereof. All specified sizes and surfaces are indicative. The buyer has his own duty to investigate all matters that are important to him or her. The real estate agent acts as an advisor to the seller regarding this property. We advise you to engage an expert (NVM) broker who will guide you through the purchase process. If you have specific wishes regarding the home, we advise you to inform your purchasing broker in good time and to conduct an independent investigation into this. If you do not engage an expert representative, you consider yourself competent enough by law to be able to oversee all matters of importance.