**Please find the English translation below**
In de gezellige Czaar Peterbuurt mogen wij dit ruime en goed onderhouden 3-kamerappartement aanbieden van 65 m², dat zowel binnen als buiten in 2011 is gerenoveerd. De woning beschikt over twee slaapkamers, een open keuken, een balkon op het noordwesten en een ruime berging op zolder van 8 m² met elektra en daglicht. Een prettig ingedeeld appartement op een fijne en rustige locatie in Amsterdam Centrum.
OMGEVING
De Blankenstraat is een rustige straat in de geliefde Czaar Peterbuurt, vlakbij de Oostelijke Eilanden en grenzend aan het autovrije Funenpark. De buurt heeft een eigen karakter en de Czaar Peterstraat vormt het levendige hart, met ambachtelijke winkels, boetieks, gezellige koffiezaken en uitstekende restaurants, maar zonder de drukte van de binnenstad. In 2015 werd de straat uitgeroepen tot de leukste winkelstraat van Nederland, en die kwaliteit ervaar je hier nog altijd.
In de directe omgeving vind je bekende adressen zoals Stadsbakkerij As, Counter Deli, Pizza Vagabond en Brouwerij ’t IJ. Ook zijn er speciaalzaken zoals Fromagerie Abraham Kef en kun je voor goede koffie terecht bij Kaffa Koffie. Voor je dagelijkse boodschappen zijn er meerdere supermarkten, waaronder een biologische variant, en iets verderop ligt de gezellige Dappermarkt.
De ligging is uitstekend. Via de Piet Heintunnel rijd je in enkele minuten naar de Ring A10 en met tram 7 of 26 sta je snel in het centrum of op het Centraal Station. Met de fiets ben je binnen tien minuten bij station Muiderpoort. Tussen de Plantagebuurt, de Oostelijke Eilanden en Amsterdam Oost ligt de Czaar Peterbuurt precies goed: rustig én centraal.
De gemeente Amsterdam investeert momenteel in de herinrichting van de Czaar Peterstraat. De straat wordt autoluw ingericht, met bredere fietspaden in beide richtingen, vernieuwde trambanen en meer ruimte voor groen en voetgangers, terwijl de karakteristieke bomenlaan behouden blijft. Dit project maakt deel uit van de verbetering van de Binnenring en wordt naar verwachting afgerond in 2026.
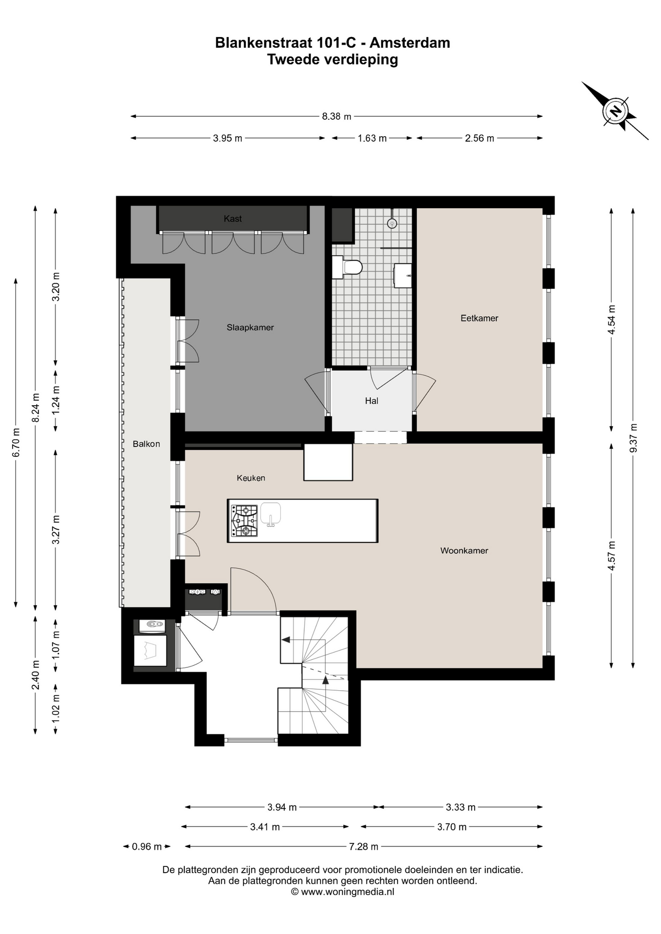
INDELING:
Via de gezamenlijke entree bereik je de woning, gelegen op de tweede verdieping van het appartementencomplex. Je komt binnen in de lichte woonkamer met open keuken, voorzien van een houten vloer en een grote raampartij. De keuken is uitgerust met een wijnkoeler, vaatwasser, combi oven-magnetron en een koel-vriescombinatie. Vanuit de keuken is er toegang tot het brede balkon op het noordwesten. Vanuit de woonkamer zijn de twee slaapkamers en de badkamer bereikbaar. Slaapkamer één is gelegen aan de voorzijde en wordt momenteel gebruikt als eetkamer, maar kan desgewenst ook uitstekend dienen als slaapkamer. De tweede, ruime slaapkamer bevindt zich aan de achterzijde en biedt voldoende ruimte voor een grote kast en geeft tevens toegang tot het balkon. De inpandige badkamer is voorzien van een toilet, wastafel en douche. In het trappenhuis bevindt zich een kast met de aansluiting voor de wasmachine en de meterkast. Op de zolderverdieping is een ruime berging van 8 m² met elektra en daglicht
Voor de indeling verwijzen we je tevens graag door naar de plattegronden, deze zijn te bekijken in 2D en in 3D en zijn te vinden onder het kopje ‘plattegrond’.
ERFPACHT:
De woning staat op erfpacht grond van de gemeente Amsterdam. De erfpacht is afgekocht tot en met 31 juli 2061.
VERENIGING VAN EIGENAREN:
De woning maakt onderdeel uit van een Vereniging van Eigenaren welke professioneel wordt beheerd door Arlanda VvE Beheer. De VvE beschikt over een meerjarenonderhoudsplan en een collectieve opstalverzekering. De maandelijkse servicekosten bedragen €188,75
BIJZONDERHEDEN:
• Woonoppervlakte (NEN2580) 65,2 m²
• Ruime berging op zolder van 8 m² met elektra en daglicht
• Pand gerenoveerd in 2010–2011
• Bouwjaar 1880
• Energielabel B
• Dubbele beglazing
• Twee ruime slaapkamers
• Balkon over de gehele breedte op het noordwesten
• Voorzien van houten vloer
• Erfpacht afgekocht tot 31 juli 2061
• Actieve en professioneel beheerder VvE (Eigen Haard)
• Servicekosten € 188,75 per maand
• Voor de op te nemen clausules verwijzen we je door naar het formulier ‘op te nemen clausules in de koopakte’
• Oplevering in overleg
Deze informatie is met de nodige zorgvuldigheid samengesteld. Wij aanvaarden echter geen enkele aansprakelijkheid voor enige onvolledigheid, onjuistheid of anderszins, dan wel de gevolgen daarvan.
Alle opgegeven maten en oppervlakten zijn indicatief. Koper heeft zijn eigen onderzoeksplicht naar alle zaken, die voor hem van belang zijn. Met betrekking tot deze woning is ons kantoor de makelaar van verkoper. Wij adviseren u een NVM/MVA Makelaar in te schakelen, die u met zijn deskundigheid zal bijstaan in het aankoopproces. Indien u geen professionele begeleiding wenst in te schakelen, acht u zich volgens de wet deskundig genoeg om alle zaken, die van belang zijn, te kunnen overzien. De Algemene Consumentenvoorwaarden van de NVM zijn van toepassing.
====English====
In the charming Czaar Peterbuurt, we are pleased to offer this spacious and well-maintained three-room apartment of 65 m², which was renovated both internally and externally in 2011. The property features two bedrooms, an open-plan kitchen, a northwest-facing balcony, and a generous 8 m² storage room in the attic with electricity and natural daylight. A pleasantly laid-out apartment in a lovely and quiet location in Amsterdam City Centre.
SURROUNDINGS
Blankenstraat is a quiet street in the popular Czaar Peterbuurt, close to the Eastern Docklands and bordering the car-free Funenpark. The neighbourhood has its own distinctive character, with Czaar Peterstraat forming its vibrant heart. Here you will find artisan shops, boutiques, cosy cafés and excellent restaurants—without the hustle and bustle of the city centre. In 2015, the street was named the nicest shopping street in the Netherlands, a quality that is still very much felt today.
In the immediate vicinity you’ll find well-known spots such as Stadsbakkerij As, Counter Deli, Pizza Vagabond and Brewery ’t IJ. There are also specialist shops like Fromagerie Abraham Kef, and for good coffee you can visit Kaffa Koffie. Daily groceries can be done at several nearby supermarkets, including an organic one, and the lively Dapper Market is just a little further away.
The location is excellent. Via the Piet Hein Tunnel you can reach the A10 ring road within minutes, and tram lines 7 and 26 provide quick access to the city centre and Central Station. By bike, Muiderpoort Station is only ten minutes away. Situated between the Plantage neighbourhood, the Eastern Docklands and Amsterdam East, the Czaar Peterbuurt offers the perfect balance between tranquillity and central living.
The Municipality of Amsterdam is currently investing in the redevelopment of Czaar Peterstraat. The street will be redesigned to be low-traffic, with wider cycle paths in both directions, renewed tram tracks, and more space for greenery and pedestrians, while preserving the characteristic tree-lined avenue. This project is part of the Inner Ring improvement plan and is expected to be completed in 2026.
LAYOUT
The apartment is accessed via the communal entrance and is located on the second floor of the apartment complex. Upon entry, you step into the bright living room with open-plan kitchen, featuring a wooden floor and large windows. The kitchen is equipped with a wine cooler, dishwasher, combination oven-microwave, and a fridge-freezer. From the kitchen, there is access to the wide northwest-facing balcony.
From the living room, both bedrooms and the bathroom are accessible. The first bedroom is located at the front of the apartment and is currently used as a dining room, but can also serve perfectly as a bedroom. The second, spacious bedroom is situated at the rear, offers ample space for a large wardrobe, and also provides access to the balcony. The internal bathroom is fitted with a toilet, washbasin and shower.
In the stairwell, there is a cupboard containing the washing machine connection and the electricity meter. On the attic floor, there is a spacious 8 m² storage room with electricity and natural daylight.
For a detailed layout, we also refer you to the floor plans, available in both 2D and 3D under the “floor plan” section.
LEASEHOLD
The property is situated on leasehold land owned by the Municipality of Amsterdam. The leasehold has been bought off until 31 July 2061.
HOMEOWNERS’ ASSOCIATION (VvE)
The apartment is part of a Homeowners’ Association that is professionally managed by Arlanda VvE Beheer. The VvE has a multi-year maintenance plan and a collective building insurance policy. The monthly service charges amount to €188.75.
DETAILS
• Living area (NEN2580): 65.2 m²
• Spacious attic storage room of 8 m² with electricity and daylight
• Building renovated in 2010–2011
• Year of construction: 1880
• Energy label B
• Double glazing
• Two spacious bedrooms
• Balcony across the full width, northwest-facing
• Wooden flooring throughout
• Leasehold paid off until 31 July 2061
• Active and professionally managed VvE (Eigen Haard)
• Service charges: €188.75 per month
• For applicable clauses, please refer to the document “clauses to be included in the purchase agreement”
• Transfer date in consultation
This information has been compiled with due care. However, we accept no liability for any incompleteness, inaccuracies or otherwise, nor for the consequences thereof.
All stated measurements and surface areas are indicative. The buyer has their own duty to investigate all matters that are of importance to them. With regard to this property, our office acts as the seller’s real estate agent. We advise engaging an NVM/MVA real estate agent to assist you with their expertise during the purchasing process. If you choose not to engage professional guidance, you declare yourself legally competent to oversee all relevant matters. The General Consumer Conditions of the NVM apply.