Op het centraal gelegen eiland Wittenburg mogen wij deze charmante benedenwoning van ca. 86 m² aanbieden. Dit goed ingedeelde appartement beschikt over 3 volwaardige slaapkamers en een heerlijke tuin van maar liefst 100 m² op het zuidwesten. Zowel in het appartement als in de tuin ervaar je veel privacy.
De woning ligt aan een rustige straat met alleen bestemmingsverkeer. Een zeldzame combinatie van rust, ruimte en stadsleven in het centrum van Amsterdam.
LOCATIE:
De Jan Witheijnstraat is gelegen in het oostelijke gedeelte van het centrum op het eiland Wittenburg. Ondanks de centrale ligging staan de Oostelijke Eilanden bekend om hun ontspannen en relaxte sfeer. Rondom de woning zijn alle voorzieningen te vinden. Er is een supermarkt op 5 minuten loopafstand en de winkelcentra Brazilië en Oostpoort zijn binnen enkele minuten per fiets bereikbaar. In de dichtbij gelegen Czaar Peterstraat vind je diverse delicatessenzaken. In de omgeving bevinden zich ook verschillende restaurants en andere uitgaansgelegenheden zoals Hannekes Boom, Scheepvaartmuseum, Pakhuis De Zwijger en Brouwerij ’t IJ. Verder zijn er tal van recreatiemogelijkheden in de buurt waaronder Artis, de Hortus Botanicus, diverse musea, het Marineterrein en het Funenpark.
Op loopafstand van de woning ligt de goed aangeschreven basisschool de Alan Turingschool.
Het Centraal Station en station Muiderpoort liggen beide op korte fietsafstand waardoor alle delen van de stad en regio Amsterdam snel bereikbaar zijn met het openbaar vervoer. Er zijn meerdere bus- en tramlijnen op enkele minuten van de woning. Met de auto ben je via de Piet Heintunnel of de IJtunnel binnen enkele minuten op de ring A10. Schiphol is dan ook binnen 30 minuten bereikbaar.
Parkeren kan in de straat met een – aan te vragen – bewonersvergunning.
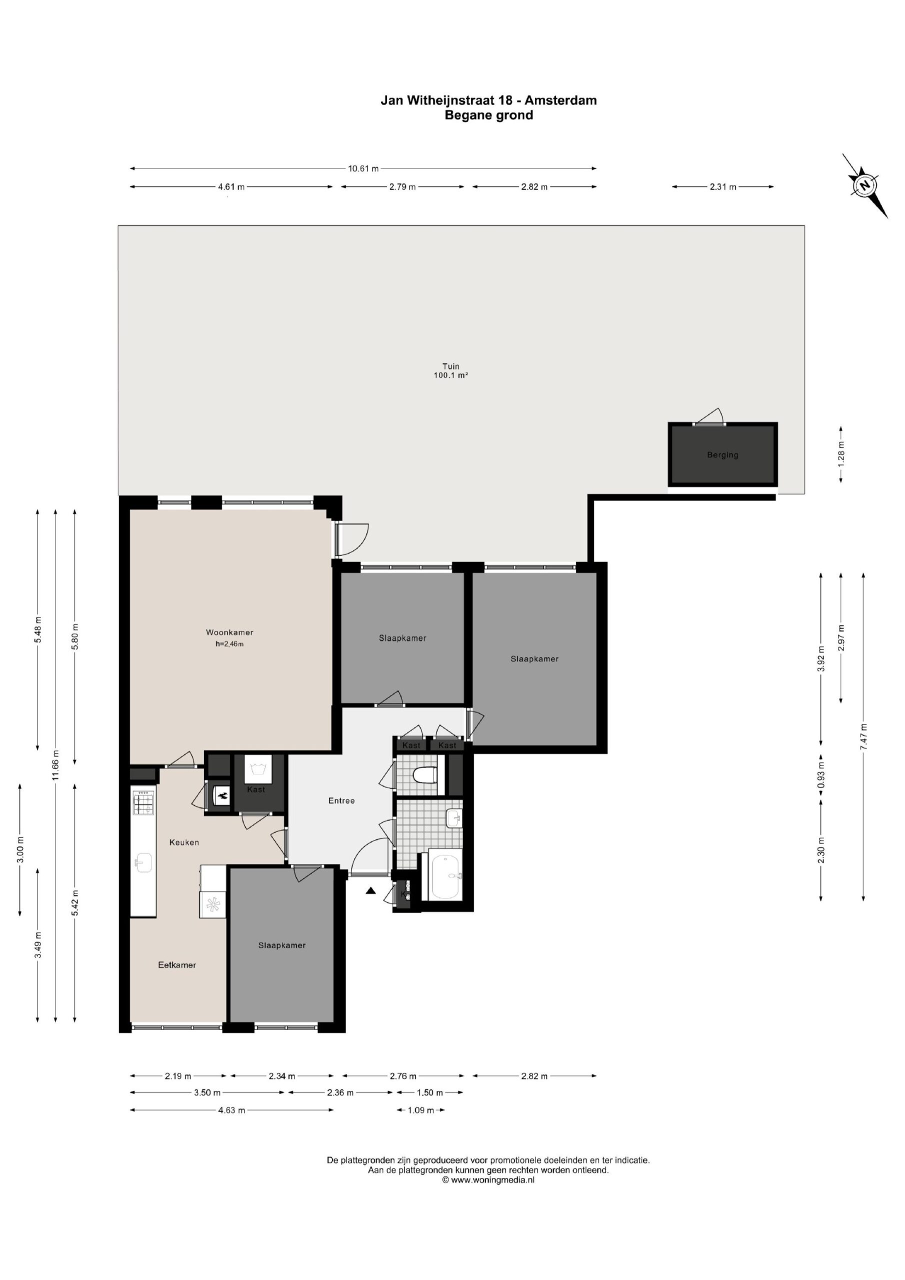
INDELING:
Begane grond:
Entree, hal met toegang tot het separate toilet en de badkamer voorzien van een bad en wastafel. Aan de voorzijde van de woning bevindt zich de keuken met voldoende ruimte voor een eettafel. Hier zit ook een bergkast met de CV-ketel en een berging met een aansluiting voor de wasmachine. Vanuit de keuken kom je in de sfeervolle woonkamer aan de achterzijde van de woning. De woonkamer biedt toegang tot de tuin die zich uitstrekt over de volledige breedte van de woning met een schuur van ca. 3 m². Verder zijn er 3 goede slaapkamers waarvan 2 aan de achterzijde van de woning met uitzicht op de tuin.
Er is een externe berging van ca. 8 m².
Voor de indeling verwijzen we je tevens graag door naar de plattegronden, deze zijn te bekijken in 2D en in 3D en zijn te vinden onder het kopje “plattegrond”.
ERFPACHT:
De woning is gelegen op grond van de gemeente Amsterdam, welke in erfpacht is uitgegeven. Voor het gebruik van deze grond betaal je als eigenaar een vergoeding.
De jaarlijkse vergoeding is vooruitbetaald (afgekocht) tot 1 juni 2041. Verkoper heeft ervoor gekozen om over te stappen naar het nieuwe erfpachtstelsel AB2016. De jaarlijkse canon is vanaf 1 juni 2041 vastgeklikt op € 1.179,74 per jaar. Dit bedrag wordt jaarlijks geïndexeerd.
VERENIGING VAN EIGENAREN:
Het complex is in 2004 gesplitst in 160 appartementsrechten. De VVE is actief, heeft een duurzaam meerjarenonderhoudsplan en wordt professioneel beheerd door Arlanda VVE Beheer. De servicekosten bedragen momenteel € 164,69 per maand, waarin onder andere de opstalverzekering en een reservering voor onderhoud zijn opgenomen.
Er is onlangs besloten om over te gaan tot verduurzaming van het gebouw. Hierbij zullen onder andere de kozijnen worden vervangen (door ramen met HR++ glas) en de kruipruimte en het dak worden geïsoleerd. Dit zal een enorme verbetering betekenen voor het energielabel. Er zal een lening worden afgesloten voor het uitvoeren van de werkzaamheden. Vraag de makelaar naar meer informatie.
BIJZONDERHEDEN:
• Bouwjaar 1990
• Woonoppervlakte (NEN2580): 86.3 m²
• Heerlijke tuin op het zuidwesten van 100 m²
• Energielabel B
• Erfpacht afgekocht tot 1 juni 2041, daarna vastgeklikt onder de gunstige voorwaarden
• Gezonde en actieve VvE bestaande uit 160 appartementsrechten professioneel beheerd door Arlanda VVE beheer
• Servicekosten: € 164,69 per maand
• Voor de op te nemen clausules verwijzen we je naar het formulier “Op te nemen clausules in de koopakte”
• Oplevering in overleg
Deze informatie is met de nodige zorgvuldigheid samengesteld. Wij aanvaarden echter geen enkele aansprakelijkheid voor enige onvolledigheid, onjuistheid of anderszins, dan wel de gevolgen daarvan. Alle opgegeven maten en oppervlakten zijn indicatief. Koper heeft zijn eigen onderzoeksplicht naar alle zaken, die voor hem van belang zijn. Met betrekking tot deze woning is ons kantoor de makelaar van verkoper. Wij adviseren u een NVM/MVA Makelaar in te schakelen, die u met zijn deskundigheid zal bijstaan in het aankoopproces. Indien u geen professionele begeleiding wenst in te schakelen, acht u zich volgens de wet deskundig genoeg om alle zaken, die van belang zijn, te kunnen overzien. De Algemene Consumentenvoorwaarden van de NVM zijn van toepassing.
==================================English=================================
On the centrally located island of Wittenburg, we offer this charming ground floor apartment of approx. 86 m². This well laid out apartment has 3 full-size bedrooms and a lovely garden of 100 m² facing southwest. Both the apartment and the garden offer a lot of privacy.
The house is located on a quiet street with only local traffic. A rare combination of peace, space and city life in the center of Amsterdam.
LOCATION:
The Jan Witheijnstraat is located in the eastern part of the center on the island Wittenburg. Despite its central location, the Eastern Islands are known for their relaxed and laid-back atmosphere. All amenities can be found around the property. There is a supermarket within 5 minutes walking distance and the shopping centers Brazil and Oostpoort are within a few minutes by bike. In the nearby Czaar Peterstraat you will find several delicatessens. Also in the area are several restaurants and other entertainment venues such as Hannekes Boom, Scheepvaartmuseum, Pakhuis De Zwijger and Brouwerij ’t IJ. Furthermore, there are plenty of recreational opportunities nearby including Artis, the Hortus Botanicus, several museums, the Marineterrein and the Funenpark.
Within walking distance of the house is the elementary school the Alan Turingschool.
Central Station and Muiderpoort Station are both a short bike ride away, making all parts of the city and region of Amsterdam quickly accessible by public transportation. There are several bus and streetcar lines a few minutes from the house. By car you can reach the A10 ring road via the Piet Hein tunnel or the IJtunnel within minutes. Schiphol Airport can also be reached within 30 minutes.
Parking is available in the street with a residents permit.
LAYOUT:
Ground floor:
Entrance hall with access to the separate toilet and bathroom with bathtub and sink. At the front of the house is the kitchen with enough space for a dining table. Here is also a storage closet with the central heating boiler and a storage room with a connection for the washing machine. From the kitchen you enter the cozy living room at the rear of the house. The living room provides access to the garden which extends over the full width of the house with a shed of about 3 m². Furthermore, there are 3 good bedrooms, 2 of which are at the rear of the house overlooking the garden.
There is an external storage room of approx. 8 m².
For the layout we would also like to refer you to the floor plans, these can be viewed in 2D and 3D and can be found under the heading “floor plan”.
LEASEHOLD:
The house is situated on land owned by the municipality of Amsterdam. The annual fee is paid (bought off) until the 1st of June 2041. Seller has chosen to switch to perpetual lease AB2016. The annual canon is fixed at € 1,179.74 per year from the 1st of June 2041. This amount will be indexed annually.
OWNERS’ ASSOCIATION:
The complex was split into 160 apartment rights in 2004. The VVE is active, has a sustainable multi-year maintenance plan and is professionally managed by Arlanda VVE Beheer. The service costs currently amount to € 164.69 per month, which includes the building insurance and a reservation for maintenance.
It was recently decided to make the building more sustainable. Among other things, the window frames will be replaced (by windows with HR++ glass) and the crawl space and roof will be insulated. This will mean a huge improvement in the energy label. A loan will be taken out to carry out the work. Ask the broker for more information.
DETAILS:
– Built in 1990
– Living area (NEN2580): 86.3 m²
– Lovely southwest facing garden of 100 m²
– Energy label B
– Leasehold bought off until 1st of June 2041, then secured under favorable conditions
– Healthy and active VvE consisting of 160 apartment rights professionally managed by Arlanda VVE beheer
– Service costs: € 164,69 per month
– For the clauses to be included we refer you to the form “Clauses to be included in the deed of sale”.
– Delivery in consultation
This information has been compiled with due care. However, we accept no liability for any incompleteness, inaccuracy or otherwise, or the consequences thereof.
All specified sizes and surfaces are indicative. The buyer has his own obligation to investigate all matters that are important to him. With regard to this property, our office is the seller’s agent. We advise you to engage an NVM/MVA real estate agent, who will assist you with his expertise in the purchasing process. If you do not wish to engage professional guidance, you consider yourself expert enough according to the law to be able to oversee all matters that are important. The General Consumer Terms and Conditions of the NVM apply