**Please find the English translation below**
Unieke kans! Goed onderhouden hoekwoning met vrijstaande garage in geliefde buurt Randwijck!
Deze fraaie jaren ’30-hoekwoning van 131m² beschikt over maar liefst 5 slaapkamers en 2 badkamers, een woonkeuken met kookeiland, eikenhouten vloer, houtkachel en een zonnige tuin op het zuidwesten en oosten. De woning ligt aan de bosrand, dus geen overburen.
Deze turnkey woning is in overleg te betrekken en is zeer geschikt voor (grotere) gezinnen of gezinnen met een au-pair. De vrijstaande garage van bijna 20 m² is bijvoorbeeld ideaal om te verbouwen tot een ’tiny house’.
OMGEVING:
De wijk Randwijck is gebouwd in de periode 1924 tot ongeveer 1950. De wijk bestaat uit een hoog en een laag gedeelte. Dit is vanaf de brug bij het Catharina van Clevepark goed te zien. Het bovenland ligt op venige grond, het lage gedeelte is in de polder gebouwd. In het oudste deel zijn veel huizen in de late stijl van de Amsterdamse School gebouwd. De waterlopen en groenvoorzieningen zijn ontworpen door de heer Broerse. Randwijck heeft een gevarieerd aanbod aan bomen en struiken, waaronder de grote treurtaxussen in het plantsoen bij het Catharina van Clevepark.
De woning is uitstekend bereikbaar met het openbaar vervoer (diverse buslijnen en trams 5 en 51) en er is vrij parkeren op de openbare weg.
INDELING:
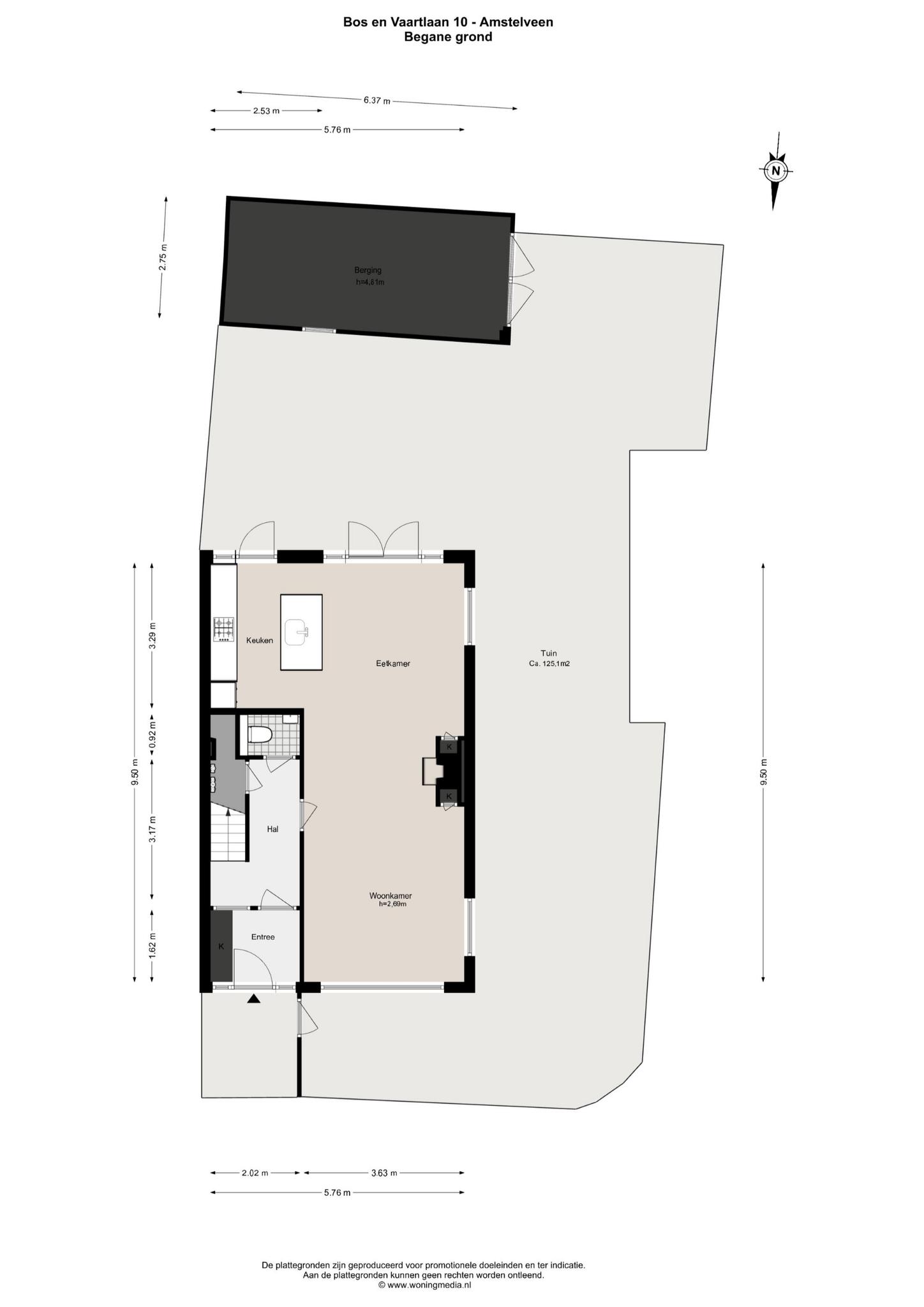
Begane grond: Entree, gang met toegang tot de woonkamer, het toilet, de trapkast en de trap naar de eerste verdieping. De woonkamer heeft een diepte van 9,5 meter en openslaande deuren naar de achtertuin. Omdat het een hoekwoning betreft, zorgen ramen in de zijgevel voor extra lichtinval. De houtkachel in de woonkamer zorgt voor gezellige warmte. Aan de achterzijde bevindt zich de fraaie open keuken met diverse inbouwapparatuur en een kookeiland. De keuken geeft tevens toegang tot de achtertuin. De achtertuin wordt begrensd door de garage.
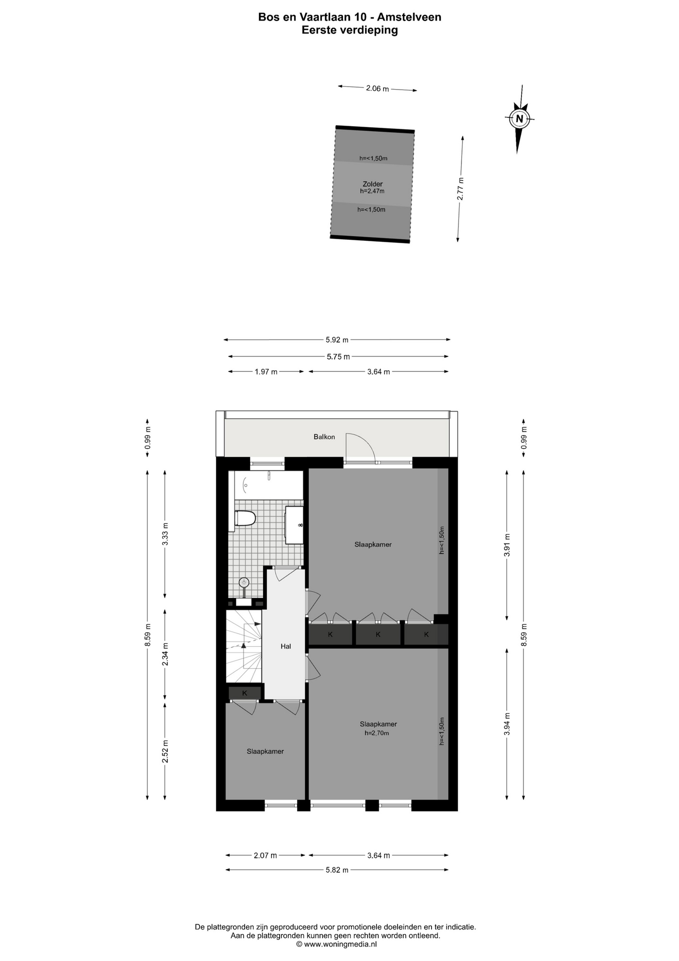
Eerste verdieping: Hier bevinden zich drie slaapkamers en de badkamer, uitgerust met bad, douche en toilet. Al deze vertrekken zijn toegankelijk via de overloop. De grote slaapkamer aan de achterzijde biedt via openslaande deuren toegang tot het balkon. Tussen de grote slaapkamers bevindt zich een kastenwand.
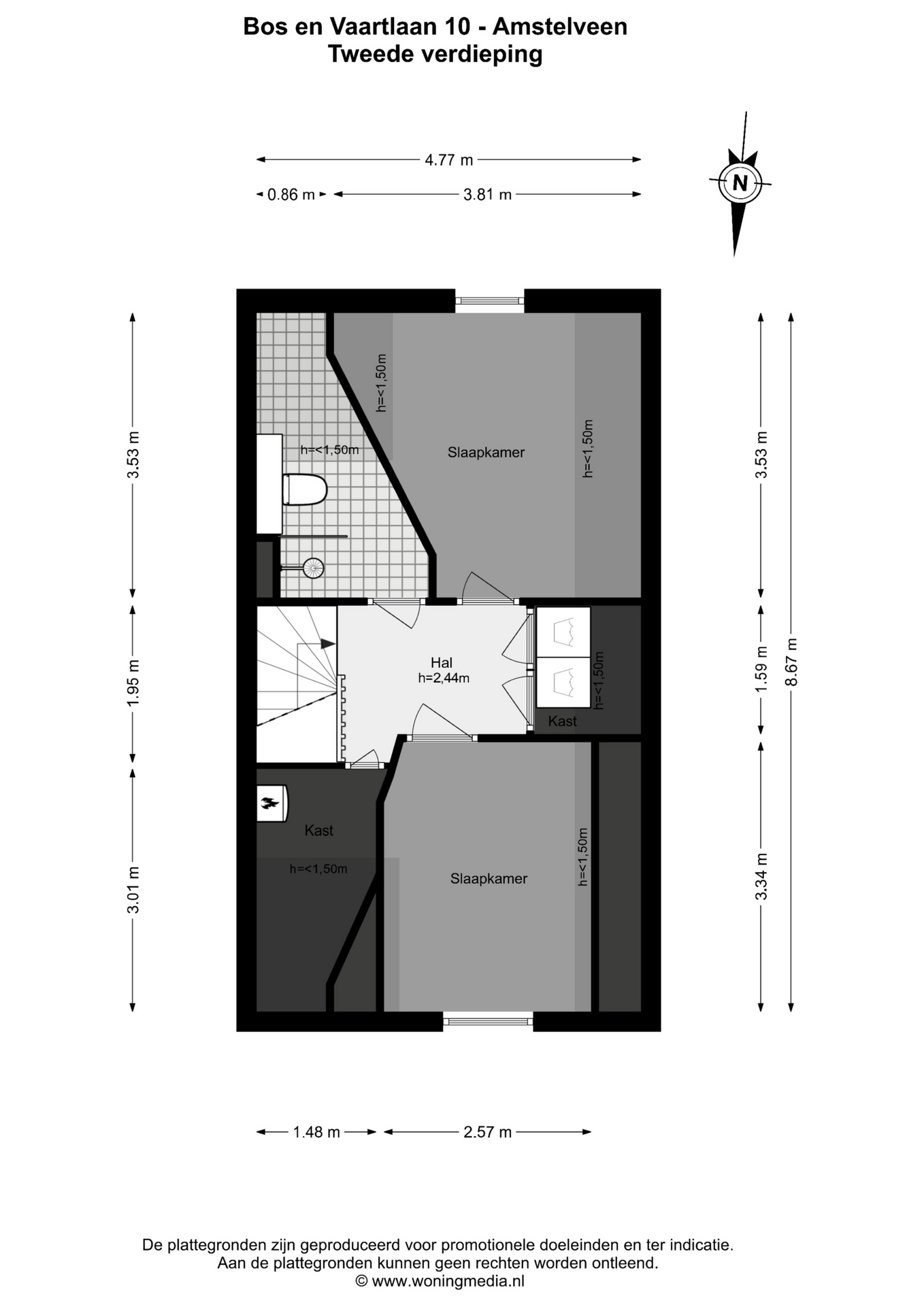
Zolderverdieping: De zolderverdieping is ingedeeld in twee slaapkamers, één aan de voorzijde en één aan de achterzijde. In het midden bevindt zich de tweede badkamer. De zolder is bereikbaar via een vaste trap.
Op alle verdiepingen is airco aanwezig.
BIJZONDERHEDEN:
-Woonoppervlakte: 131 m² (NEN2580 ingemeten);
-Ruime tuin van 125 m² door de hoekligging;
-Vrijstaande garage van bijna 20m² met eigen oprit;
-5 slaapkamers;
-2 badkamers;
-3 toiletten;
-Fantastisch vrij uitzicht, gelegen aan bosrand;
-Complete woonkeuken met kookeiland;
-Tuin en balkon op het zuidwesten;
-Eikenhouten vloer door de gehele woning;
-Dubbele beglazing;
-Airco op alle verdiepingen;
-Houtkachel;
-Mechanische ventilatie;
-Oplevering in overleg.
Deze informatie is door ons met de nodige zorgvuldigheid samengesteld. Onzerzijds wordt echter geen enkele aansprakelijkheid aanvaard voor enige onvolledigheid, onjuistheid of anderszins, dan wel de gevolgen daarvan. Alle opgegeven maten en oppervlakten zijn indicatief. Koper heeft zijn eigen onderzoeksplicht naar alle zaken die voor hem of haar van belang zijn. Met betrekking tot deze woning is de makelaar adviseur van verkoper. Wij adviseren u een deskundig (NVM-)makelaar in te schakelen die u begeleidt bij het aankoopproces. Indien u specifieke wensen heeft omtrent de woning, adviseren wij u deze tijdig kenbaar te maken aan uw aankopend makelaar en hiernaar zelfstandig onderzoek te (laten) doen. Indien u geen deskundige vertegenwoordiger inschakelt, acht u zich volgens de wet deskundig genoeg om alle zaken die van belang zijn te kunnen overzien. De Algemene Consumentenvoorwaarden van de NVM zijn van toepassing
========English========
Unique opportunity! Well-maintained corner house with detached garage in the popular Randwijck neighborhood!
This charming 1930s corner house of 131 m² offers no fewer than 5 bedrooms and 2 bathrooms, a spacious kitchen with cooking island, oak flooring, a wood-burning stove, and a sunny garden facing southwest and east. The property is situated at the edge of a wooded area, offering unobstructed views with no direct neighbors across.
This turnkey home is available by mutual agreement and is ideal for larger families or those with an au pair. The detached 20 m² garage also presents the perfect opportunity for conversion into a tiny house.
SURROUNDINGS:
The Randwijck neighborhood was developed between 1924 and approximately 1950. The area consists of a higher and lower section, clearly visible from the bridge near the Catharina van Clevepark. The higher ground lies on peaty soil, while the lower part was built on reclaimed polder land. Many homes in the oldest part of the neighborhood were constructed in the late Amsterdam School architectural style. The waterways and green spaces were designed by Mr. Broerse. Randwijck features a diverse range of trees and shrubs, including large weeping yews in the park near the Catharina van Clevepark.
The property is easily accessible by public transport (various bus lines and tram lines 5 and 51), and free parking is available on public roads.
LAYOUT:
Ground floor: Entrance hall providing access to the living room, toilet, stair cupboard, and stairs to the first floor. The spacious living room spans 9.5 meters in depth and features French doors leading to the backyard. As a corner house, additional side windows bring in extra natural light. A wood-burning stove adds cozy warmth to the space. At the rear, you’ll find the stylish open kitchen equipped with built-in appliances and a cooking island. The kitchen also has direct access to the garden, which is bordered by the garage.
First floor: This level offers three bedrooms and a bathroom fitted with a bathtub, shower, and toilet. All rooms are accessible via the landing. The large bedroom at the rear has French doors opening onto the balcony. A built-in wardrobe is situated between the two main bedrooms.
Attic floor: The attic level comprises two additional bedrooms—one at the front and one at the rear. A second bathroom is located in the middle. The attic is accessible via a fixed staircase.
There is air conditioning on all floors
FEATURES:
-Living area: 131 m² (measured according to NEN2580);
-Spacious 125 m² garden due to corner location;
-Detached garage of almost 20m² with private driveway;
-5 bedrooms;
-2 bathrooms;
-3 toilets;
-Beautiful unobstructed views, located next to a wooded area;
-Fully equipped kitchen with cooking island;
-Garden and balcony facing southwest;
-Oak flooring throughout the house;
-Double glazing;
-AC on all floors;
-Wood-burning stove;
-Mechanical ventilation;
-Transfer in consultation.
DISCLAIMER
This information has been compiled by us with the utmost care. However, we do not accept any liability for any incompleteness, inaccuracies, or otherwise, nor for the consequences thereof. All specified measurements and surface areas are indicative. The buyer has a duty to investigate all matters of importance to him or her. With regard to this property, the real estate agent acts as an advisor to the seller. We recommend that you engage a qualified (NVM) real estate agent to assist you with the purchasing process. If you have specific requirements regarding the property, we advise you to communicate these in a timely manner to your purchasing agent and to carry out (or have carried out) your own investigation. If you do not engage a professional representative, you are deemed legally competent to oversee all matters that may be of importance. The General Consumer Conditions of the NVM apply.