**Please find the English translation below**
Ben je op zoek naar een duurzame woning op een toplocatie aan het IJ met eigen parkeerplek? Dan is Hellingstraat 44 op het NDSM-terrein misschien wel perfect voor jou!
Dit in 2020 gebouwde hoekappartement is circa 85 m² met een plafondhoogte van bijna 3 meter. De ramen van vloer-tot-plafond creëren een moderne leefruimte met veel licht en een fantastisch uitzicht over het IJ in twee richtingen. Er zijn 2 ruime slaapkamers met voldoende opbergruimte, een moderne open woonruimte/keuken en een goed uitgeruste badkamer met inloopdouche. Aan de woonkamer grenst een zonnig balkon op het Zuidwesten, gelegen aan de voorkant van het gebouw, met uitzicht aan zowel de linker- als rechterkant van het IJ.
In de prijs is een parkeerplaats inbegrepen, gelegen in de beveiligde parkeergarage, met geautomatiseerde toegang via een app. In het onderste deel van het complex bevindt zich een eigen berging en toegang tot de beveiligde fiets- en scooterstalling.
Benieuwd? Bel ons om een bezichtiging in te plannen; een van onze makelaars leidt je graag rond!
LOCATIE:
Het appartement bevindt zich in het Pontkade-gebouw op het NDSM-terrein, tegenover de veerboten naar Centraal Station en Pontsteiger. Het gebouw ligt in een creatieve omgeving en gedurende het hele jaar zijn er verschillende leuke festivals in de buurt te vinden. Voor heerlijke eetgelegenheden kun je terecht bij o.a. Pllek, IJver, de IJ-kantine, Loetje aan ’t IJ en Fred’s Kitchen. Binnen het complex bevinden zich supermarkt Albert Heijn, bakkerij Bbrood en sportschool TrainMore. Op loopafstand vind je ook een Hema-winkel, Bagels & Beans, een apotheek en gezondheidscentra en tandartsen. Op 5 minuten loopafstand biedt het NDSM-terrein het Straat Museum, vele ambachtelijke locaties en muziekevenementen in de zomermaanden.
Met de auto bereik je binnen enkele minuten de ringweg A10. Het openbaar vervoer is ook goed geregeld: de NDSM-veerpont stopt bijna voor de deur en brengt je binnen 15 minuten naar Amsterdam-Centraal of naar Pontsteiger in slechts 5 minuten. Tevens zijn er diverse buslijnen richting Zaandam, Zaanse Schans of in de tegenovergestelde richting naar het winkelcentrum Mosplein met als eindbestemming Amsterdam-Centraal. De bushalte ligt op 7 minuten loopafstand.
Natuurliefhebber? Binnen 20 minuten fietsen bereik je het natuurgebied en recreatiegebied Het Twiske of het landelijke gebied van Waterland, waar je je kunt onderdompelen in rust en prachtige natuur. Kortom, in Amsterdam – Noord combineer je het beste van twee werelden.
INDELING:
Begane grond, beveiligde gemeenschappelijke ingang met videofoon en BringMe-boxen.
Entree op de 4e verdieping (dichtbij trap en lift): ruime gang naar alle woonruimtes, met kasten voor nutsvoorzieningen, Brink ventilatie-unit, wasmachine en droger.
Ruime moderne badkamer met inloopdouche, groot wastafelmeubel en opbergkasten/lades. Een apart toilet en kleine wastafel zijn naast de badkamer geplaatst.
Hoofdslaapkamer: biedt ruimte voor een extra groot tweepersoonsbed, opbergruimte en een thuiskantoor. De tweede slaapkamer bevindt zich naast de hoofdslaapkamer. Beide slaapkamers hebben elektrisch bediende buitenzonwering.
Lichte woonkamer met open keuken/eet-/werkruimte. De hoekligging zorgt voor veel lichtinval via de ramen, allemaal voorzien van geautomatiseerde buitenzonwering. Aan de voor- en zijkant heb je veranderend uitzicht terwijl je door de kamer beweegt. Moderne keuken op maat gemaakt met een schiereiland met veel opbergruimte, evenals een strakke NEFF-oven, inductiekookplaat, koel-/vriescombinatie en vaatwasser. Ruim duurzaam composiet werkblad. Dubbele deuren aan de voorkant van de kamer leiden naar het balkon (zuidwest) met ruimte voor een zitje en de mogelijkheid om de zonsondergang over het IJ te bekijken.
De woning heeft een hoogwaardige tegelvloer met vloerverwarming, ramen van vloer-tot-plafond en 3 meter hoge plafonds door het hele appartement.
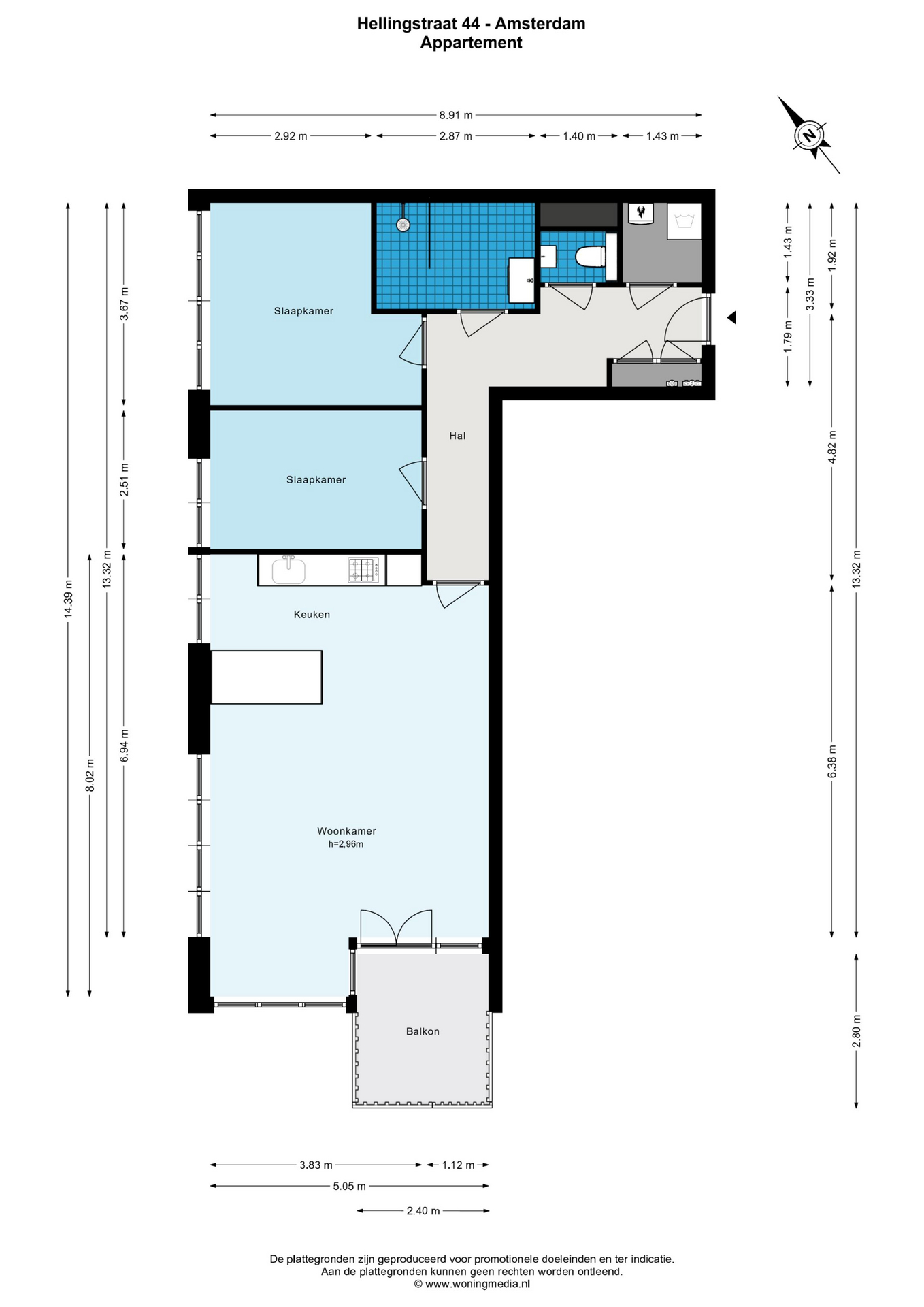
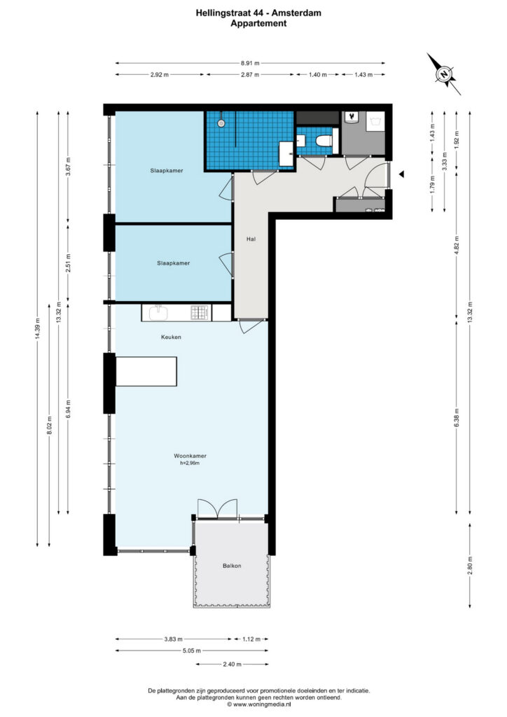
Voor de plattegrond van het appartement willen we je graag doorverwijzen naar de beschikbare plattegronden in zowel 2D als 3D, te vinden onder de sectie “plattegrond”.
VVE:
Het gebouw is in 2017 gesplitst in 103 appartementsrechten. De vereniging van eigenaren wordt professioneel beheerd door Munnik Vve Beheer. De servicekosten bedragen thans € 222,62 per maand (€ 189,88 voor het appartement + € 32,74 voor de parkeerplaats).
ERFPACHT:
De woning is gelegen op grond van de gemeente Amsterdam, welke in erfpacht is uitgegeven. Voor het gebruik van deze grond betaal je als eigenaar een vergoeding.
De jaarlijkse vergoeding bedraagt € 1.695,25 en geldt als aftrekpost voor de inkomstenbelasting. Deze vergoeding wordt jaarlijks geïndexeerd. Het huidige tijdvak loopt tot 15-08-2067.
DUURZAAMHEID:
Deze woning is zeer energiezuinig, het is volledig geïsoleerd, beschikt over stadsverwarming, vloerverwarming, een warmte terugwin installatie en op het dak van het complex liggen zonnepanelen. Het energielabel is A.
BIJZONDERHEDEN:
-Bouwjaar 2020
-Energielabel A
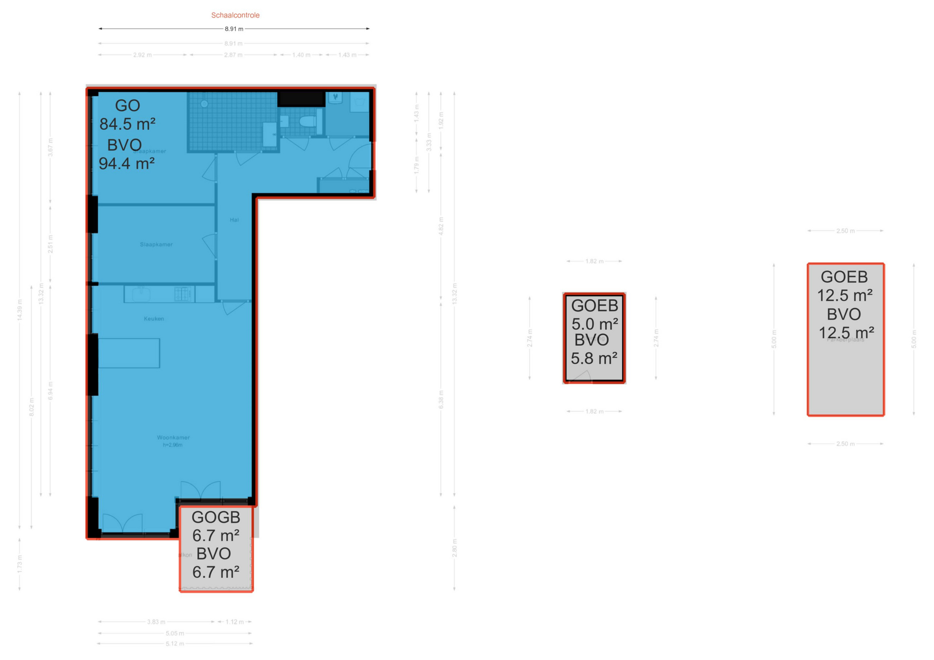
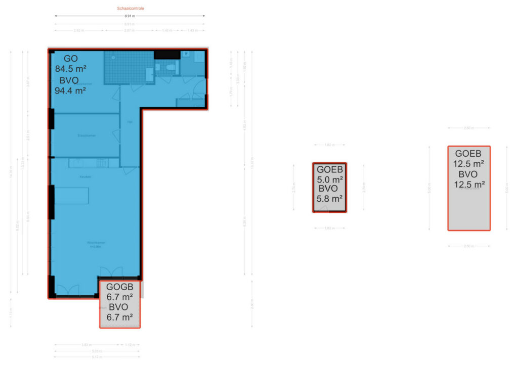
-Woonoppervlakte (NEN2580) 84,50 m²
-Eigen parkeerplaats en berging onder in het complex
-Gezonde VVE, Servicekosten € 222,62 per maand voor woning en parkeerplaats
-Het complex beschikt over een gemeenschappelijke binnentuin
-Erfpacht canon van € 1.695,25 per jaar t/m 15-08-2067, deze canon wordt jaarlijks geïndexeerd
-Voor de op te nemen clausules verwijzen we je door naar het formulier “op te nemen clausules in de koopakte”
-Oplevering in overleg
Deze informatie is met de nodige zorgvuldigheid samengesteld. Wij aanvaarden echter geen enkele aansprakelijkheid voor enige onvolledigheid, onjuistheid of anderszins, dan wel de gevolgen daarvan.
Alle opgegeven maten en oppervlakten zijn indicatief. Koper heeft zijn eigen onderzoeksplicht naar alle zaken, die voor hem van belang zijn. Met betrekking tot deze woning is ons kantoor de makelaar van verkoper. Wij adviseren u een NVM/MVA Makelaar in te schakelen, die u met zijn deskundigheid zal bijstaan in het aankoopproces. Indien u geen professionele begeleiding wenst in te schakelen, acht u zich volgens de wet deskundig genoeg om alle zaken, die van belang zijn, te kunnen overzien. De Algemene Consumentenvoorwaarden van de NVM zijn van toepassing.
==================================English=================================
Are you looking for a sustainable home in a prime location by the IJ with its own parking spot? Then Hellingstraat 44 at the NDSM site might just be perfect for you!
This corner apartment (2020) of approximately 85 m² has a ceiling height of nearly 3 meters. Floor-to-ceiling windows create a modern living space with great light and a fantastic view over the IJ in two directions. There are 2 generously sized double bedrooms with ample space for storage, a modern open plan living space/kitchen, and a well appointed bathroom with walk in shower. Attached to the living area is a sunny southwest-facing balcony situated at the front of the building, offering views on both the left and right sides of the IJ. Included in the total price is a parking space located in the secure parking area, with automated access by App. A personal storage unit is in the lower part of the residential complex plus shared access to secure bicycle and scooter storage.
Curious? Call us to schedule a viewing; one of our real estate agents will gladly show you around!
LOCATION:
The apartment is situated in the Pontkade building on the NDSM site, opposite the ferries to Centraal Station and Pontsteiger. The building is in a creative environment, and throughout the year, you can find several enjoyable festivals nearby. For delightful dining options, you can visit places like Pllek, IJver, the IJ-kantine, Loetje aan ’t IJ, and Fred’s Kitchen. Within the complex, there’s an Albert Heijn supermarket, Bbrood bakery, and TrainMore gym. Within walking distance, you’ll also find a Hema store, Bagels & Beans, a pharmacy, and health centres and dentists. Within 5 minutes walk, NDSM is home to Straat Museum, many artisan craft areas, and music events in the summer months.
By car, you can reach the A10 highway within a few minutes. Public transportation is also convenient: NDSM ferry almost on your doorstep creates access to Amsterdam Centraal within 15 minutes, with various bus lines heading towards Zaandam and Zaanse Schans, or in the opposite direction towards the Mosplein shopping centre,and onwards to Centraal. The bus stop is a 7-minute walk away.
Nature enthusiast? Within 20 minutes by bike, you can reach the Het Twiske nature and recreational area or the rural area of Waterland, where you can immerse yourself in tranquility and beautiful nature. In essence, in the northern part of Amsterdam, you combine the best of both worlds.
LAYOUT:
First floor: secure communal entrance with videophone and BringMe boxes
Entrance on the 4th floor: spacious corridor leading to living spaces, with cupboards for utilities, Brink ventilation unit, washing machine and dryer. Spacious modern bathroom with walk in shower, large sink unit and storage cabinets/ drawers. A separate toilet and small hand sink are located next to the bathroom
Master Bedroom: accommodates a superking sized bed, storage and a work from home space. A second double bedroom is next to the master. Both bedrooms have powered external sun blinds
Airy open plan living/kitchen/dining/work space. Corner location floods the room with light from the windows, all fitted with automated external sun blinds, to the front and the side providing views that change as you move through the room.Modern kitchen customised to include an additional island/peninsula as well as an ultra slick NEFF oven with a hide and slide door, induction hob, fridge/freezer and dishwasher. Generous durable composite worktop area, and spacious storage. Double doors at the front of the room lead to the balcony with space for al fresco dining and entertaining, and watching the sunset over the IJ.
The apartment has high quality tiled flooring with underfloor heating, floor-to-ceiling windows, and 3m ceilings throughout
For the apartment layout, we’d like to direct you to the floor plans available in both 2D and 3D under the “floor plan” section.
GROUND LEASE:
The property is located on land owned by the municipality of Amsterdam, which is leased out. As the owner, you pay an annual fee ( erfpacht) for using this land.
The annual fee amounts to € 1.695,25 per year and is deductible for income tax purposes. This annual fee is subject to annual indexation. The current period runs until 15-08-2067.
SUSTAINABILITY:
This home is highly energy-efficient, fully insulated, equipped with district heating, feeding the under floor heating and hot water system and an air replacement system with heat recovery. The development is fitted with solar panels. The apartment has an energy label of A.
DETAILS:
-Year of construction: 2020
-Energy label: A
-Living area (NEN2580): 84,50 m²
-Private parking space and storage unit in the lower part of the complex
-Healthy VvE (Association of Owners) comprising 103 apartment rights, of which 96 are residential units professionally managed by Munnik VvE management
-Service costs: € 222,62 per month (apartment + parking place)
-The complex features a communal courtyard
-Ground lease fee of € 1.695,25 per year until 15-08-2067, annually indexed
-For clauses to be included, please refer to the “clauses to be included in the purchase agreement” form
-Delivery in consultation
This information has been compiled with due care. However, we accept no liability for any incompleteness, inaccuracy or otherwise, or the consequences thereof.
All specified sizes and surfaces are indicative. The buyer has his own obligation to investigate all matters that are important to him. With regard to this property, our office is the seller’s agent. We advise you to engage an NVM/MVA real estate agent, who will assist you with his expertise in the purchasing process. If you do not wish to engage professional guidance, you consider yourself expert enough according to the law to be able to oversee all matters that are important. The General Consumer Terms and Conditions of the NVM apply.