**Please find the English translation below**
In het hart van de grachtengordel, op een van de mooiste en meest rustige gedeelten van de Keizersgracht, bieden wij dit prachtig gerenoveerde, lichte en sfeervolle 3-kamerappartement van ca. 94 m² aan. De woning is gelegen in een statig Rijksmonument uit 1628 en combineert op unieke wijze historische charme met modern wooncomfort. Dankzij de drie grote raampartijen aan de grachtzijde geniet je hier het hele jaar door van prachtig licht en een schitterend uitzicht over de Keizersgracht.
Met twee slaapkamers, een royale woonkamer en een stijlvolle open keuken is dit appartement perfect voor wie luxe, comfort en karakter wil combineren op een iconische locatie in het centrum van Amsterdam.
Nieuwsgierig geworden? Bel ons voor het maken van een afspraak, één van onze makelaars leidt je graag rond!
LOCATIE
Het appartement is gelegen op een toplocatie in het historische centrum van Amsterdam, tussen de Brouwersgracht en de Prinsenstraat. De Noordermarkt, met de geliefde biologische markt op zaterdag, ligt op loopafstand. Even verderop vind je de levendige Jordaan met talloze cafés, restaurants, galeries en boetiekjes.
Voor de dagelijkse boodschappen kun je terecht in de Haarlemmerstraat en Haarlemmerdijk, bekend om hun brede aanbod van speciaalzaken, supermarkten en horecagelegenheden.
De bereikbaarheid is uitstekend: het Centraal Station ligt op loopafstand, evenals meerdere tram- en buslijnen richting alle delen van de stad. Met de fiets ben je binnen enkele minuten bij de pont naar Noord en alle nabijgelegen stadsdelen zijn eenvoudig bereikbaar. De ligging ten opzichte van de Ring A10 is gunstig, waardoor je snel op de belangrijkste uitvalswegen richting o.a. Schiphol, Utrecht en Den Haag zit.
INDELING
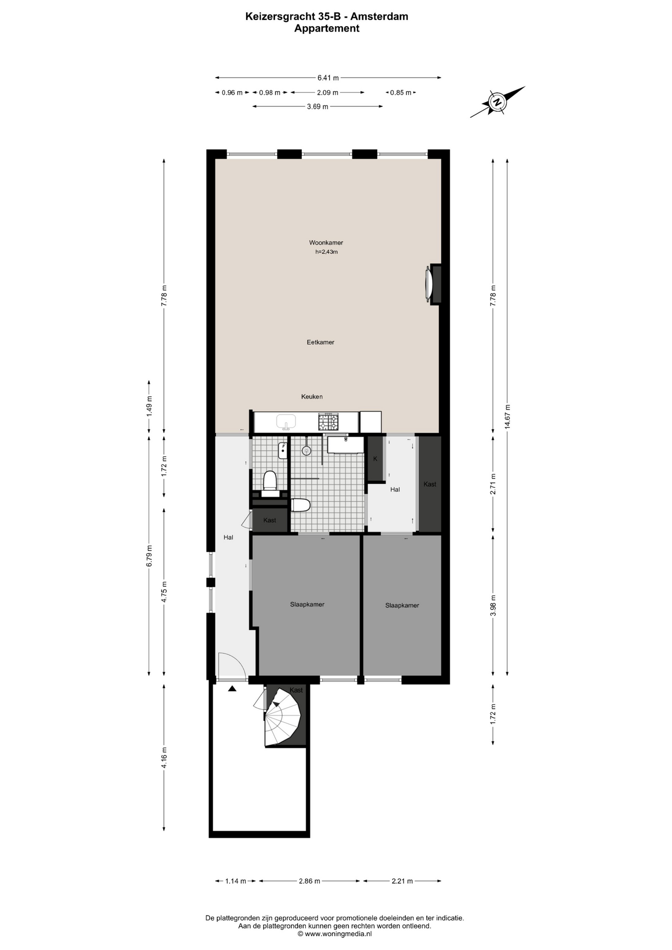
Eerste verdieping:
Via de gezamenlijke entree bereik je de woning. De karakteristieke hal strekt zich uit over de gehele lengte van het appartement en biedt toegang tot alle vertrekken. Hier bevinden zich het separate toilet met fontein en de wasruimte.
De royale woonkamer van ca. 40 m² is een heerlijke lichte ruimte met drie grote ramen aan de grachtzijde. Door de grote hoeveelheid licht en het vrije uitzicht is dit een bijzondere plek om te wonen. De moderne open keuken sluit hier naadloos op aan en is voorzien van diverse inbouwapparatuur.
Naast de keuken bevindt zich een tweede hal met praktische inbouwkasten die toegang biedt tot de badkamer en beide slaapkamers.
Aan de achterzijde ligt de eerste slaapkamer, die direct toegang geeft tot de badkamer. De badkamer is uitgerust met een inloopdouche, wastafelmeubel, vloerverwarming en een tweede toilet.
De tweede slaapkamer ligt eveneens aan de achterzijde en is ideaal te gebruiken als werk-, logeer- of hobbykamer.
Voor de indeling verwijzen we je tevens graag door naar de plattegronden, deze zijn te bekijken in 2D en in 3D en zijn te vinden onder het kopje “plattegrond”.
DUURZAAMHEID
De woning wordt verwarmd middels een gezamenlijke CV ketel, deze is in 2025 vervangen. Het warme water komt hier ook vandaan. Gezien de monumentenstatus is een energielabel niet nodig.
VERENIGING VAN EIGENAREN (VvE)
Het pand is in 1974 gesplitst in zes appartementsrechten en in 2015 voor de laatste keer gewijzigd (nu 7 appartementsrechten). De VvE wordt in eigen beheer gevoerd door de leden. De maandelijkse bijdrage bedraagt € 287, inclusief gas.
BIJZONDERHEDEN
– Bouwjaar 1628
– Woonoppervlakte (NEN2580) ca. 94,3 m²
– Drie grote raampartijen met uitzicht op de Keizersgracht
– Gelegen op eigen grond
– Rijksmonument (monumentnummer 2224)
– Historische details met modern wooncomfort
– VvE kosten € 287 per maand, inclusief gas
– Gezonde en goed georganiseerde VvE, administratie in eigen beheer
– Vloerverwarming in de badkamer
– Unieke ligging aan één van de mooiste delen van de Keizersgracht
– Oplevering mogelijk vanaf eind februari 2026
– Voor de op te nemen clausules verwijzen we je door naar het formulier “op te nemen clausules in de koopakte”
Deze informatie is met de nodige zorgvuldigheid samengesteld. Wij aanvaarden echter geen enkele aansprakelijkheid voor enige onvolledigheid, onjuistheid of anderszins, dan wel de gevolgen daarvan.
Alle opgegeven maten en oppervlakten zijn indicatief. Koper heeft zijn eigen onderzoeksplicht naar alle zaken, die voor hem van belang zijn. Met betrekking tot deze woning is ons kantoor de makelaar van verkoper. Wij adviseren u een NVM/MVA Makelaar in te schakelen, die u met zijn deskundigheid zal bijstaan in het aankoopproces. Indien u geen professionele begeleiding wenst in te schakelen, acht u zich volgens de wet deskundig genoeg om alle zaken, die van belang zijn, te kunnen overzien. De Algemene Consumentenvoorwaarden van de NVM zijn van toepassing.
==================================English=================================
In the heart of the canal district, on one of the most beautiful and peaceful sections of the Keizersgracht, we offer this beautifully renovated, bright and charming 3-room apartment of approx. 94 m². The property is located in a stately national monument dating from 1628 and uniquely combines historical charm with modern living comfort. Thanks to the three large windows facing the canal, you can enjoy beautiful light and stunning views over the Keizersgracht throughout the entire year.
With two bedrooms, a spacious living room and a stylish open kitchen, this apartment is perfect for those who want to combine luxury, comfort and character in an iconic location in the centre of Amsterdam.
Curious to see more? Call us to schedule a viewing, one of our agents will be happy to show you around!
LOCATION
The apartment is situated in a prime location in the historic centre of Amsterdam, between the Brouwersgracht and the Prinsenstraat. The Noordermarkt, with its popular organic market on Saturdays, is within walking distance. A little further on you will find the lively Jordaan district with its many cafés, restaurants, galleries and boutiques.
For daily shopping you can visit the Haarlemmerstraat and Haarlemmerdijk, known for their wide range of specialty shops, supermarkets and dining options.
Accessibility is excellent: Amsterdam Central Station is within walking distance, as well as several tram and bus lines connecting to all parts of the city. By bike you can reach the ferry to Noord within minutes and all nearby neighbourhoods are easily accessible. The location in relation to the A10 Ring Road is convenient, allowing quick access to major routes towards Schiphol, Utrecht and The Hague.
LAYOUT
First floor:
Through the communal entrance you reach the apartment. The characteristic hallway runs the full length of the apartment and provides access to all rooms. Here you will find the separate toilet with washbasin and the laundry room.
The spacious living room of approx. 40 m² is a wonderfully bright space with three large windows overlooking the canal. Due to the abundance of natural light and the open view, this is a truly special place to live. The modern open kitchen seamlessly adjoins the living room and is equipped with various built-in appliances.
Next to the kitchen is a second hallway with practical built-in cupboards providing access to the bathroom and both bedrooms.
At the rear is the first bedroom, which has direct access to the bathroom. The bathroom is equipped with a walk-in shower, washbasin unit, underfloor heating and a second toilet.
The second bedroom is also located at the rear and is ideal as a study, guest room or hobby room.
For the layout, please also refer to the floor plans, which can be viewed in 2D and 3D under the “floor plan” section.
SUSTAINABILITY
The property is heated by a communal central heating system, which was replaced in 2025. The hot water supply also comes from this system. Due to the building’s listed status, an energy label is not required.
OWNERS’ ASSOCIATION (VvE)
The building was subdivided in 1974 into six apartment rights and last amended in 2015 (now seven apartment rights). The VvE is self-managed by its members. The monthly contribution is € 287, including gas.
SPECIFICATIONS
– Built in 1628
– Living area (NEN2580) approx. 94.3 m²
– Three large windows with views over the Keizersgracht
– Freehold land
– National monument (monument number 2224)
– Historical details combined with modern living comfort
– VvE contribution € 287 per month, including gas
– Healthy and well-organised VvE, administration managed internally
– Underfloor heating in the bathroom
– Unique location on one of the most beautiful stretches of the Keizersgracht
– Delivery possible from the end of February 2026
– For applicable clauses, please refer to the form “clauses to be included in the purchase agreement”
This information has been compiled with the utmost care. However, we accept no liability for any incompleteness, inaccuracies or consequences thereof.
All stated measurements and surfaces are indicative. The buyer has a duty to investigate all matters that may be relevant to them. With regard to this property, our office is acting on behalf of the seller. We advise you to engage an NVM/MVA real estate agent who can assist you with professional guidance during the purchase process. If you choose not to engage professional representation, you declare yourself sufficiently knowledgeable by law to oversee all matters relevant to the purchase. The General Consumer Conditions of the NVM apply.