**Please find the English translation below**
Sfeervol appartement gelegen in een autoluwe en kindvriendelijke straat in de gezellige Vogelbuurt in Amsterdam-Noord. Deze charmante woning uit 1920 is de afgelopen jaren met veel liefde en zorg onderhouden.
De gehele buurt heeft recent een verduurzamingsslag ondergaan, waaronder nieuwe houten kozijnen aan de voorzijde, nieuwe ramen en schilderwerk aan zowel de voor- als achterzijde. Dankzij de afgekochte erfpacht, lage energielasten en lage VvE-kosten woon je hier met uitzonderlijk lage vaste lasten.
LOCATIE
De woning ligt in een rustige straat met voornamelijk bestemmingsverkeer, ideaal voor wie comfortabel en veilig wil wonen, ook met kinderen. De buurt staat bekend als gemoedelijk en betrokken, met alle dagelijkse voorzieningen binnen handbereik.
Op circa vijf minuten lopen of fietsen vind je onder meer een groenteboer, snackbar, Dirk van den Broek en de Jumbo Foodmarkt. Ook qua horeca en ontspanning zit je hier uitstekend. Denk aan De Goudfazant, Café Het Sluisje, Hangar, Skatecafé en De Klaproos.
Amsterdam-Noord is volop in ontwikkeling en om die reden is er genoeg te beleven. Voor cultuur en sport zijn onder meer het Eye Filmmuseum, de Monk boulderhal en diverse sportverenigingen. Op het nabijgelegen NDSM-terrein zijn het hele jaar door muzikale en culturele evenementen.
Op zoek naar rust en groen? Je wandelt zo naar het Vliegenbos of het Noorderpark. Stap je op de fiets, dan ben je binnen enkele minuten in Waterland richting Durgerdam of het Twiske.
Ook de bereikbaarheid is uitstekend. Binnen vijf minuten sta je bij de pont richting Centraal Station of Amsterdam Oost. De Noord-Zuidlijn ligt op loopafstand en er zijn diverse bushaltes in de buurt. Met de auto bereik je binnen enkele minuten de A10.
Een bewonersparkeervergunning kost € 40,02 per 6 maanden. Een tweede bewonersparkeervergunning kost € 100,06 per 6 maanden.
INDELING
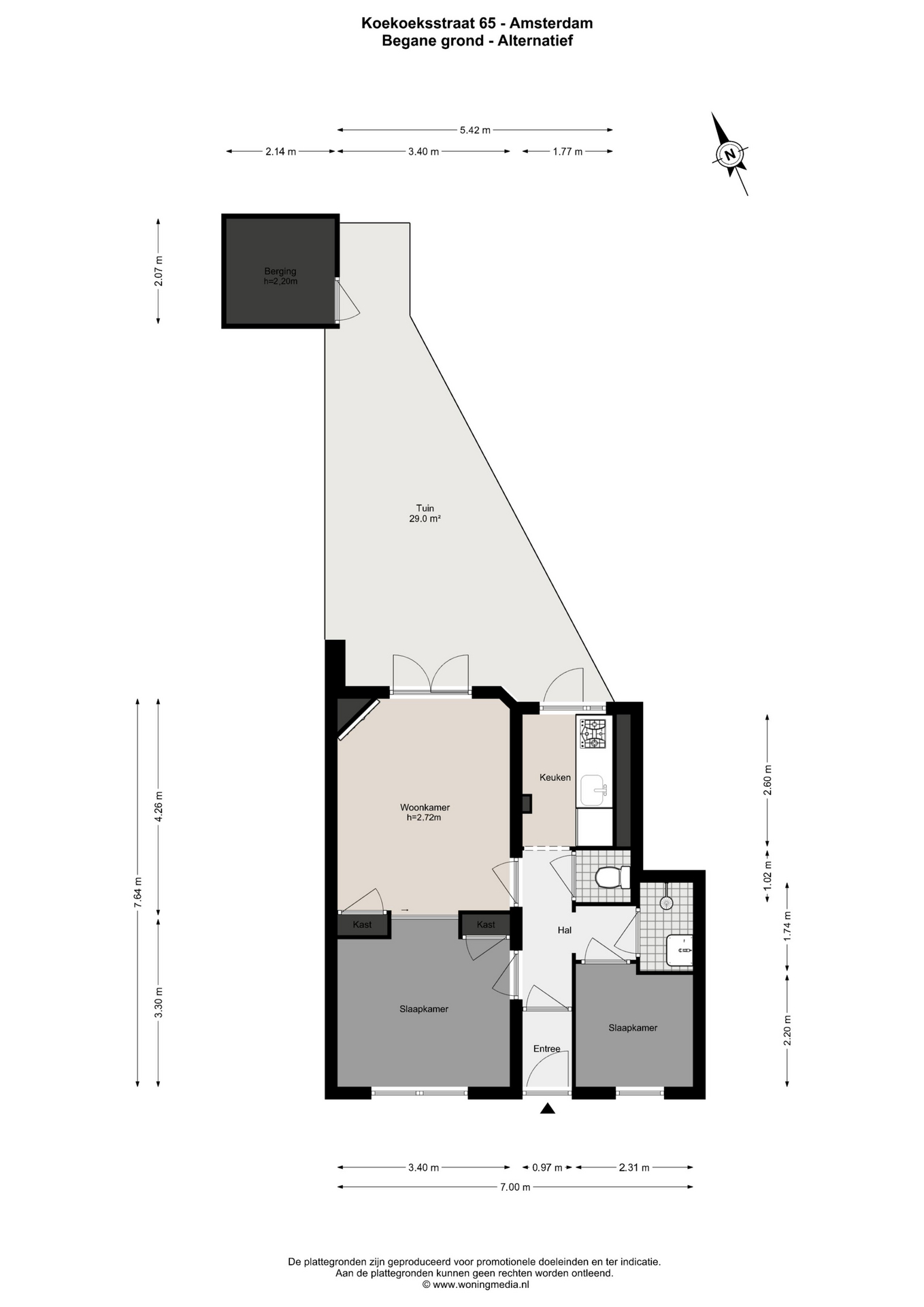
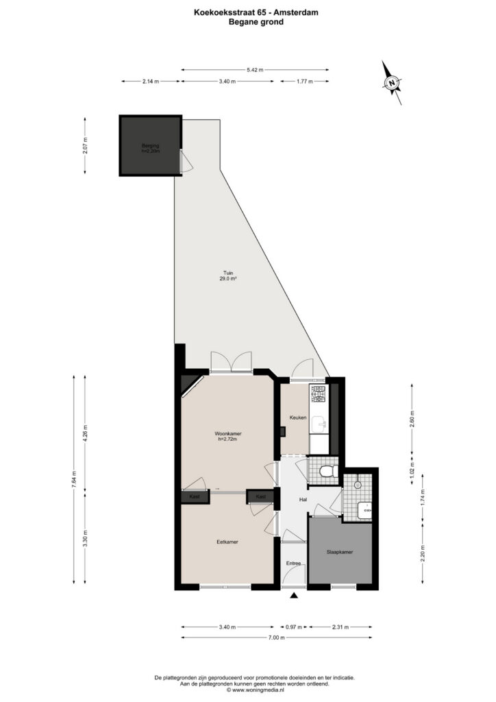
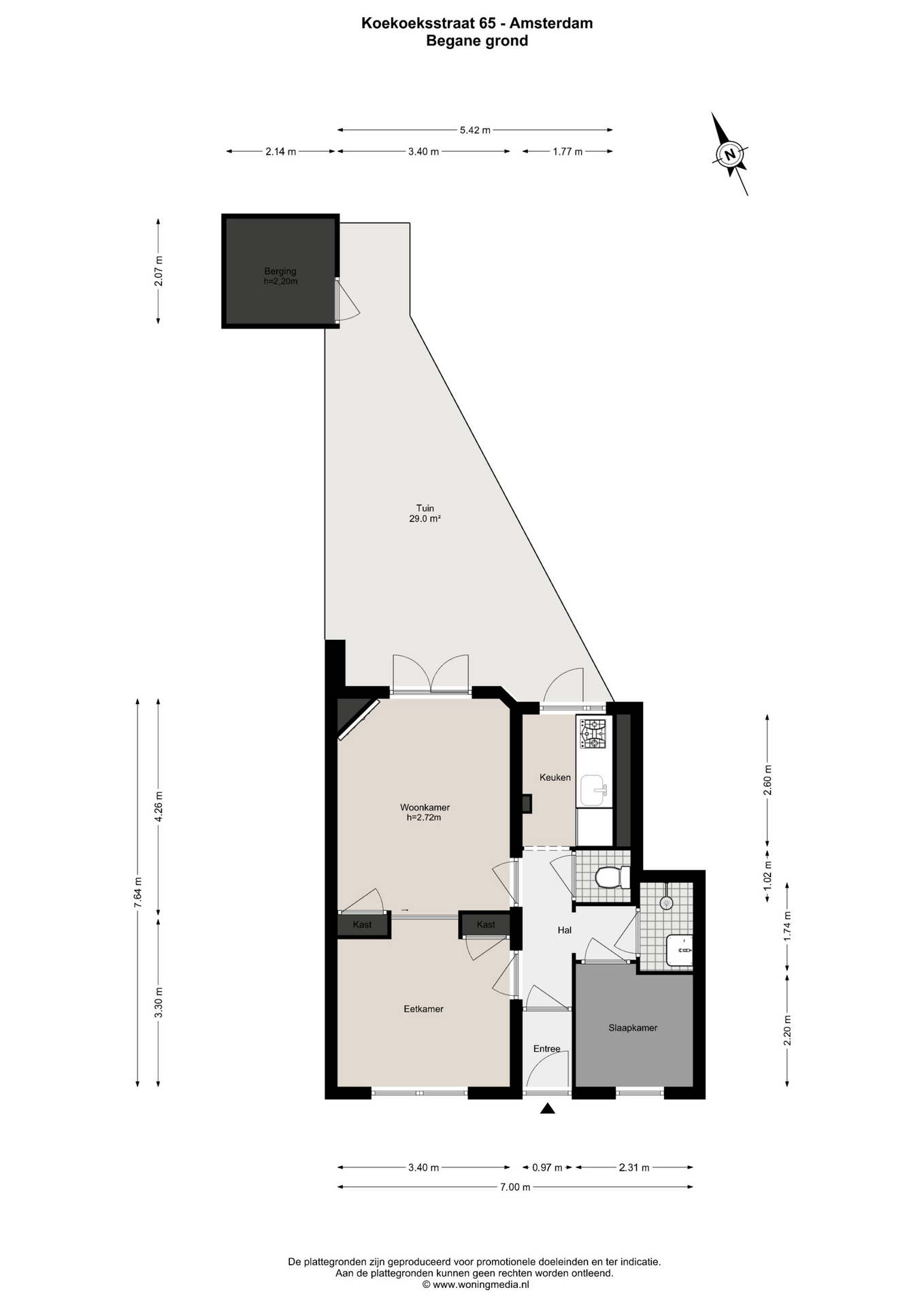
Via de voordeur betreed je de hal, die toegang biedt tot alle vertrekken van de woning.
Aan de rechtervoorzijde van de woning bevindt zich de slaapkamer met ruimte voor een tweepersoonsbed. Aangrenzend vind je de badkamer met inloopdouche en wastafel. In het midden van de hal bevindt zich het separate toilet.
Aan de achterzijde ligt de moderne keuken, voorzien van inbouwapparatuur zoals een oven, inbouw was-droogcombinatie, vaatwasser en kookplaat. Door de slimme indeling is er voldoende werkruimte om uitgebreid te koken. Vanuit de keuken heb je toegang tot de tuin.
Aan de linkerzijde van de hal kom je in de eet- en woonkamer. Deze ruimtes worden gescheiden door originele houten glas-in-lood schuifdeuren, wat zorgt voor een prachtige, karakteristieke uitstraling. Dankzij ramen aan zowel de voor- als achterzijde geniet je hier het hele jaar door van veel natuurlijk licht. De huidige eetruimte kan ook worden gebruikt als 2e slaapkamer.
In de woonkamer bevindt zich een handige inbouwkast voor extra bergruimte. Het houtwerk, de originele schouw en de glas-in-lood schuifdeuren zorgen voor een warme en sfeervolle ambiance. Via twee openslaande deuren bereik je de op het noorden gelegen tuin. De tuin beschikt over een extra kast en een schuur met elektra.
Aan de voorzijde van de woning is tevens voldoende ruimte voor een bank, zodat je zowel in de ochtend als in de avond volop van de zon kunt genieten, perfect voor de zomerse dagen.
Voor de exacte indeling verwijzen wij je graag naar de plattegronden. Deze zijn beschikbaar in zowel 2D als 3D en te vinden onder het kopje “plattegrond”.
DUURZAAMHEID
De woning is voorzien van nieuwe houten kozijnen aan de voorzijde, HR++-beglazing en recent uitgevoerd schilderwerk aan zowel de voor- als achterzijde. In 2025 zijn twee zonnepanelen geplaatst, die in eigendom zijn.
De cv-ketel betreft een Remeha Tzerra uit 2015. De keuken en badkamer zijn eveneens vernieuwd in 2015. De woning beschikt over energielabel D.
VERENIGING VAN EIGENAREN
De woning maakt deel uit van de VvE Koekoeksplein en is in 2011 gesplitst in 211 appartementsrechten. Het onderhavige appartementsrecht omvat een 53/18.813e aandeel in de gemeenschap.
De VvE wordt professioneel beheerd door Arlanda VvE Beheer en staat bekend als financieel gezond. De servicekosten bedragen momenteel € 87,60 per maand.
ERFPACHT
De woning is gelegen op grond van de gemeente Amsterdam, uitgegeven in erfpacht. De jaarlijkse canon is eeuwig durend afgekocht.
BIJZONDERHEDEN
• Woonoppervlakte (NEN2580) 47,70m²
• Bouwjaar 1920
• Servicekosten €87,60 per maand
• Energielabel D
• 2 zonnepanelen uit 2025
• Erfpacht eeuwigdurend afgekocht
• Parkeervergunning € 40,02 per 6 maanden, tweede vergunning € 100,06 per 6 maanden
• Lage vaste lasten
• Voor de op te nemen clausules verwijzen wij naar het formulier “op te nemen clausules in de koopakte”
• Oplevering in overleg, kan op korte termijn
** De voordeur wordt binnenkort door de VvE in een groene kleur geschilderd, passend bij de uitstraling van de buurt; een impressie foto is te zien in de fotoreeks **
Deze informatie is met zorg samengesteld. Wij aanvaarden echter geen aansprakelijkheid voor eventuele onvolledigheden, onjuistheden of de gevolgen daarvan.
Alle opgegeven maten en oppervlakten zijn indicatief. De koper heeft een eigen onderzoeksplicht naar alle zaken die voor hem van belang zijn. Met betrekking tot deze woning is ons kantoor de makelaar van de verkoper. Wij adviseren je een NVM- of MVA-makelaar in te schakelen die je deskundig kan begeleiden bij het aankoopproces. Indien je geen professionele begeleiding inschakelt, acht je jezelf volgens de wet deskundig genoeg om alle relevante zaken te kunnen overzien. De Algemene Consumentenvoorwaarden van de NVM zijn van toepassing.
=====English=====
Charming apartment located on a near car-free and child-friendly street in the cozy Vogelbuurt in Amsterdam-Noord. This charming 1920s home has been lovingly maintained over the years.
The entire neighborhood has recently undergone sustainability improvements, including new wooden window frames at the front, new windows, and fresh paintwork on both the front and rear façades. Thanks to the perpetual ground lease, low energy costs, and low HOA fees, you can enjoy exceptionally low fixed expenses here.
LOCATION
The property is situated on a quiet street with mainly local traffic, ideal for comfortable and safe living, even with children. The neighborhood is known for its friendly and involved community, with all daily amenities within easy reach.
Within a five-minute walk or bike ride, you will find a greengrocer, snack bar, Dirk van den Broek, and Jumbo Foodmarkt. The area also offers plenty of dining and leisure options, such as De Goudfazant, Café Het Sluisje, Hangar, Skatecafé, and De Klaproos.
Amsterdam-Noord is a vibrant and developing area, offering plenty to do. For culture and sports, there is the Eye Filmmuseum, Monk bouldering gym, and various sports clubs. The nearby NDSM area hosts musical and cultural events throughout the year.
Looking for peace and greenery? You can take a walk to Vliegenbos or Noorderpark. By bike, you can reach Waterland, including Durgerdam or Het Twiske, within minutes.
Accessibility is excellent. Within five minutes, you reach the ferry to Centraal Station or Amsterdam Oost. The North-South metro line is within walking distance, and several bus stops are nearby. By car, the A10 highway is only minutes away.
A residents’ parking permit costs €40.02 per six months. A second permit costs €100.06 per six months.
LAYOUT
Through the front door, you enter the hallway, which provides access to all rooms.
At the front right of the property is the bedroom, spacious enough for a double bed. Adjacent is the bathroom with a walk-in shower and washbasin. In the middle of the hallway is the separate toilet.
At the rear is the modern kitchen, equipped with built-in appliances including an oven, washer-dryer combination, dishwasher, and stovetop. The layout provides ample workspace for cooking. From the kitchen, you have access to the garden.
On the left side of the hallway is the dining and living area. These spaces are separated by original wooden stained-glass sliding doors, creating a beautiful, characteristic atmosphere. With windows at both the front and rear, these rooms receive plenty of natural light throughout the year. The current dining area can also serve as a second bedroom.
The living room features a handy built-in closet for extra storage. The woodwork, original fireplace, and stained-glass doors create a warm and inviting ambiance. Two French doors open onto the north-facing garden, which includes an extra storage cabinet and a shed with electricity.
At the front of the property, there is also enough space for seating, allowing you to enjoy the sun in both the morning and evening—perfect for summer days.
For the exact layout, please refer to the 2D and 3D floor plans under the “floor plan” section.
SUSTAINABILITY
The property features new wooden window frames at the front, HR++ glazing, and recent paintwork on both the front and rear. In 2025, two solar panels were installed, owned outright.
The central heating system is a Remeha Tzerra from 2015. The kitchen and bathroom were also renovated in 2015. The property has an energy label A.
HOMEOWNERS’ ASSOCIATION
The apartment is part of VvE Koekoeksplein, which was divided into 211 apartment rights in 2011. This particular apartment represents a 53/18,813 share in the community.
The HOA is professionally managed by Arlanda VvE Beheer and is known to be financially healthy. Current service costs are €87.60 per month.
GROUND LEASE
The property is located on land owned by the municipality of Amsterdam, with a perpetual ground lease that has been bought off.
HIGHLIGHTS
•Living area (NEN2580) 47.70 m²
•Built in 1920
•Service costs €87.60 per month
•Energy label A
•2 solar panels from 2025
•Perpetual ground lease bought off
•Parking permit €40.02 per 6 months, second permit €100.06 per 6 months
•Low fixed costs
•For included clauses, please refer to the document “clauses to be included in the purchase deed”
•Delivery in consultation, possible on short notice
The front door will soon be painted green by the HOA to match the neighborhood’s look; an impression photo is included in the photo gallery
This information has been compiled with care; however, we accept no liability for any incompleteness, inaccuracies, or consequences thereof.
All stated dimensions and areas are indicative. Buyers are responsible for conducting their own research regarding any matters of importance. Our office acts as the seller’s broker for this property. We advise engaging an NVM- or MVA-certified broker for professional guidance during the purchase process. Without professional guidance, you are considered legally competent to oversee all relevant matters. The NVM General Consumer Conditions apply.