**Please find the English translation below**
Modern en energiezuinig stadsappartement op unieke locatie in Amsterdam!
In het hart van de historische binnenstad, maar toch verrassend rustig, ligt dit sfeervolle appartement aan een zijstraat van de Geldersekade. Dankzij de ligging in een autoluwe straat woon je in alle stilte, terwijl je binnen enkele minuten wandelen de Nieuwmarkt, de metro of Amsterdam Centraal bereikt. Een perfecte combinatie van rust en bereikbaarheid.
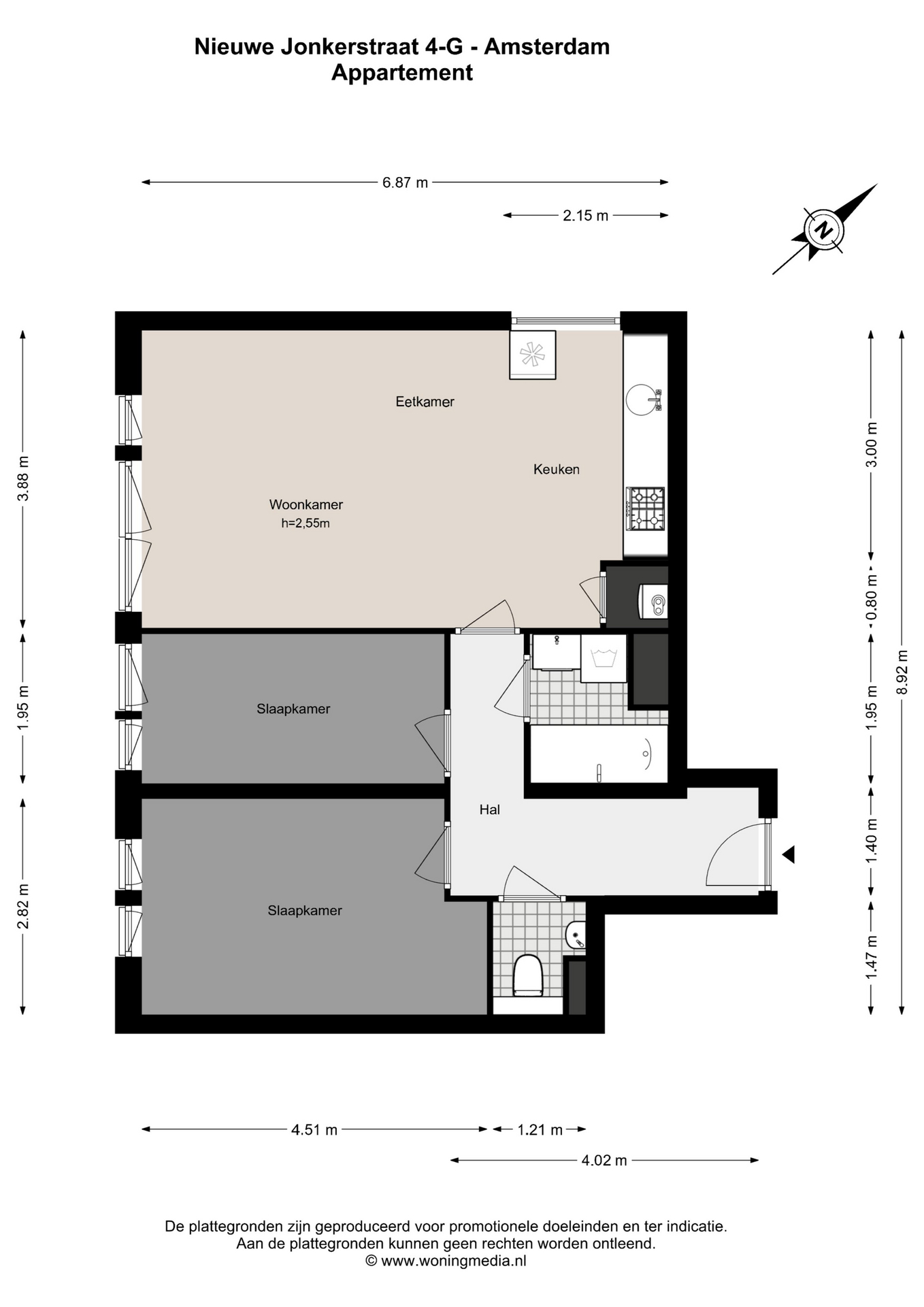
Dit lichte 3-kamer appartement op de derde verdieping beschikt over twee slaapkamers, een badkamer met ligbad, een apart toilet en een woonkamer met open keuken. Het gebouw is in 2009 gerealiseerd en daardoor volledig up-to-date en voorzien van moderne installaties.
INDELING:
Met de trap of lift kom je uit op de tweede verdieping. Binnenkomst is in de hal, waar meteen toegang is tot het separate toilet. Verderop in de gang liggen twee slaapkamers: een royale kamer van circa 12 m² met grote ramen en een tweede kamer van ongeveer 9 m². Tegenover deze kleinere kamer bevindt zich de badkamer, uitgerust met ligbad, douche, wastafelmeubel, verwarming en een aansluiting voor de wasmachine.
Aan het eind van de gang opent de deur naar de woonkamer met veel lichtinval en een moderne open keuken. De keuken is voorzien van een natuurstenen werkblad, diverse inbouwapparatuur en mechanische ventilatie. In de kast naast de keuken zijn de cv-ketel (2009) en het ventilatiesysteem weggewerkt. In de kelder van het complex bevindt zich nog een privéberging van ca. 3 m² – praktisch voor fietsen of extra opslag.
De woning is volledig voorzien van een bamboe vloer en dubbel HR++ glas.
OMGEVING:
Een toplocatie in het oudste stukje van Amsterdam: rustig wonen met alle stadse voorzieningen binnen handbereik. De Nieuwe Ridderstraat is uitsluitend toegankelijk voor bewoners, waardoor het een stille straat is midden in de levendige Lastage/Nieuwmarktbuurt. Restaurants, cafés en uitgaansgelegenheden liggen om de hoek, zoals aan de Zeedijk, de Binnen Bantammerstraat of direct op de Nieuwmarkt.
VERENINGING VAN EIGENAREN
Het complex telt 13 appartementen. De VvE is actief, er is een reservefonds aanwezig en de maandelijkse bijdrage bedraagt € 161,-.
BIJZONDERHEDEN:
-Woonoppervlakte: 62 m² (NEN2580 meetrapport aanwezig);
-Uitstekende ligging in de Lastage/Nieuwmarktbuurt;
-Eigen grond (geen erfpacht);
-Energielabel A;
-Complex met lift;
-Berging in de kelder;
-Twee slaapkamers;
-Actieve- en gezonde VvE;
-Servicekosten: € 161,- per maand;
-Oplevering in overleg.
Deze informatie is met de nodige zorgvuldigheid samengesteld. Wij aanvaarden echter geen enkele aansprakelijkheid voor enige onvolledigheid, onjuistheid of anderszins, dan wel de gevolgen daarvan. Alle opgegeven maten en oppervlakten zijn indicatief. Koper heeft zijn eigen onderzoeksplicht naar alle zaken, die voor hem van belang zijn. Met betrekking tot deze woning is ons kantoor de makelaar van verkoper. Wij adviseren u een NVM/MVA Makelaar in te schakelen, die u met zijn deskundigheid zal bijstaan in het aankoopproces. Indien u geen professionele begeleiding wenst in te schakelen, acht u zich volgens de wet deskundig genoeg om alle zaken, die van belang zijn, te kunnen overzien. De Algemene Consumentenvoorwaarden van de NVM zijn van toepassing.
==================================English=================================
Modern and energy-efficient city apartment in a unique location in Amsterdam!
In the heart of the historic city center, yet surprisingly quiet, you will find this charming apartment on a side street of the Geldersekade. Thanks to its location on a low-traffic street, you can live in complete tranquility while being just a few minutes’ walk from Nieuwmarkt, the metro, or Amsterdam Central Station. A perfect combination of peace and accessibility.
This bright 3-room apartment on the third floor features two bedrooms, a bathroom with bathtub, a separate toilet, and a living room with open kitchen. The building was completed in 2009 and is therefore fully up-to-date and equipped with modern installations.
LAYOUT:
You can reach the second floor by stairs or elevator. The entrance opens into the hallway, which immediately provides access to the separate toilet. Further down the hall are two bedrooms: a spacious room of approx. 12 m² with large windows, and a second room of about 9 m². Opposite this smaller bedroom is the bathroom, fitted with a bathtub, shower, washbasin cabinet, radiator, and a washing machine connection.
At the end of the hallway, a door opens into the bright living room with a modern open kitchen. The kitchen is equipped with a natural stone countertop, various built-in appliances, and mechanical ventilation. In the closet next to the kitchen are the central heating boiler (2009) and ventilation system. In the basement of the complex, there is a private storage unit of approx. 3 m² – practical for bicycles or extra storage.
The apartment has bamboo flooring throughout and double HR++ glazing.
SURROUNDINGS:
A prime location in the oldest part of Amsterdam: quiet living with all urban amenities within easy reach. Nieuwe Ridderstraat is only accessible to residents, making it a peaceful street in the lively Lastage/Nieuwmarkt neighborhood. Restaurants, cafés, and nightlife are just around the corner, such as on the Zeedijk, Binnen Bantammerstraat, or directly on Nieuwmarkt.
OWNERS’ ASSOCIATION:
The complex consists of 13 apartments. The homeowners’ association (VvE) is active, a reserve fund is in place, and the monthly contribution amounts to €161.
DETAILS:
-Living area: 62 m² (NEN2580 measurement report available);
-Excellent location in the Lastage/Nieuwmarkt neighborhood;
-Freehold property (no ground lease);
-Energy label A;
-Complex with elevator;
-Storage in the basement;
-Two bedrooms;
-Active and financially healthy homeowners’ association;
-Service costs: €161 per month;
-Transfer in consultation.
This information has been compiled with the utmost care. However, we do not accept any liability for any inaccuracies, incompleteness, or consequences thereof. All stated dimensions and surface areas are indicative. The buyer is responsible for conducting their own investigation into all matters of importance to them. Regarding this property, our office represents the seller. We advise you to engage an NVM/MVA certified estate agent to assist you in the purchasing process. If you choose not to seek professional guidance, the law assumes you are sufficiently knowledgeable to oversee all relevant matters. The General Consumer Terms and Conditions of the NVM apply.