**Please find the English translation below**
Wonen in een charmant en licht appartement midden in het centrum van Amsterdam, met een verrassend rustige sfeer en een bijzonder uitzicht over de historische binnenstad.
Vanuit de woning kijk je uit over de karakteristieke daken en zie je onder andere de toren van de Nieuwe Kerk, terwijl je op het dakterras juist geniet van stilte en vogelgeluiden. Dit sfeervolle 3 kamerappartement van circa 50 m² is gelegen op de tweede verdieping van een historisch pand op eigen grond en biedt een unieke combinatie van levendigheid en rust.
Nieuwsgierig geworden? Bel ons voor het maken van een afspraak, één van onze makelaars leidt je graag rond!
LOCATIE
De woning ligt in het hart van Amsterdam, op een centrale maar verrassend rustige locatie. Op loopafstand een breed aanbod aan winkels, restaurants, cafés en diverse stedelijke voorzieningen. De geliefde Jordaan, met haar karakteristieke straatjes en gezellige horeca, bevindt zich letterlijk om de hoek. Het Amsterdam Centraal Station en de metrohalte van de Noord/Zuidlijn liggen op slechts vijf minuten loopafstand, terwijl meerdere tramhaltes zich vrijwel voor de deur bevinden. Het noordelijke deel van de Nieuwezijds Voorburgwal, tussen de Paleisstraat en de Prins Hendrikkade, is heringericht met ruime aandacht voor fietsers, voetgangers en openbaar vervoer. Dankzij eenrichtingsverkeer en de toevoeging van groen is de straat rustiger, overzichtelijker en aangenamer geworden.
INDELING
Via de gezamenlijke entree bereik je de tweede verdieping, welke je deelt met slechts één andere bewoner. De entree van de woning bevindt zich op deze verdieping. De woonkamer is licht en sfeervol en vormt een prettige leefruimte. De keuken is compact maar praktisch ingericht en voorzien van een oven, magnetron, vaatwasser en een inbouw koelkast, daarnaast is er voldoende opbergruimte aanwezig.
Aan de achterzijde van de woning bevindt zich de slaapkamer, gelegen aan een rustige zijde van het pand. Daarnaast beschikt de woning over een ruime inloop garderobe met aansluiting voor een wasmachine. De badkamer is eenvoudig uitgevoerd en voorzien van een douche, wastafel en toilet.
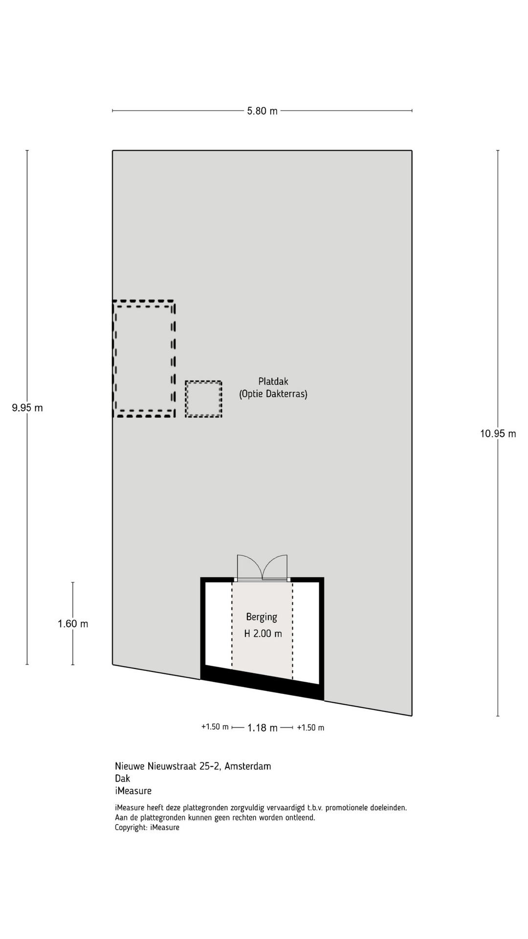
GEZAMENLIJK DAKTERRAS
Het dakterras vormt een bijzonder element van de woning en biedt een fraai uitzicht over de stad met zicht op onder andere het Paleis op de Dam, de Oude Kerk, de Nieuwe Kerk en Magna Plaza. Het dakterras is momenteel niet vergund en wordt gedeeld met de woning op de eerste verdieping.
Aan de achterzijde van het pand is een afgesloten steeg aanwezig waar onder andere fietsen veilig gestald kunnen worden.
Voor de indeling verwijzen we je tevens graag door naar de plattegronden, deze zijn te bekijken in 2D en in 3D en zijn te vinden onder het kopje “plattegrond”.
UITBREIDINGSOPTIE
Wat deze woning echt onderscheidt, is het perspectief om het woonoppervlak aanzienlijk te vergroten tot circa 70 m². In het verleden beschikte het appartement over een extra woonlaag, die in de jaren ’60 is verwijderd. Er ligt inmiddels een doordacht plan om deze verdieping opnieuw te realiseren, waarmee een royale leefruimte ontstaat en een separate slaapverdieping onder het dak, te bereiken via een interne trap. Er is al een voorlopige omgevingsvergunning afgegeven door de gemeente. Wel moet er nog een constructief onderzoek volgens NEN 8707 worden uitgevoerd. De bijbehorende plattegronden en visualisaties van Studio Carmen van den Hoogen geven een helder beeld van de mogelijkheden. Een zeldzame kans om een woning volledig naar eigen wens te creëren op een toplocatie in de stad! De huidige eigenaar biedt de mogelijkheid om de uitgewerkte plannen en vergunning over te nemen; deze overname maakt geen onderdeel uit van de vraagprijs en is bespreekbaar tegen een meerprijs.
VERENIGING VAN EIGENAREN (VvE)
De woning maakt deel uit van een kleinschalige Vereniging van Eigenaren bestaande uit 3 appartementsrechten. De VvE wordt in eigen beheer gevoerd en de vve-bijdrage is € 75 per maand.
BIJZONDERHEDEN
• Woonoppervlakte (NEN2580) 50 m²
• Eigen grond
• Vve bijdrage € 75,- per maand
• Gezamelijk dakterras
• Uitbreidingsoptie tot ongeveer 70 m² (impressies/plattegronden zijn aanwezig)
• Gezonde VvE bestaande uit 3 appartementsrechten
• Voor de op te nemen clausules verwijzen we je door naar het formulier “op te nemen clausules in de koopakte”
• Oplevering in overleg
Deze informatie is met de nodige zorgvuldigheid samengesteld. Wij aanvaarden echter geen enkele aansprakelijkheid voor enige onvolledigheid, onjuistheid of anderszins, dan wel de gevolgen daarvan.
Alle opgegeven maten en oppervlakten zijn indicatief. Koper heeft zijn eigen onderzoeksplicht naar alle zaken, die voor hem van belang zijn. Met betrekking tot deze woning is ons kantoor de makelaar van verkoper. Wij adviseren u een NVM MVA Makelaar in te schakelen, die u met zijn deskundigheid zal bijstaan in het aankoopproces. Indien u geen professionele begeleiding wenst in te schakelen, acht u zich volgens de wet deskundig genoeg om alle zaken, die van belang zijn, te kunnen overzien. De Algemene Consumentenvoorwaarden van de NVM zijn van toepassing.
=====English=====
Living in a charming and bright apartment in the heart of Amsterdam, with a surprisingly quiet atmosphere and a unique view over the historic city center.
From the apartment, you overlook the characteristic rooftops and can see, among other landmarks, the tower of the Nieuwe Kerk. Meanwhile, the rooftop terrace offers a peaceful retreat where you can enjoy silence and the sounds of birds. This charming 3-room apartment of approximately 50 m² is located on the second floor of a historic building on freehold land and offers a unique combination of vibrancy and tranquility.
Curious? Call us to schedule a viewing—one of our agents will be happy to show you around!
LOCATION
The property is situated in the heart of Amsterdam, in a central yet surprisingly quiet location. Within walking distance, you will find a wide range of shops, restaurants, cafés, and various urban amenities. The popular Jordaan, known for its characteristic streets and lively atmosphere, is literally just around the corner.
Amsterdam Centraal Station and the North/South metro line stop are only a five-minute walk away, while several tram stops are located almost right outside the door. The northern section of the Nieuwezijds Voorburgwal, between Paleisstraat and Prins Hendrikkade, has been redeveloped with a strong focus on cyclists, pedestrians, and public transport. Thanks to one-way traffic and the addition of greenery, the street has become calmer, clearer, and more pleasant.
LAYOUT
Via the shared entrance, you reach the second floor, which you share with only one other resident. The apartment entrance is located on this level.
The living room is bright and inviting, providing a comfortable living space. The kitchen is compact yet practical and equipped with an oven, microwave, dishwasher, and built-in refrigerator, with ample storage space.
At the rear of the property is the bedroom, situated on a quiet side of the building. The apartment also features a spacious walk-in wardrobe with a connection for a washing machine. The bathroom is simple and fitted with a shower, sink, and toilet.
SHARED ROOFTOP TERRACE
The rooftop terrace is a special feature of the property, offering beautiful views over the city, including the Royal Palace Amsterdam, the Oude Kerk, the Nieuwe Kerk, and Magna Plaza.
Please note that the rooftop terrace is currently not officially permitted and is shared with the apartment on the first floor.
At the rear of the building, there is a secured alley where bicycles can be safely stored.
For the layout, we also kindly refer you to the floor plans, available in both 2D and 3D under the “floor plan” section.
EXTENSION OPTION
What truly sets this property apart is the potential to significantly increase the living area to approximately 70 m². In the past, the apartment included an additional floor, which was removed in the 1960s.
A well-developed plan is already in place to reconstruct this level, creating a spacious living area and a separate sleeping floor under the roof, accessible via an internal staircase. A preliminary environmental permit has already been granted by the municipality, although a structural assessment in accordance with NEN 8707 is still required.
The accompanying floor plans and visualizations by Studio Carmen van den Hoogen provide a clear impression of the possibilities. This is a rare opportunity to fully customize a home to your own wishes in a prime city-center location.
The current owner offers the option to take over the developed plans and permit. This is not included in the asking price and is negotiable at an additional cost.
HOMEOWNERS ASSOCIATION (VvE)
The property is part of a small-scale homeowners association consisting of 3 apartment rights. The association is self-managed, and the monthly contribution is €75.
FEATURES
• Living area (NEN2580): 50 m²
• Freehold property (no ground lease)
• VvE contribution: €75 per month
• Shared rooftop terrace
• Extension option up to approximately 70 m² (visuals/floor plans available)
• Healthy homeowners association consisting of 3 apartment rights
• For applicable clauses, please refer to the document “clauses to be included in the purchase agreement”
• Completion/delivery in consultation
This information has been compiled with due care. However, we accept no liability for any inaccuracies, omissions, or consequences thereof.
All stated measurements and surfaces are indicative. Buyers have their own duty to investigate all matters that may be of importance to them. Our office represents the seller in this transaction. We recommend engaging an NVM/MVA real estate agent to assist you in the purchasing process. If you choose not to seek professional guidance, you declare yourself legally competent to oversee all relevant matters.
The General Consumer Terms and Conditions of the NVM apply.