**Please find the English translation below**
Royale eengezinswoning met prachtige loft en tuin op het westen
In het geliefde en kindvriendelijke Twiske Zuid staat deze instapklare karakteristieke middenwoning (energielabel A+), die uitblinkt in ruimte en comfort. De woning beschikt onder andere over een hoogwaardige designkeuken met luxe inbouwapparatuur, een nette badkamer met bad, vier slaapkamers waaronder een prachtige loft (2021) en een zonnige tuin op het westen. Dankzij het recente bouwjaar, de uitstekende isolatie, vloerverwarming in het hele huis en 8 zonnepanelen woon je hier niet alleen stijlvol, maar ook duurzaam en energiezuinig én met lage onderhoudskosten. Hier is het genieten van het beste van twee werelden: rust, ruimte en groen rondom recreatiegebied ’t Twiske, én de bruisende hotspots van Amsterdam-Noord zoals de NDSM-werf, binnen handbereik. Echt een woonkans die je gezien moet hebben. Nieuwsgierig geworden? Bel ons voor het maken van een afspraak, één van onze makelaars leidt je graag rond!
LOCATIE
De woningen in het kleinschalig nieuwbouwproject ’t Twiske Zuid zijn qua architectuur uitgevoerd in Zaanse stijl met afwisselende vormen en kleuren in de gevels waardoor er een speels straatbeeld is ontstaan. De wijk ligt in het groene en kindvriendelijke Kadoelen in Amsterdam-Noord, nabij de Molenwijk. Hier woon je rustig, maar toch met het centrum van Amsterdam binnen handbereik. Met de fiets ben je in 15 minuten bij de pont naar CS, of je pakt een van de bussen om snel in Amsterdam, Zaandam of op Schiphol te zijn. Nabij recreatiegebied ’t Twiske, met zijn fiets- en wandelpaden, zwemstrandjes, speeltuinen en sportmogelijkheden, woon je heerlijk bij de natuur. Voorzieningen zoals scholen, kinderopvang, winkels (o.a. Molenwijk, Landsmeer, de Banne, Boven ’t Y, Waterlandplein), horeca en medische zorg zijn allemaal dichtbij. Aan het einde van de straat bevindt zich een basisschool, op loopafstand van de woning. En niet onbelangrijk: parkeren is hier nog gratis.
INDELING
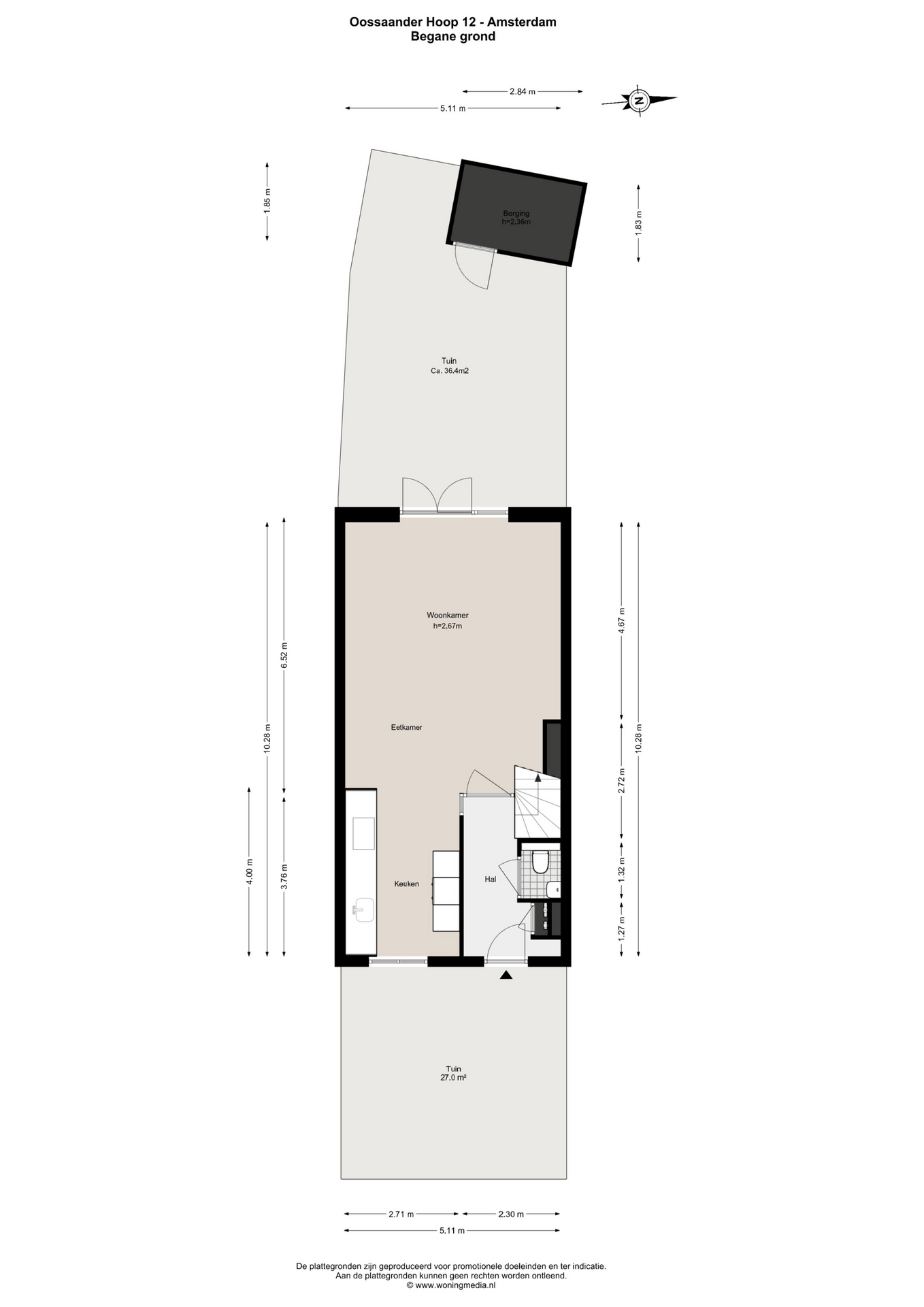
Begane grond
Voortuin met eigen parkeerplaats en handige buitenkraan. Entree met hal, toilet en trapopgang naar de eerste verdieping. De uitgebouwde woonkamer is licht en ruim, voorzien van fraaie stalen deuren (2021) en eikenhouten visgraat vloeren met vloerverwarming. Aan de voorzijde bevindt zich de moderne Bulthaup b1 keuken met luxe inbouwapparatuur; een Bora kookplaat en een Gaggenau oven. Via de openslaande deuren bereik je de zonnige achtertuin op het westen, eveneens met buitenkraan, en een vrijstaande berging voor fietsen en opslag.
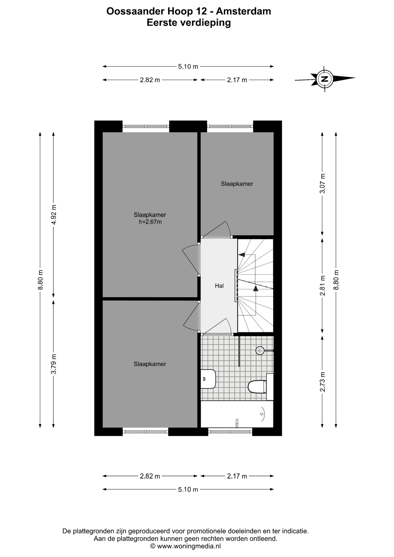
Eerste verdieping
Overloop met drie slaapkamers en een nette badkamer met douche, ligbad, wastafel en tweede toilet. De gehele verdieping is voorzien van eikenhouten vloeren met vloerverwarming. De rechte gevels zorgen voor praktische en ruime kamers.
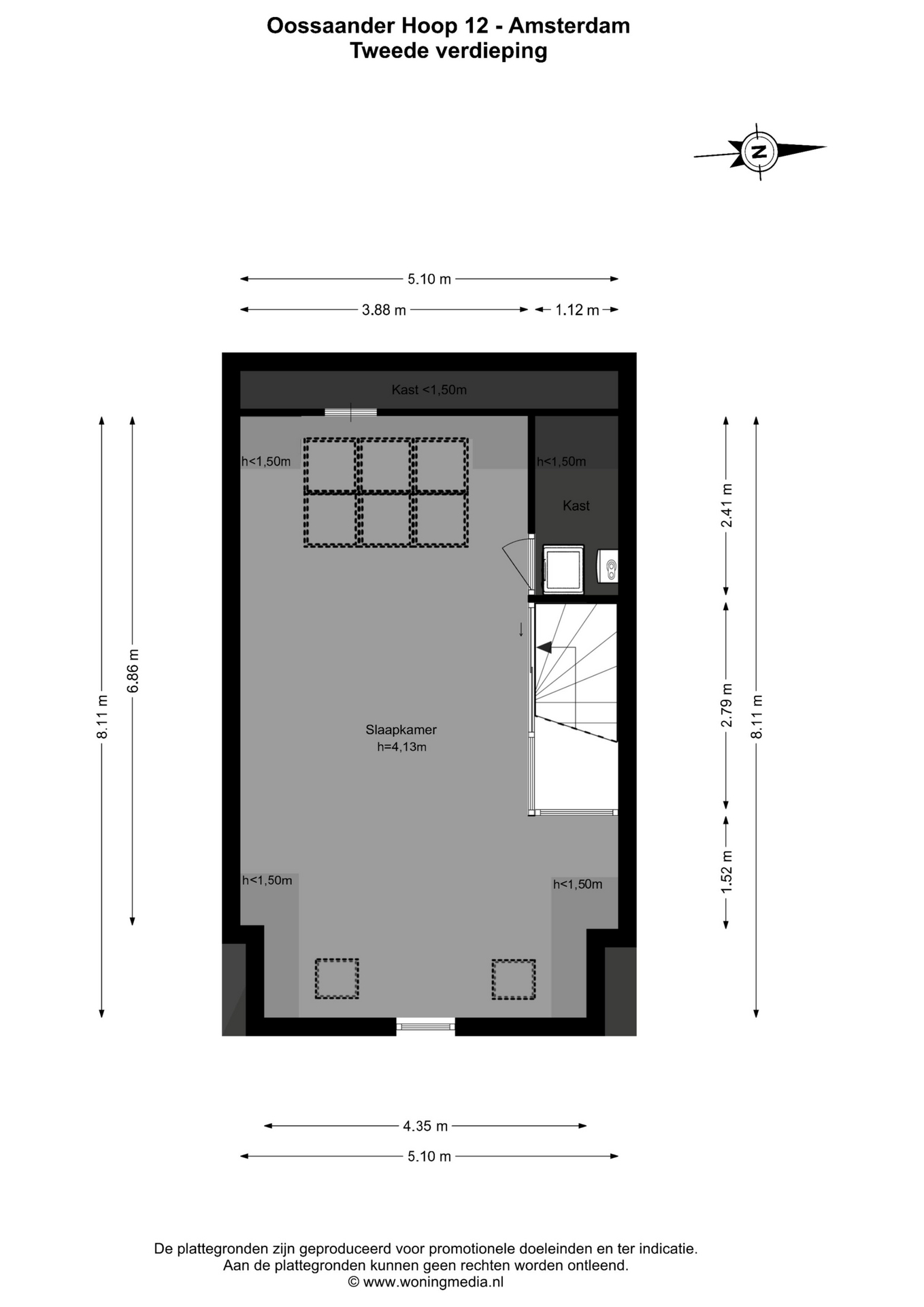
Tweede verdieping
(loft, verbouwd in 2021) Een prachtige, hoogwaardige afgewerkte loft met veel licht en ruimte. Hier vind je een vierde slaapkamer met stalen raamkozijnen en schuifdeur, met handige extra bergruimte achter knieschotten en een vliering, en een aparte wasruimte met wasmachine-aansluiting en wasbak. De loft is voorzien van een Velux dakkapel-serre en twee dakramen in de voorpunt, uitgerust met zonwerende en verduisterende screens op zonne-energie. Deze verdieping leent zich ook uitstekend voor het creëren van een extra (slaap)kamer of een werk-/hobbyruimte.
Voor de indeling verwijzen we je tevens graag door naar de plattegronden, deze zijn te bekijken in 2D en in 3D en zijn te vinden onder het kopje “plattegrond”.
ERFPACHT
De woning is gelegen op grond van de gemeente Amsterdam, welke in erfpacht is uitgegeven. De jaarlijkse canon loopt tot en met 31-05-2064. De vergoeding hiervoor bedraagt voor 2025 € 1.695,- deze vergoeding wordt jaarlijks geïndexeerd en geldt als aftrekpost voor de inkomstenbelasting. Vanaf 1 juni 2064 is de erfpacht eeuwigdurend afgekocht!
DUURZAAMHEID
• Energielabel A+
• Volledig geïsoleerd
• HR-glas
• 8 zonnepanelen (2021)
• Cv-ketel (2015)
• Vloerverwarming in het hele huis
BIJZONDERHEDEN
• Bouwjaar 2015
• Woonoppervlakte (NEN2580): 132,5 m²
• Zeer energiezuinig, energielabel A+
• 8 zonnepanelen
• 4 slaapkamers, incl. prachtige loft (2021) met dakkapel-serre (mogelijkheid om eenvoudig een 5de slaapkamer te realiseren)
• Achtertuin op het westen met buitenkraan (voor- en achtertuin)
• Volledige woning voorzien van eikenhouten vloeren en vloerverwarming
• Moderne Bulthaup b1 keuken met Bora kookplaat en Gaggenau oven
• Stalen deuren en trapleuningen (2021)
• Eigen oprit met parkeerplaats voor de deur en vrij parkeren in de wijk
• Kindvriendelijke wijk Kadoelen
• Nabij recreatiegebied ’t Twiske
• Erfpacht: jaarlijkse canon t/m 31-05-2064. Bedrag voor 2025: € 1.695,41. Na 2064 is de erfpacht eeuwigdurend afgekocht
• Voor de op te nemen clausules verwijzen we je naar het formulier “Op te nemen clausules in de koopakte”
• Oplevering in overleg
Deze informatie is met de nodige zorgvuldigheid samengesteld. Wij aanvaarden echter geen enkele aansprakelijkheid voor enige onvolledigheid, onjuistheid of anderszins, dan wel de gevolgen daarvan.
Alle opgegeven maten en oppervlakten zijn indicatief. Koper heeft zijn eigen onderzoeksplicht naar alle zaken, die voor hem van belang zijn. Met betrekking tot deze woning is ons kantoor de makelaar van verkoper. Wij adviseren u een NVM/MVA Makelaar in te schakelen, die u met zijn deskundigheid zal bijstaan in het aankoopproces. Indien u geen professionele begeleiding wenst in te schakelen, acht u zich volgens de wet deskundig genoeg om alle zaken, die van belang zijn, te kunnen overzien. De Algemene Consumentenvoorwaarden van de NVM zijn van toepassing.
=====English=====
Spacious Family Home with Stunning Loft and West-Facing Garden
In the popular and child-friendly neighborhood of Twiske Zuid, you will find this move-in ready, characteristic mid-terrace house (energy label A+) that stands out for its space and comfort. The property offers a high-end designer kitchen with luxury built-in appliances, a neat bathroom with bathtub, four bedrooms including a beautiful loft (2021), and a sunny west-facing garden. Thanks to its recent year of construction, excellent insulation, underfloor heating throughout the house, and 8 solar panels, you will enjoy not only stylish living but also sustainable, energy-efficient comfort with low maintenance costs. Here, you can experience the best of both worlds: peace, space, and greenery around the recreational area ’t Twiske, while also having the vibrant hotspots of Amsterdam-Noord such as the NDSM wharf within easy reach. A truly unique opportunity worth seeing. Curious? Call us to schedule a viewing—one of our agents will be happy to show you around!
LOCATION
The homes in the small-scale new-build project ’t Twiske Zuid are designed in the traditional Zaan style, with varied shapes and colors in the façades creating a playful streetscape. The neighborhood is located in the green and family-friendly Kadoelen area of Amsterdam-Noord, near Molenwijk. Here you live quietly, yet with the city center of Amsterdam within easy reach. By bike, you can reach the ferry to Central Station in 15 minutes, or you can take one of the nearby buses to quickly travel to Amsterdam, Zaandam, or Schiphol Airport. Close to recreational area ’t Twiske, with its cycling and walking paths, swimming beaches, playgrounds, and sports facilities, you will enjoy being surrounded by nature. Amenities such as schools, childcare, shops (including Molenwijk, Landsmeer, de Banne, Boven ’t Y, and Waterlandplein), restaurants, and medical care are all nearby. At the end of the street there is a primary school within walking distance. And not unimportant: parking here is still free.
LAYOUT
Ground floor
Front garden with private parking space and convenient outdoor tap. Entrance hall with toilet and staircase to the first floor. The extended living room is bright and spacious, featuring elegant steel doors (2021) and oak herringbone flooring with underfloor heating. At the front you will find the modern Bulthaup b1 kitchen with luxury built-in appliances, including a Bora cooktop and a Gaggenau oven. French doors open onto the sunny west-facing back garden, also with outdoor tap, and a detached storage shed for bicycles and storage.
First floor
Landing with three bedrooms and a neat bathroom with shower, bathtub, sink, and second toilet. The entire floor features oak flooring with underfloor heating. The straight walls ensure practical and spacious rooms.
Second floor (loft, renovated in 2021)
A beautifully finished loft offering lots of light and space. Here you will find a fourth bedroom with steel-framed sliding doors, additional storage space behind the knee walls and in the attic, as well as a separate laundry room with washing machine connection and sink. The loft is equipped with a Velux dormer-conservatory and two skylights at the front, fitted with solar-powered sun and blackout screens. This floor also offers excellent potential to create an additional bedroom, home office, or hobby room.
For the layout, please also refer to the floor plans, available in both 2D and 3D under the “floor plan” section.
LEASEHOLD
The property is situated on leasehold land owned by the Municipality of Amsterdam. The annual ground rent is for 2025 €1,695 (indexed annually) and is deductible for income tax purposes, running until May 31, 2064. From June 1, 2064, the ground lease has been bought off in perpetuity.
SUSTAINABILITY
• Energy label A+
• Fully insulated
• HR glass
• 8 solar panels (2021)
• Central heating boiler (2015)
• Underfloor heating throughout the house
KEY FEATURES
• Built in 2015
• Living area (NEN2580): 132.5 m²
• Very energy-efficient, energy label A+
• 8 solar panels
• 4 bedrooms, including a stunning loft (2021) with dormer-conservatory (easy option to create a 5th bedroom)
• West-facing back garden with outdoor taps (front and back)
• Entire house fitted with oak flooring and underfloor heating
• Modern Bulthaup b1 kitchen with Bora cooktop and Gaggenau oven
• Steel doors and stair railings (2021)
• Private driveway with parking in front of the house and free on-street parking
• Child-friendly neighborhood Kadoelen
• Near recreational area ’t Twiske
• Leasehold: annual ground rent until 31-05-2064. Amount for 2025: € 1,695.41. After 2064, the leasehold has been perpetually bought off.
• For applicable clauses, please refer to the form “Clauses to be included in the purchase agreement”
• Delivery in consultation
This information has been compiled with due care. However, we accept no liability for any incompleteness, inaccuracy or otherwise, or the consequences thereof.
All specified sizes and surfaces are indicative. The buyer has his own obligation to investigate all matters that are important to him. With regard to this property, our office is the seller’s agent. We advise you to engage an NVM/MVA real estate agent, who will assist you with his expertise in the purchasing process. If you do not wish to engage professional guidance, you consider yourself expert enough according to the law to be able to oversee all matters that are important. The General Consumer Terms and Conditions of the NVM apply.