**Please find the English translation below**
Op een zeer gewilde plek in Amsterdam-Oost vind je dit geweldige dubbele bovenhuis van 93m2 met panoramisch uitzicht en maar liefst drie buitenruimtes. Door de hoge plafonds en de strakke afwerking met o.a. paneeldeuren met authentiek deurbeslag, hoge plinten, design keuken en veel ramen aan zowel de voorzijde als achterzijde proef je overal in het appartement een gevoel van luxe én warmte. Als je vanaf de trap de woonruimte binnenkomt word je verrast door het licht, de hoogte en het uitzicht, iets dat dit huis echt uniek maakt. De lichte open keuken met inbouwapparatuur maakt van deze bijzondere woonverdieping een heerlijke plek om te vertoeven. Drie dubbele openslaande deuren geven een directe verbinding met het ruime zonnige balkon.
Het verrassingseffect van de vierde verdieping wordt nog eens overtroffen bij het betreden van de unieke onder architectuur gebouwde multifunctionele opbouw op de vijfde verdieping met dakterrassen aan weerszijden. Het feit dat dit pand boven de omliggende panden uitsteekt, zorgt dat je hier door de glazen voor- en achtergevel een prachtig panorama over de stad hebt. Zoals dit huis is er geen ander in Amsterdam!
Nieuwsgierig geworden? Bel ons voor het maken van een afspraak, één van onze makelaars leidt je graag rond!
LOCATIE:
Het appartement ligt aan het begin van de Pretoriusstraat, dichtbij de Linnaeusstraat en bij het populaire winkelcentrum Oostpoort. In de Pretoriusstraat zit een gevarieerd aanbod van bijzondere winkels (Olives & more, Turkse specialiteitenwinkel Helal et Gida, de glutenvrije winkel, etc.) en gezellige horeca (o.a. Rumbaba coffee roasters, The Cottage, Pizza Pazzi, Massimo Gelato etc.). Het Oosterpark, Park Frankendael en Flevopark bevinden zich op loopafstand, evenals het zwembad, tal van speeltuinen, kinderdagverblijven en verschillende (sport)scholen. De woning ligt op 2 minuten van bus en tramhaltes, op 10 minuten lopen van het Muiderpoortstation en 7 minuten fietsen van Amstelstation.
INDELING:
Begane grond: Gemeenschappelijke entree.
Derde verdieping: eigen entree woning en garderobe/hal.
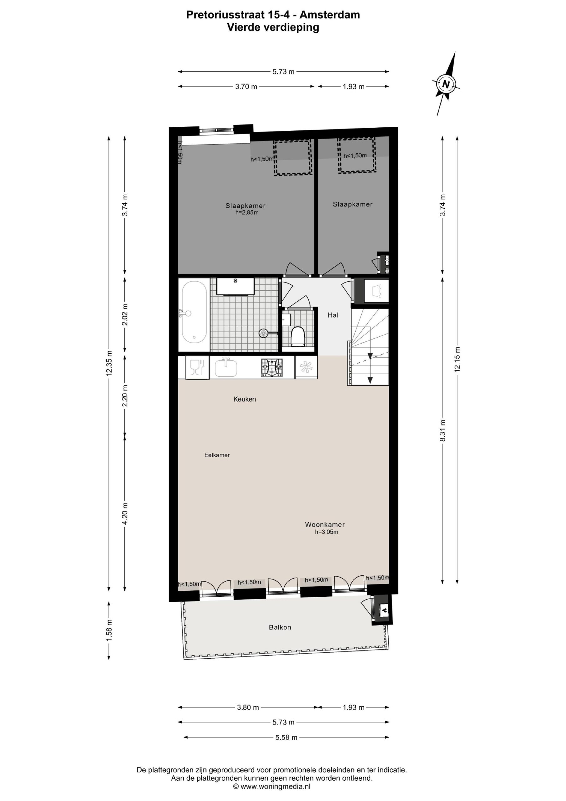
Vierde etage: hoge en lichte woonkamer met open designkeuken voorzien van alle denkbare inbouwapparatuur en mooi vormgegeven details. De gehele woning heeft een bamboe parketvloer. Drie openslaande dubbele deuren naar groot en zonnig balkon op het zuidoosten over de gehele breedte van de woning. In het midden van de woning vind je de moderne en goed uitgeruste badkamer met ligbad en regendouche en een separaat toilet. Aan de voorzijde bevinden zich een tweetal goed bemeten slaapkamers. Er is een wasmachine aansluiting in een ruime kast waar zowel wasmachine als droger in passen.
Vijfde etage: Via de vaste trap vanuit de hal, kom je in de opbouw die in 2017 onder architectuur is gebouwd. Hier bevind je je op de vijfde en tevens bovenste verdieping, waar de grote raampartijen je direct een gevoel van vrijheid geven. Doordat de omliggende panden relatief laag zijn, toren je boven de omgeving uit en heb je een prachtig panoramisch uitzicht over de stad. Deze zeer goed geïsoleerde en met triple glas uitgevoerde opbouw is een echte oase van rust. De op maat ontworpen vaste kastenwand bevat niet alleen de toegang naar de trap, maar ook veel bergruimte, hangkasten en een ingebouwde wastafel.
Het kersje op de taart is de mogelijkheid om de woningbrede gordijnen weg te schuiven achter klapdeurtjes in deze zelfde kastenwand. Op deze verdieping bevindt zich tevens aan zowel de voor- als achterzijde een prachtig dakterras waar op elk moment van de dag genoten kan worden van volop zon of desgewenst schaduw. Voor de indeling verwijzen we je tevens graag door naar de plattegronden, deze zijn te bekijken in 2D en in 3D en zijn te vinden onder het kopje “plattegrond”.
ERFPACHT: De woning is gelegen op grond van de gemeente Amsterdam, welke in erfpacht is uitgegeven. Voor het gebruik van deze grond betaal je als eigenaar een vergoeding. De jaarlijkse vergoeding bedraagt € 715,22 per jaar en geld als aftrekpost voor de inkomstenbelasting. Deze jaarlijkse vergoeding wordt jaarlijks geïndexeerd. Verkoper heeft ervoor gekozen om over te stappen naar het nieuwe erfpachtstelsel AB2016. De jaarlijkse canon is na 31 december 2059 vastgeklikt op € 1.180,39 per jaar. Dit bedrag wordt vanaf heden jaarlijks geïndexeerd.
DUURZAAMHEID:
Deze woning is in 2009 volledig gerenoveerd, voorzien van HR glas op de 4e verdieping en Triple glas op de 5e verdieping, volledig geïsoleerd en wordt verwarmd middels een cv-combiketel Remeha Avanta C35 uit 2009 (laatste onderhoudsbeurt en goedkeuring zomer 2024). Voordat de 6 zonnepanelen in 2023 geplaats werden, was het energielabel in 2020 al vastgesteld op A. De zonnepanelen hebben elk een vermogen van 425 Wp.
VERENIGING VAN EIGENAREN:
Het betreft een kleine VVE, gesplitst in 2007 in totaal 8 appartementsrechten waarvan de administratie in eigen beheer wordt gedaan. De servicekosten bedragen € 150,11 per maand.
BIJZONDERHEDEN:
-Energielabel A
-Woonoppervlakte (NEN2580) 93m²
-Gezonde VvE bestaande uit 8 appartementsrechten, in eigen beheer
-Servicekosten € 150,11 per maand
-Erfpachtcanon € 715,22 per jaar (jaarlijkse indexering) tot 31 december 2059, daarna vastgeklikt
-Voor de op te nemen clausules verwijzen we je door naar het formulier “op te nemen clausules in de koopakte”
-Oplevering in overleg
Deze informatie is met de nodige zorgvuldigheid samengesteld. Wij aanvaarden echter geen enkele aansprakelijkheid voor enige onvolledigheid, onjuistheid of anderszins, dan wel de gevolgen daarvan. Alle opgegeven maten en oppervlakten zijn indicatief. Koper heeft zijn eigen onderzoeksplicht naar alle zaken, die voor hem van belang zijn. Met betrekking tot deze woning is ons kantoor de makelaar van verkoper. Wij adviseren u een NVM/MVA Makelaar in te schakelen, die u met zijn deskundigheid zal bijstaan in het aankoopproces. Indien u geen professionele begeleiding wenst in te schakelen, acht u zich volgens de wet deskundig genoeg om alle zaken, die van belang zijn, te kunnen overzien. De Algemene Consumentenvoorwaarden van de NVM zijn van toepassing.
=========================ENGLISH=======================
Located in the highly desirable Amsterdam Oost, this stunning double-level apartment of 93 m2 offers panoramic views and an impressive three outdoor spaces. With high ceilings, stylish finishes—including paneled doors with authentic hardware, tall baseboards, designer kitchen, and abundant front and back windows—this apartment exudes both luxury and warmth. Upon entering the spacious living area, you’ll be struck by the abundant light, height, and view, creating a unique living experience. The bright open kitchen with built-in appliances makes this space ideal for daily enjoyment. Three double doors open directly onto the expansive, sunny balcony.
The experience on the fourth floor is further heightened by the architect-designed, multifunctional space on the fifth floor with terraces on both sides. As this building rises above the surrounding properties, you can enjoy a magnificent view of the city through the glass front and back walls. This property is truly one-of-a-kind in Amsterdam!
Curious to see more? Call us to schedule a tour—our agents would be glad to show you around!
LOCATION
This apartment is situated at the start of Pretoriusstraat, near Linnaeusstraat and the popular Oostpoort shopping center. Pretoriusstraat is home to a diverse range of specialty shops (like Olives & More, Helal et Gida Turkish specialty store, the gluten-free store) and welcoming cafes (e.g., Rumbaba Coffee Roasters, The Cottage, Pizza Pazzi, Massimo Gelato). Oosterpark, Park Frankendael and Flevopark are within walking distance, along with a pool, playgrounds, daycare centers, and various sports and schools. Public transport connections are optimal, with bus and tram stops just 2 minutes away, Muiderpoort station a 10-minute walk, and Amstel station just 7 minutes by bike.
LAYOUT
Ground Floor: Shared entrance.
Third Floor: Private entrance with coat storage and hall.
Fourth Floor: Spacious, light-filled living room with an open design kitchen, fully equipped with high-end appliances and thoughtful details. The entire apartment features bamboo parquet flooring. Three sets of French doors open onto a large, sunny southeast-facing balcony spanning the entire width of the apartment. The centrally located, modern bathroom is fully equipped with a bathtub, rain shower, and separate toilet. At the front of the property, you’ll find two well-sized bedrooms. A large storage cabinet accommodates both a washing machine and dryer.
Fifth Floor: Accessible via a fixed staircase from the hall, the 2017 architect-designed addition occupies the fifth and top floor, with oversized windows providing an immediate sense of freedom. As the surrounding buildings are relatively low, you’ll enjoy panoramic views of the city from above. This well-insulated, triple-glazed addition is an oasis of tranquility. Custom cabinetry not only conceals the staircase but also provides ample storage space, hanging cupboards, and an integrated sink.
A special highlight of this room is the wall-to-wall curtains, which can be stored behind folding doors in the cabinetry. This floor also offers beautiful roof terraces at both the front and back, providing sun or shade throughout the day.
For a detailed layout, please refer to the floor plans available in both 2D and 3D under “floor plan.”
LEASEHOLD
This property is located on municipal leasehold land from the City of Amsterdam. For this lease, the annual payment is € 715.22, deductible from income tax and indexed annually. The owner has transitioned to the new leasehold system, AB2016, setting the annual fee at € 1,180.39 from January 1, 2060, onward, also indexed annually.
SUSTAINABILITY
This apartment underwent a complete renovation in 2009, fitted with HR glass on the fourth floor, triple glass on the fifth floor, full insulation, and a Remeha Avanta C35 central heating combi boiler (last serviced in summer 2024). Before six solar panels were installed in 2023, the apartment had already achieved an energy label of A in 2020. The solar panels each have a capacity of 425 Wp.
OWNERS’ ASSOCIATION (VvE)
The VvE consists of eight apartment rights, since it was split in 2007, self-managed, with monthly service charges of € 150.11.
HIGHLIGHTS
– Energy label: A
– Living area (NEN2580): 93m2
– Well-maintained VvE of eight apartment rights, self-managed
– Monthly service charges: € 150.11
– Annual ground lease: € 715.22 (indexed annually) until December 31, 2059; fixed thereafter
– For more information on clauses, please see the form “op te nemen clausules in de koopakte”
– Transfer date negotiable
This information has been compiled with care, but we assume no liability for any inaccuracies or incompleteness, nor for any consequences thereof. All measurements and areas are indicative. Buyers are responsible for verifying all important details independently. Our office represents the seller in this transaction, and we advise buyers to engage an NVM/MVA agent for professional guidance through the purchase process. If you choose not to seek professional assistance, you are legally considered to have sufficient expertise to oversee all relevant aspects independently. The NVM General Consumer Conditions apply.