**Please find the English translation below**
Modern en licht 2-kamerappartement van 61 m² met balkon, lift én eigen parkeerplaats in de populaire wijk De Bongerd
Ben je op zoek naar een strak afgewerkt appartement met lift, privéparkeerplaats en een heerlijk uitzicht over het groen? Dan is dit je kans! Winterjanpad 10 ligt in een van de mooiste delen van De Bongerd: ruim opgezet, omgeven door groen en met zicht op water en park. De woning is gebouwd in 2020, uitstekend onderhouden, en van alle moderne gemakken voorzien. Bovendien beschik je hier over een eigen parkeerplek op afgesloten terrein én een gezamenlijke fietsenstalling in de onderbouw.
Nieuwsgierig geworden? Bel ons voor het maken van een afspraak, één van onze makelaars leidt je graag rond!
INDELING
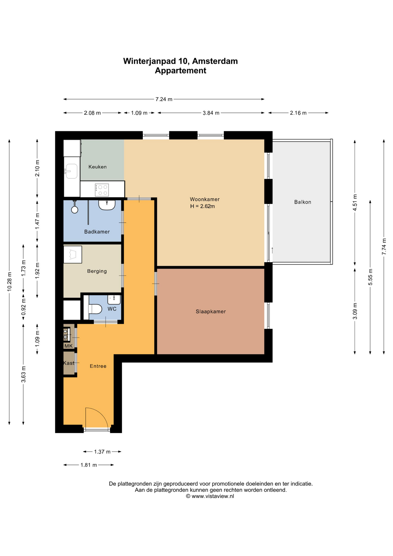
Je bereikt de woning via het trappenhuis of de lift. Binnenkomst in de ruime hal met toegang tot alle vertrekken. De woonkamer is licht en comfortabel, met openslaande deuren naar een fijn balkon op het oosten, een perfecte plek om in de middagzon te ontspannen met uitzicht over het groene park en een glimp van het Zijkanaal I.
De open keuken in hoekopstelling is voorzien van diverse inbouwapparatuur zoals een kookplaat met afzuigkap, combi-oven, koel/vries combinatie en vaatwasser. De slaapkamer is ruim, licht en praktisch in te delen. De badkamer is stijlvol afgewerkt met een inloopdouche en wastafelmeubel; het toilet is apart en uitgevoerd in dezelfde moderne stijl.
Verder is er een ruime interne berging met aansluitingen voor wasmachine en droger. In de onderbouw beschik je over een eigen parkeerplaats én toegang tot de gezamenlijke fietsenberging.
Voor de exacte maatvoering verwijzen wij je graag naar de plattegronden in 2D en 3D onder het kopje ‘plattegrond’.
LOCATIE
Je vindt het Winterjanpad in de populaire woonwijk de Bongerd. Deze wijk is in 2007 ontstaan en nu circa 15 jaar later, tref je een groene, ruime en kindvriendelijke woonwijk aan. Op steenworp afstand vind je supermarkt Plus met daarnaast basisschool IKC Noordrijk, hier is tevens een kinderdagverblijf bij te vinden. Sinds maart 2018 is er in De Bongerd nog een tweede basisschool, Klein Amsterdam, met inpandige buitenschoolse opvang.
De populaire woonwijk De Bongerd ligt in een bocht van het Zijkanaal I, dat in verbinding staat met het IJ. Een unieke en open plek waar je heerlijk kunt wandelen langs het brede water, of ’s zomers ook een verfrissende duik kunt nemen vanaf één van de twee zwemsteigers.
Met de auto ben je binnen enkele minuten op de A10. In deze woonwijk kun je nog gratis parkeren voor de deur. Ook het openbaar vervoer is goed geregeld. Er is een bushalte op 2 minuten loopafstand. De halte van de Noord-/Zuidlijn is op 11 minuten fietsafstand waarmee je tien minuten later op de Dam kunt staan.
Met slechts 6 minuten fietsen sta je op de NDSM-werf, vanaf hier kun je niet alleen de pont naar Centraal station of de Pontsteiger pakken, maar hier zijn ook het hele jaar door leuke festivals te vinden. Voor een heerlijk hapje eten kun je hier o.a. terecht bij Pllek, IJver, Noorderlicht, de IJ-kantine, Loetje aan ’t IJ en Kometen Brood. Op fietsafstand bevindt zich filmhuis FC Hyena en bij winkelcentrum Buikslotermeerplein ook een Pathé bioscoop. Natuurliefhebber? Met 8 minuten fiets je naar natuur- en recreatiegebied Het Twiske of het landelijke gebied Waterland, waar je kunt genieten van de rust en de prachtige natuur. Ook het prachtige Noorderpark is heel dichtbij. Kortom, in Noord combineer je het beste van twee werelden.
DUURZAAMHEID
De woning is uitstekend geïsoleerd en voorzien van vloerverwarming, HR++ beglazing en een energielabel A. Dankzij het recente bouwjaar (2020) en de efficiënte installaties woon je hier comfortabel en energiezuinig.
VERENIGING VAN EIGENAREN (VvE)
De woning maakt deel uit van een actieve en gezonde VvE bestaande uit 19 appartementen en 22 parkeerplaatsen. De servicekosten bedragen € 168,63,- per maand. De VvE beheert het gebouw, de gezamenlijke fietsenstalling en het parkeerterrein. De administratie wordt verzorgt door Munnik VvE beheer.
ERFPACHT
De woning is gelegen op gemeentelijke erfpachtgrond. De erfpacht is uitgegeven onder de voorwaarden van de Erfpachtbepalingen 2000. De huidige canon bedraagt € 1.802,- per jaar en wordt elke 10 jaar geïndexeerd. De canon is vooruitbetaald tot 15 april 2069.
BIJZONDERHEDEN
-Woonoppervlakte ca. 61 m² (NEN2580)
-Bouwjaar 2020
-Lift aanwezig
-Balkon op het westen met uitzicht op groen en water
-Eigen parkeerplaats op afgesloten terrein
-Gezamenlijke fietsenstalling in de onderbouw
-Vloerverwarming in de gehele woning
-Energielabel A
-Actieve VvE, servicekosten € 168,63,- per maand
-Erfpacht canon € 1.802,- per jaar
-Oplevering in overleg (kan snel)
Deze informatie is met de nodige zorgvuldigheid samengesteld. Wij aanvaarden echter geen enkele aansprakelijkheid voor enige onvolledigheid, onjuistheid of anderszins, dan wel de gevolgen daarvan.
Alle opgegeven maten en oppervlakten zijn indicatief. Koper heeft zijn eigen onderzoeksplicht naar alle zaken, die voor hem van belang zijn. Met betrekking tot deze woning is ons kantoor de makelaar van verkoper. Wij adviseren u een NVM/MVA Makelaar in te schakelen, die u met zijn deskundigheid zal bijstaan in het aankoopproces. Indien u geen professionele begeleiding wenst in te schakelen, acht u zich volgens de wet deskundig genoeg om alle zaken, die van belang zijn, te kunnen overzien. De Algemene Consumentenvoorwaarden van de NVM zijn van toepassing.
==================================English=================================
Modern and bright 1-bedroom apartment (61 m²) with balcony, elevator, and private parking in the popular neighborhood De Bongerd
Looking for a stylishly finished apartment with elevator access, private parking, and beautiful green views? This is your chance! Winterjanpad 10 is located in one of the most attractive parts of De Bongerd — spaciously laid out, surrounded by greenery, with views of water and parkland. Built in 2020, the property is in excellent condition and fully equipped with modern conveniences. You’ll also have your own parking spot in a gated area and access to a shared bicycle storage in the building’s basement.
Curious to see more? Call us to schedule a viewing — one of our agents will be happy to show you around!
LAYOUT
The apartment is accessible via the staircase or elevator. Upon entering, a spacious hallway connects all rooms. The living room is bright and comfortable, with French doors opening onto an east-facing balcony — a perfect place to enjoy the afternoon sun while overlooking the lush park and catching a glimpse of the Zijkanaal I.
The open corner kitchen is equipped with built-in appliances including a cooktop with extractor hood, combination oven, fridge/freezer, and dishwasher. The bedroom is spacious, filled with natural light, and easy to furnish. The bathroom is stylishly finished with a walk-in shower and washbasin unit, and the separate toilet is done in the same modern style.
There’s also a large internal storage room with connections for a washer and dryer. In the basement, you’ll have your own private parking space and access to a shared bicycle storage room.
For exact measurements, please refer to the 2D and 3D floor plans under the section “plattegrond”.
LOCATION
Winterjanpad is located in the popular residential area De Bongerd. Developed in 2007, it has grown into a green, spacious, and family-friendly neighborhood over the past 15 years. Just a stone’s throw away, you’ll find the Plus supermarket next to primary school IKC Noordrijk, which also houses a daycare center. Since March 2018, De Bongerd has a second primary school, Klein Amsterdam, with integrated after-school care.
This beloved neighborhood lies in a curve of the Zijkanaal I, which connects to the IJ. It’s a unique and open area perfect for walking along the broad waterside paths or taking a refreshing dip in the summer from one of the two swimming piers.
By car, you’re on the A10 ring road within minutes. Free on-street parking is still available here. Public transport is well organized, with a bus stop just a 2-minute walk away. The North/South metro line is 11 minutes away by bike, bringing you to Dam Square in just 10 minutes.
A 6-minute bike ride takes you to the NDSM wharf, where you can catch the ferry to Central Station or Pontsteiger, and enjoy year-round festivals and events. For dining, popular spots like Pllek, IJver, Noorderlicht, IJ-kantine, Loetje aan ’t IJ, and Kometen Brood are close by. Nearby cultural options include cinema FC Hyena and the Pathé theater at Buikslotermeerplein.
Nature lover? In just 8 minutes you can cycle to the recreational area Het Twiske or the scenic countryside of Waterland. The beautiful Noorderpark is also nearby. In short, Amsterdam North offers the best of both worlds.
SUSTAINABILITY
The apartment is excellently insulated and features underfloor heating, HR++ double glazing, and an A energy label. Thanks to the recent construction (2020) and efficient installations, you’ll enjoy both comfort and energy savings.
HOMEOWNERS’ ASSOCIATION (VvE)
The apartment is part of a financially healthy and active VvE consisting of 19 apartments and 22 parking spaces. The monthly service charges are € 168.63. The VvE manages the building, shared bicycle storage, and parking area. Administration is handled by Munnik VvE Beheer.
GROUND LEASE
The apartment is situated on leasehold land issued by the Municipality of Amsterdam under the 2000 General Provisions. The current annual ground rent is € 1,802 and is indexed every 10 years. The rent has been prepaid until April 15, 2069.
HIGHLIGHTS
-Living area approx. 61 m² (NEN2580)
-Year of construction: 2020
-Elevator access
-East-facing balcony with views of greenery and water
-Private parking space in gated area
-Shared bicycle storage in the basement
-Underfloor heating throughout the apartment
-Energy label A
-Active homeowners’ association, monthly fees € 168.63
-Annual ground lease: € 1,802
-Handover in consultation (can be done quickly)
This information has been compiled with the utmost care. However, we accept no liability for any incompleteness, inaccuracies, or otherwise, nor for the consequences thereof.
All measurements and surface areas are indicative. Buyers must conduct their own due diligence regarding all matters that are important to them. Our office represents the seller in this transaction. We advise you to engage an NVM/MVA-certified real estate agent to assist you with their expertise during the purchasing process. If you choose not to seek professional representation, you are considered legally competent to oversee all relevant aspects. The General Consumer Terms and Conditions of the NVM apply.